アトリウム恵比寿南一丁目ビル 1階 22.76坪(渋谷区恵比寿南・代官山・中目黒)
恵比寿駅南口から坂を上がった高台の閑静なエリアに位置する、地上5階建てのオフィスビルです。JR・地下鉄各線「恵比寿駅」から徒歩5分という利便性を誇りながら、駅前の喧騒を離れた落ち着きのあるロケーションが魅力。1992年竣工のRC造で、地震に強い新耐震基準に適合しています。エントランスは平日開放されており、来客時の誘導もスムーズです。周辺は洗練された飲食店や住宅が混在する「恵比寿南」アドレス。隠れ家的なオフィスとして、また集中して業務に取り組める制作拠点として、恵比寿らしい感性と静穏さを求める企業様に最適な物件です。
| 賃料 | - 渋谷区の平均坪単価: 25,061円(参考) |
|---|---|
| 所在地 | 東京都渋谷区恵比寿南 |
| 入居可能日 | 応相談 |
| 最寄り駅 | 恵比寿駅徒歩5分、代官山駅徒歩13分 |
| 最終更新 | 2026年3月30日 |
募集終了
| 種別(用途) | 事務所 |
|---|---|
| 階数 | 1階 |
| 部屋番号 | 1F |
| 面積 | 22.76坪 |
| 契約形態・期間 | 定期借家 5年 |
| 空調方式 | 要確認 |
| 床仕様 | 要確認 |
| 天井高 | 要確認 |
| フロア特徴 | ハーフセットアップ |
※月額費用、坪単価ともに税別の価格です
アトリウム恵比寿南一丁目ビル 1階 は現在募集がありません。 (最終確認日: 2026年3月30日)
この物件の最新状況のご確認は、下記の問合せフォームをご利用ください。
この物件の最新状況のご確認は、下記の問合せフォームをご利用ください。
アトリウム恵比寿南一丁目ビル の情報
- 所在地
- 東京都渋谷区恵比寿南1-20-15
- 最寄り駅
- 恵比寿駅徒歩5分、代官山駅徒歩13分、中目黒駅徒歩19分
- 竣工
- 1992年
- 規模
- 地上5階・地下1階
- 構造
- RC造(鉄筋コンクリート造)
- 耐震基準
- 新耐震基準適合
- エントランス
- 平日開放
- エレベーター総数
- 1基
- 駐車場設備
- 無
賃料相場
106件のデータ
アトリウム恵比寿南一丁目ビル の募集区画 (総募集面積 19.21坪)
※月額費用、坪単価 ともに共益費込・税別の価格です
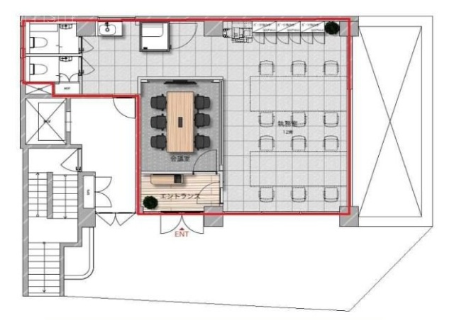
アトリウム恵比寿南一丁目ビル の内装イメージ
各フロアはプライベート性の高い構成となっており、個別空調による快適な執務環境が整っています。窓面からの採光が確保された明るい室内は、小規模なチームやクリエイティブな作業に最適です。1990年代築の安定した造りで、使い勝手の良いフロア形状は、自由度の高いオフィスレイアウトを可能にします。
アトリウム恵比寿南一丁目ビル の募集終了区画
近くの物件紹介
渋谷区のエリア
近くの駅
| 取扱態様 | 仲介 |
|---|---|
| 取扱会社 | 株式会社アドマイアー 東京都中央区日本橋3-2-3ユニバース第1ビル2F TEL. 03-5204-1031 宅地建物取引業免許 東京都知事(3)第94663号 マンション管理業免許 国土交通大臣(2)第034224号 賃貸住宅管理業免許 国土交通大臣(01)第005938号 |





































