IBFーPLANNING 7階 57.26坪(渋谷区、千駄ヶ谷、北参道、千駄ケ谷)
| 賃料 | - 最新の募集条件を問い合わせる |
|---|---|
| 所在地 | 東京都渋谷区千駄ヶ谷 |
| 入居可能日 | 応相談 |
| 最寄り駅 | 北参道駅徒歩1分、千駄ケ谷駅徒歩8分 |
募集終了
| 種別(用途) | 事務所 |
|---|---|
| 階数 | 7階 |
| 部屋番号 | 7F |
| 面積 | 57.26坪 |
| 契約形態・期間 | 定期借家 |
| 空調方式 | 個別空調 |
| 床仕様 | OAフロア タイルカーペット |
| 天井高 | 要確認 |
※月額費用、坪単価ともに税別の価格です
IBFーPLANNING 7階 は現在募集がありません。
この物件の最新状況のご確認は、下記の問合せフォームをご利用ください。
この物件の最新状況のご確認は、下記の問合せフォームをご利用ください。
IBFーPLANNING の情報
- 所在地
- 東京都渋谷区千駄ヶ谷3-38-9
- 最寄り駅
- 北参道駅徒歩1分、千駄ケ谷駅徒歩8分、国立競技場駅徒歩9分
- 竣工
- 2008年
- 規模
- 地上11階
- 構造
- S造(鉄骨造)
- 耐震基準
- 新耐震基準適合
- セキュリティ
- 機械警備(24時間監視)
- エントランス
- 平日開放
- エレベーター総数
- 2基
- 駐車場設備
- 要確認
賃料相場
78件のデータ
IBFーPLANNING の募集区画 (総募集面積 0.00坪)
現在募集はありません。
IBFーPLANNING の内装イメージ
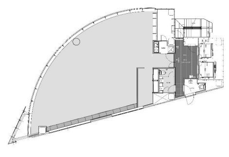
IBF-PLANNING(渋谷区千駄ヶ谷)の基準階面積は57.26坪です。
執務室は半円に近い形状で、無柱空間です。
室内に給湯スペース、室外に男女別トイレが設置されています。
OAフロア、光ファイバー、個別空調。
ワンフロアワンテナントです。
IBFーPLANNING の募集終了区画
近くの物件紹介
渋谷区のエリア
近くの駅
| 取扱態様 | 仲介 |
|---|---|
| 取扱会社 | 株式会社アドマイアー 東京都中央区日本橋3-2-3ユニバース第1ビル2F TEL. 03-5204-1031 宅地建物取引業免許 東京都知事(3)第94663号 マンション管理業免許 国土交通大臣(2)第034224号 賃貸住宅管理業免許 国土交通大臣(01)第005938号 |



































