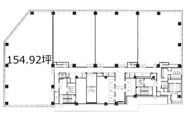
東京虎ノ門グローバルスクエア 22階 154.92坪(港区、虎ノ門、内幸町、霞ケ関)
東京の新たな国際ビジネス拠点として進化を遂げる虎ノ門エリア。その中核に位置する「東京虎ノ門グローバルスクエア」は、銀座線「虎ノ門駅」に直結し、日比谷線「虎ノ門ヒルズ駅」とも地下通路で結ばれた、地上24階建ての最新鋭ハイグレードタワーです。1フロア約408坪の広大な執務空間は、天井高3,000mmの開放感溢れる無柱プレート。デュアル燃料対応の非常用発電機により、万一の停電時も最長約7日間にわたって空調・コンセントを含む業務継続が可能な国内最高水準のBCP性能を誇ります。竹中工務店施工による確かな品質と、駅直結という絶対的な利便性が、企業のステータスを次なるステージへと引き上げます。
| 賃料 | - 最新の募集条件を問い合わせる |
|---|---|
| 所在地 | 東京都港区虎ノ門 |
| 入居可能日 | 応相談 |
| 最寄り駅 | 虎ノ門駅徒歩1分、内幸町駅徒歩6分 |
募集終了
| 種別(用途) | 事務所 |
|---|---|
| 階数 | 22階 |
| 部屋番号 | 22F |
| 面積 | 154.92坪 |
| 契約形態・期間 | 普通借家 |
| 空調方式 | 個別空調 |
| 床仕様 | OAフロア タイルカーペット |
| 天井高 | 3,000mm |
| フロア特徴 | トイレ男女別 |
※月額費用、坪単価ともに税別の価格です
東京虎ノ門グローバルスクエア 22階 は現在募集がありません。
この物件の最新状況のご確認は、下記の問合せフォームをご利用ください。
この物件の最新状況のご確認は、下記の問合せフォームをご利用ください。
東京虎ノ門グローバルスクエア の情報
- 所在地
- 東京都港区虎ノ門1-3-1
- 最寄り駅
- 虎ノ門駅徒歩1分、内幸町駅徒歩6分、霞ケ関駅徒歩4分
- 竣工
- 2020年
- 規模
- 地上24階・地下3階
- 構造
- SRC造(鉄骨鉄筋コンクリート造)
- 耐震基準
- 新耐震基準適合・制震構造
- セキュリティ
- 機械警備(24時間監視)
- エントランス
- 平日開放
- エレベーター総数
- 13基
- 駐車場設備
- 有(88台(ハイルーフ車対応53台))
- 設備
- 駐輪場、 トイレ男女別、 24時間(要ICカード)
賃料相場
106件のデータ
東京虎ノ門グローバルスクエア の募集区画 (総募集面積 154.92坪)
※月額費用、坪単価 ともに共益費込・税別の価格です
東京虎ノ門グローバルスクエア の内装イメージ
基準階面積は約408坪(1,349㎡)。OAフロアは100mm、天井高は3,000mmを確保しており、最新のオフィス機器導入や複雑な配線ニーズに余裕を持って対応します。常用エレベーター11基を低層・高層の2バンクに分けて運用し、超高層ビルにありがちな待ち時間のストレスを最小限に。全館LED照明や高性能な個別空調により、環境負荷の低減と快適性を両立させています。








東京虎ノ門グローバルスクエア の募集終了区画
| 図面 | 階数 | 坪数 | 月額費用 | 坪単価 | 入居可能日 | |
|---|---|---|---|---|---|---|
![]() | 10階 | 154.92坪 | お問い合わせください | 募集終了 | 検討リスト | |
![]() | 10階 | 82.24坪 | お問い合わせください | 募集終了 | 検討リスト | |
![]() | 10階 | 165.37坪 | お問い合わせください | 募集終了 | 検討リスト | |
![]() | 10階 | 83.12坪 | お問い合わせください | 募集終了 | 検討リスト | |
![]() | 11階 | 408.27坪 | お問い合わせください | 募集終了 | 検討リスト | |
![]() | 12階 | 408.27坪 | お問い合わせください | 募集終了 | 検討リスト | |
![]() | 12階 | 165.37坪 | お問い合わせください | 募集終了 | 検討リスト | |
![]() | 12階 | 165.36坪 | お問い合わせください | 募集終了 | 検討リスト | |
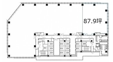
![]() | 12階 | 87.97坪 | お問い合わせください | 募集終了 | 検討リスト | |
![]() | 13階 | 320.30坪 | お問い合わせください | 募集終了 | 検討リスト | |
![]() | 13階 | 87.97坪 | お問い合わせください | 募集終了 | 検討リスト | |
![]() | 13階 | 237.16坪 | お問い合わせください | 募集終了 | 検討リスト | |
![]() | 14階 | 320.30坪 | お問い合わせください | 募集終了 | 検討リスト | |
![]() | 19階 | 408.27坪 | お問い合わせください | 募集終了 | 検討リスト | |
![]() | 19階 | 154.92坪 | お問い合わせください | 募集終了 | 検討リスト | |
![]() | 19階 | 320.28坪 | お問い合わせください | 募集終了 | 検討リスト | |
![]() | 19階 | 82.24坪 | お問い合わせください | 募集終了 | 検討リスト | |
![]() | 19階 | 83.12坪 | お問い合わせください | 募集終了 | 検討リスト | |
![]() | 20階 | 408.27坪 | お問い合わせください | 募集終了 | 検討リスト | |
![]() | 21階 | 408.27坪 | お問い合わせください | 募集終了 | 検討リスト | |
![]() | 22階 | 408.27坪 | お問い合わせください | 募集終了 | 検討リスト | |
![]() | 22階 | 154.92坪 | お問い合わせください | 募集終了 | 検討リスト | |
![]() | 23階 | 408.27坪 | お問い合わせください | 募集終了 | 検討リスト |
近くの物件紹介
港区のエリア
近くの駅
| 取扱態様 | 仲介 |
|---|---|
| 取扱会社 | 株式会社アドマイアー 東京都中央区日本橋3-2-3ユニバース第1ビル2F TEL. 03-5204-1031 宅地建物取引業免許 東京都知事(3)第94663号 マンション管理業免許 国土交通大臣(2)第034224号 賃貸住宅管理業免許 国土交通大臣(01)第005938号 |



































