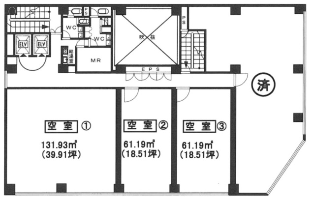
比留間ビル 3階【1】 39.91坪(八王子市、旭町、八王子、京王八王子)
募集終了
| 種別(用途) | 事務所 |
|---|---|
| 階数 | 3階 |
| 部屋番号 | 1 |
| 面積 | 39.91坪 |
| 契約形態・期間 | 普通借家 3年 |
| 空調方式 | 要確認 |
| 床仕様 | 要確認 |
| 天井高 | 要確認 |
※月額費用、坪単価ともに税別の価格です
比留間ビル 3階【1】 は現在募集がありません。
この物件の最新状況のご確認は、下記の問合せフォームをご利用ください。
この物件の最新状況のご確認は、下記の問合せフォームをご利用ください。
比留間ビル の情報
- 所在地
- 東京都八王子市旭町8-10
- 最寄り駅
- 八王子駅徒歩2分、京王八王子駅徒歩6分、京王片倉駅徒歩23分
- 竣工
- 1987年
- 規模
- 地上7階
- 構造
- SRC造(鉄骨鉄筋コンクリート造)
- 耐震基準
- 新耐震基準適合
- エントランス
- 平日開放
- エレベーター総数
- 2基
- 駐車場設備
- 要確認
比留間ビル の募集区画 (総募集面積 0.00坪)
現在募集はありません。
比留間ビル の内装イメージ




比留間ビル の募集終了区画
近くの物件紹介
八王子市のエリア
近くの駅
| 取扱態様 | 仲介 |
|---|---|
| 取扱会社 | 株式会社アドマイアー 東京都中央区日本橋3-2-3ユニバース第1ビル2F TEL. 03-5204-1031 宅地建物取引業免許 東京都知事(3)第94663号 マンション管理業免許 国土交通大臣(2)第034224号 賃貸住宅管理業免許 国土交通大臣(01)第005938号 |













































