高輪JEBL(旧 オーク高輪第2)ビル 4階 57.00坪(港区高輪・泉岳寺・高輪ゲートウェイ・品川)
再開発により進化を続ける高輪エリアにおいて、抜群の機動力を誇るオフィスビルです。都営浅草線「泉岳寺駅」からわずか徒歩1分、さらにJR「高輪ゲートウェイ駅」も徒歩5分で利用可能。京急線直通により羽田空港へもスムーズにアクセスできるため、出張の多い企業様や外資系企業様に最適なロケーションです。 基準階は約65坪のミッドサイズで、中規模な拠点や部署ごとの独立性を求めるニーズに対応。小規模ビルでは希少な非常用発電機を完備しており、不測の事態でも事業を継続できるBCP性能を備えています。JR東日本グループによる質の高い管理体制のもと、港区高輪という格式あるアドレスで、安心かつアクティブなビジネス展開をサポートします。
| 賃料 | - 港区の平均坪単価: 16,475円(参考) 賃料を確認する(無料・1分) |
|---|---|
| 所在地 | 東京都港区高輪 |
| 入居可能日 | 応相談 |
| 最寄り駅 | 泉岳寺駅徒歩1分、高輪ゲートウェイ駅徒歩5分 |
募集終了
| 種別(用途) | 事務所 |
|---|---|
| 階数 | 4階 |
| 部屋番号 | 4F |
| 面積 | 57.00坪 |
| 契約形態・期間 | 普通借家 |
| 空調方式 | 個別空調 |
| 床仕様 | OAフロア タイルカーペット |
| 天井高 | 2,450mm |
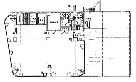
| フロア特徴 | トイレ男女別、 基準階100坪以上の分割区画 |
※月額費用、坪単価ともに税別の価格です
高輪JEBL(旧 オーク高輪第2)ビル 4階 は現在募集がありません。
この物件の最新状況のご確認は、下記の問合せフォームをご利用ください。
この物件の最新状況のご確認は、下記の問合せフォームをご利用ください。
高輪JEBL(旧 オーク高輪第2)ビル の情報
- 所在地
- 東京都港区高輪2-16-37
- 最寄り駅
- 泉岳寺駅徒歩1分、高輪ゲートウェイ駅徒歩5分、品川駅
- 竣工
- 1986年
- 規模
- 地上9階
- 構造
- SRC造(鉄骨鉄筋コンクリート造)
- 耐震基準
- 新耐震基準適合
- セキュリティ
- 機械警備(24時間監視)
- エントランス
- 平日開放
- エレベーター総数
- 2基
- 駐車場設備
- 有(4台)
- 設備
- 非常用発電機、 防災・BCP
賃料相場
41件のデータ
高輪JEBL(旧 オーク高輪第2)ビル の募集区画 (総募集面積 0.00坪)
現在募集はありません。
高輪JEBL(旧 オーク高輪第2)ビル の内装イメージ
基準階面積は約215.63㎡(約65坪)。整形なフロアプレートはレイアウト効率が良く、デッドスペースを最小限に抑えた無駄のないオフィス構築が可能です。窓面からは高輪エリアの開放的な眺望が広がり、明るい執務環境を提供。給湯室やトイレなどの共用部も清潔に保たれており、ワーカーの満足度を高めます。
高輪JEBL(旧 オーク高輪第2)ビル の募集終了区画
近くの物件紹介
港区のエリア
近くの駅
| 取扱態様 | 仲介 |
|---|---|
| 取扱会社 | 株式会社アドマイアー 東京都中央区日本橋3-2-3ユニバース第1ビル2F TEL. 03-5204-1031 宅地建物取引業免許 東京都知事(3)第94663号 マンション管理業免許 国土交通大臣(2)第034224号 賃貸住宅管理業免許 国土交通大臣(01)第005938号 |





































