クリーン11ビル 2階 25.00坪(新宿区、新宿、新宿三丁目)
募集終了
| 種別(用途) | 事務所 |
|---|---|
| 階数 | 2階 |
| 部屋番号 | 2F |
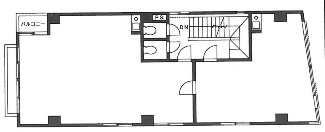
| 面積 | 25.00坪 |
| 契約形態・期間 | 普通借家 2年 |
| 空調方式 | 個別空調 |
| 床仕様 | 要確認 |
| 天井高 | 要確認 |
※月額費用、坪単価ともに税別の価格です
クリーン11ビル 2階 は現在募集がありません。
この物件の最新状況のご確認は、下記の問合せフォームをご利用ください。
この物件の最新状況のご確認は、下記の問合せフォームをご利用ください。
クリーン11ビル の情報
- 所在地
- 東京都新宿区新宿5-11-24
- 最寄り駅
- 新宿三丁目駅徒歩4分
- 竣工
- 1997年
- 規模
- 地上5階
- 構造
- RC造(鉄筋コンクリート造)
- 耐震基準
- 新耐震基準適合
- セキュリティ
- 共用部警備なし(簡易管理)
- エントランス
- 平日開放
- エレベーター総数
- 0基
- 駐車場設備
- 要確認
賃料相場
103件のデータ
クリーン11ビル の募集区画 (総募集面積 0.00坪)
現在募集はありません。
クリーン11ビル の募集終了区画
| 図面 | 階数 | 坪数 | 月額費用 | 坪単価 | 入居可能日 | |
|---|---|---|---|---|---|---|
![]() | 2階 | 25.00坪 | お問い合わせください | 募集終了 | 検討リスト |
近くの物件紹介
新宿区のエリア
近くの駅
| 取扱態様 | 仲介 |
|---|---|
| 取扱会社 | 株式会社アドマイアー 東京都中央区日本橋3-2-3ユニバース第1ビル2F TEL. 03-5204-1031 宅地建物取引業免許 東京都知事(3)第94663号 マンション管理業免許 国土交通大臣(2)第034224号 賃貸住宅管理業免許 国土交通大臣(01)第005938号 |





























