北参道DTビル 5階 39.00坪(渋谷区千駄ヶ谷・北参道・代々木・国立競技場)
募集終了
| 種別(用途) | 事務所 |
|---|---|
| 階数 | 5階 |
| 部屋番号 | 5F |
| 面積 | 39.00坪 |
| 契約形態・期間 | 普通借家 2年 |
| 空調方式 | 要確認 |
| 床仕様 | 要確認 |
| 天井高 | 要確認 |
| フロア特徴 | トイレ男女別 |
※月額費用、坪単価ともに税別の価格です
北参道DTビル 5階 は現在募集がありません。 (最終確認日: 2024年8月22日)
この物件の最新状況のご確認は、下記の問合せフォームをご利用ください。
この物件の最新状況のご確認は、下記の問合せフォームをご利用ください。
北参道DTビル の情報
- 所在地
- 東京都渋谷区千駄ヶ谷4-16-7
- 最寄り駅
- 北参道駅徒歩4分、代々木駅徒歩7分、国立競技場駅徒歩7分
- 竣工
- 2008年
- 規模
- 地上6階
- 構造
- RC造(鉄筋コンクリート造)
- 耐震基準
- 新耐震基準適合
- セキュリティ
- 機械警備(24時間監視)
- エントランス
- 平日開放
- エレベーター総数
- 1基
- 駐車場設備
- 要確認
賃料相場
87件のデータ
北参道DTビル の募集区画 (総募集面積 0.00坪)
現在募集はありません。
北参道DTビル の内装イメージ
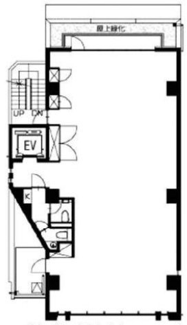
北参道DTビル(渋谷区千駄ヶ谷)は外観からも分かるように、窓面が大きく採光が十分で明るい室内です。また柱が無く、レイアウトしやすい長方形の間取りです。設備面についても個別空調やミニキッチン・男女別でウォシュレット機能付きトイレなどが整っており、OAフロアにも対応、光ファイバーを利用できる通信環境も整えられています。コンパクトなオフィスですが、デザイナーズ仕様のおしゃれな雰囲気を持つ空間になっています。
北参道DTビル の募集終了区画
近くの物件紹介
渋谷区のエリア
近くの駅
| 取扱態様 | 仲介 |
|---|---|
| 取扱会社 | 株式会社アドマイアー 東京都中央区日本橋3-2-3ユニバース第1ビル2F TEL. 03-5204-1031 宅地建物取引業免許 東京都知事(3)第94663号 マンション管理業免許 国土交通大臣(2)第034224号 賃貸住宅管理業免許 国土交通大臣(01)第005938号 |









































