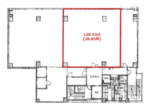
大森センタービル 2階【202】 38.85坪(大田区、大森北、大森、大森海岸)
| 賃料 | - 最新の募集条件を問い合わせる |
|---|---|
| 所在地 | 東京都大田区大森北 |
| 入居可能日 | - |
| 最寄り駅 | 大森駅徒歩3分、大森海岸駅徒歩5分 |
| 最終更新 | 2025年9月25日 |
募集終了
| 種別(用途) | 事務所 |
|---|---|
| 階数 | 2階 |
| 部屋番号 | 202 |
| 面積 | 38.85坪 |
| 契約形態・期間 | 普通借家 3年 |
| 空調方式 | 要確認 |
| 床仕様 | 要確認 |
| 天井高 | 2,470mm |
※月額費用、坪単価ともに税別の価格です
大森センタービル 2階【202】 は現在募集がありません。 (最終確認日: 2025年9月25日)
この物件の最新状況のご確認は、下記の問合せフォームをご利用ください。
この物件の最新状況のご確認は、下記の問合せフォームをご利用ください。
大森センタービル の情報
- 所在地
- 東京都大田区大森北1-17-2
- 最寄り駅
- 大森駅徒歩3分、大森海岸駅徒歩5分、平和島駅徒歩18分
- 竣工
- 1988年
- 規模
- 地上8階・地下2階
- 構造
- SRC造(鉄骨鉄筋コンクリート造)
- 耐震基準
- 新耐震基準適合
- セキュリティ
- 機械警備(24時間監視)
- エントランス
- 平日開放(8:00-20:00)
- エレベーター総数
- 3基
- 駐車場設備
- 要確認
大森センタービル の募集区画 (総募集面積 104.87坪)
※月額費用、坪単価 ともに共益費込・税別の価格です
大森センタービル の内装イメージ
広々としたフロアは、レイアウトの自由度が高く、多様なビジネスニーズに対応可能です。各階個別空調を完備し、快適なオフィス環境を実現。共用部には男女別トイレが設置され、エレベーター1基、機械式駐車場、機械警備と有人警備の併用によるセキュリティ体制も整っています。新耐震基準対応で、安心して長期利用できる点も魅力。管理が行き届いており、綺麗な室内環境が保たれています。
大森センタービル の募集終了区画
近くの物件紹介
大田区のエリア
近くの駅
| 取扱態様 | 仲介 |
|---|---|
| 取扱会社 | 株式会社アドマイアー 東京都中央区日本橋3-2-3ユニバース第1ビル2F TEL. 03-5204-1031 宅地建物取引業免許 東京都知事(3)第94663号 マンション管理業免許 国土交通大臣(2)第034224号 賃貸住宅管理業免許 国土交通大臣(01)第005938号 |
















































