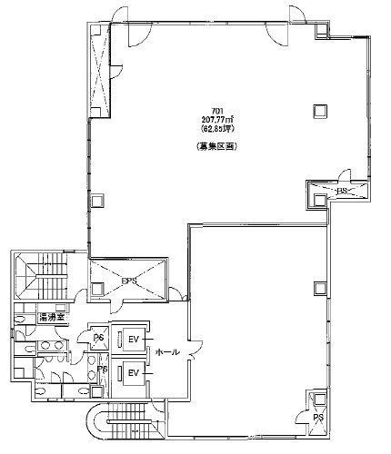
飛栄九段ビル 7階【701】 62.85坪(千代田区、九段南、九段下、市ケ谷)
募集終了
| 種別(用途) | 事務所 |
|---|---|
| 階数 | 7階 |
| 部屋番号 | 701 |
| 面積 | 62.85坪 |
| 契約形態・期間 | 普通借家 |
| 空調方式 | 要確認 |
| 床仕様 | OAフロア タイルカーペット |
| 天井高 | 要確認 |
| フロア特徴 | 基準階100坪以上の分割区画、 トイレ男女別 |
※月額費用、坪単価ともに税別の価格です
飛栄九段ビル 7階【701】 は現在募集がありません。
この物件の最新状況のご確認は、下記の問合せフォームをご利用ください。
この物件の最新状況のご確認は、下記の問合せフォームをご利用ください。
飛栄九段ビル の情報
- 所在地
- 東京都千代田区九段南3-8-11
- 最寄り駅
- 九段下駅徒歩7分、市ケ谷駅徒歩9分、半蔵門駅徒歩12分
- 竣工
- 1991年
- 規模
- 地上11階・地下1階
- 構造
- S造(鉄骨造)
- 耐震基準
- 新耐震基準適合
- セキュリティ
- 機械警備(24時間監視)
- エントランス
- 平日開放
- エレベーター総数
- 2基
- 駐車場設備
- 要確認
飛栄九段ビル の募集区画 (総募集面積 28.52坪)
※月額費用、坪単価 ともに共益費込・税別の価格です
飛栄九段ビル の内装イメージ
基準階は約95坪の整形フロアで、レイアウト自由度の高いオフィス空間を実現。床はタイルカーペット仕様で快適性と清潔感を確保しています。個別空調のため、季節や人数に応じた温度調整が可能。機械警備と有人警備を併用し、セキュリティ体制は万全です。エレベーターは2基設置され、忙しい時間帯の移動もスムーズ。機械式駐車場は最大13台収容でき、来客や社用車利用にも対応。光ファイバー対応で通信面でも快適な業務環境を提供します。
飛栄九段ビル の募集終了区画
| 図面 | 階数 | 坪数 | 月額費用 | 坪単価 | 入居可能日 | |
|---|---|---|---|---|---|---|
![]() | B1階 | 43.69坪 | - | - | 募集終了 | 検討リスト |
![]() | B1階 | 39.94坪 | - | - | 募集終了 | 検討リスト |
![]() | 1階 | 14.92坪 | - | - | 募集終了 | 検討リスト |
![]() | 2階 | 30.52坪 | - | - | 募集終了 | 検討リスト |
![]() | 3階 | 95.78坪 | - | - | 募集終了 | 検討リスト |
![]() | 4階 | 95.78坪 | - | - | 募集終了 | 検討リスト |
![]() | 5階 | 95.78坪 | - | - | 募集終了 | 検討リスト |
![]() | 6階 | 95.78坪 | - | - | 募集終了 | 検討リスト |
![]() | 7階 | 62.85坪 | - | - | 募集終了 | 検討リスト |
![]() | 7階 | 32.93坪 | - | - | 募集終了 | 検討リスト |
![]() | 8階 | 95.78坪 | - | - | 募集終了 | 検討リスト |
![]() | 9階 | 30.24坪 | - | - | 募集終了 | 検討リスト |
![]() | 9階 | 29.80坪 | - | - | 募集終了 | 検討リスト |
![]() | 9階 | 30.17坪 | - | - | 募集終了 | 検討リスト |
![]() | 9階 | 59.98坪 | - | - | 募集終了 | 検討リスト |
近くの物件紹介
千代田区のエリア
近くの駅
| 取扱態様 | 仲介 |
|---|---|
| 取扱会社 | 株式会社アドマイアー 東京都中央区日本橋3-2-3ユニバース第1ビル2F TEL. 03-5204-1031 宅地建物取引業免許 東京都知事(3)第94663号 マンション管理業免許 国土交通大臣(2)第034224号 賃貸住宅管理業免許 国土交通大臣(01)第005938号 |
















































