四谷の賃貸オフィス・貸事務所情報
新宿区四谷エリアは、東京都新宿区の中心部に位置する歴史と文化が豊かな地域です。四谷一丁目から四丁目で構成され、JR中央・総武線や東京メトロ丸ノ内線・南北線が通る四ツ谷駅が最寄りです。江戸時代には宿場町として栄え、甲州街道沿いに多くの寺社が集まりました。須賀神社や新宿歴史博物館など、歴史的な施設が多く、緑豊かな新宿御苑も近くにあります。交通利便性が高く、オフィスや学校、商業施設が充実したエリアです。
検索結果 12 件
クロスシー新宿御苑前ビル(新宿区、四谷、新宿御苑前、四谷三丁目)
- 所在地
- 東京都新宿区四谷4-30-23
- 最寄り駅
- 新宿御苑前駅徒歩4分、四谷三丁目駅徒歩10分、曙橋駅徒歩12分
- 竣工
- 2023年
- 規模
- 地上11階
- 耐震基準
- 新耐震基準適合
- セキュリティ
- 機械警備(24時間監視)
- 駐車場設備
- 要確認
クロスシー新宿御苑前ビル の募集区画 (総募集面積 37.25坪)
※月額費用、坪単価 ともに共益費込・税別の価格です
(仮)四谷2丁目PJ(新宿区、四谷、四ツ谷)
- 所在地
- 東京都新宿区四谷2-9
- 最寄り駅
- 四ツ谷駅徒歩5分
- 竣工
- 2026年
- 規模
- 地上10階
- 耐震基準
- 新耐震基準適合
- 駐車場設備
- 要確認
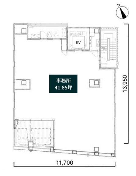
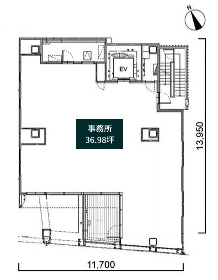
(仮)四谷2丁目PJ の募集区画 (総募集面積 867.01坪)
| 図面 | 階数 | 坪数 | 月額費用 | 坪単価 | 入居可能日 | |
|---|---|---|---|---|---|---|
![]() | 1階 | 47.83坪 | お問い合わせください | 2026/11 | 検討リスト お問い合わせ | |
![]() | 2階 | 46.28坪 | お問い合わせください | 2026/11 | 検討リスト お問い合わせ | |
![]() | 3階 | 42.74坪 | お問い合わせください | 2026/11 | 検討リスト お問い合わせ | |
![]() | 4階 | 46.28坪 | お問い合わせください | 2026/11 | 検討リスト お問い合わせ | |
![]() | 5階 | 46.28坪 | お問い合わせください | 2026/11 | 検討リスト お問い合わせ | |
![]() | 6階 | 46.28坪 | お問い合わせください | 2026/11 | 検討リスト お問い合わせ | |
![]() | 7階 | 46.28坪 | お問い合わせください | 2026/11 | 検討リスト お問い合わせ | |
![]() | 8階 | 46.28坪 | お問い合わせください | 2026/11 | 検討リスト お問い合わせ | |
![]() | 9階 | 41.85坪 | お問い合わせください | 2026/11 | 検討リスト お問い合わせ | |
![]() | 10階 | 39.05坪 | お問い合わせください | 2026/11 | 検討リスト お問い合わせ | |
![]() | 1階 | 417.86坪 | お問い合わせください | 2027/1 | 検討リスト お問い合わせ |
※月額費用、坪単価 ともに共益費込・税別の価格です
四谷の魅力:歴史と国際性が融合する、洗練されたビジネスエリア
四谷の全容:多様な顔を持ち、ビジネスと文化が調和する街
東京都新宿区四谷は、JR中央線・総武線、東京メトロ丸ノ内線、南北線が乗り入れる四ツ谷駅を中心に広がるエリアです。皇居にほど近く、歴史的な趣を残す一方で、上智大学をはじめとする教育機関や各国の大使館などが集まり、国際色豊かな洗練された雰囲気が特徴です。ビジネスにおいては、交通利便性の高さからオフィスが集積し、落ち着いた環境で業務に取り組めるエリアとして知られています。
四谷の沿革:四谷という地名は、江戸時代初期にこの地に住んでいた四人の百姓に由来するとされています。江戸時代には、武家屋敷や町屋が建ち並び、交通の要衝として発展しました。明治以降は、教育機関や文化施設が集積し、知的な雰囲気が形成されました。現在も、歴史的な建造物や史跡が点在し、往時の面影を偲ぶことができます。
四谷の環境:四谷には、四ツ谷駅周辺を中心に中規模のオフィスビルが多く見られます。近年では、多様な働き方に対応するため、シェアオフィスやコワーキングスペースなども増えており、スタートアップ企業や中小企業にとって魅力的な選択肢となっています。また、駅直結の商業施設「アトレ四谷」にはオフィスフロアも併設されています。
詳細なアクセス情報:四ツ谷駅は、JR中央線・総武線、東京メトロ丸ノ内線、南北線が乗り入れるターミナル駅であり、都内主要ビジネスエリアへのアクセスが容易です。特に丸ノ内線は、銀座や東京駅といった主要ビジネス街へ乗り換えなしでアクセスできます。また、駅周辺からは、都営バスなどのバス路線も運行しており、新宿方面や渋谷方面へのアクセスも便利です。
特徴:四谷の魅力は、交通利便性の高さに加え、落ち着いた洗練された街並みが広がっている点です。皇居や新宿御苑が近く、豊かな自然を感じられる環境も魅力の一つです。駅周辺には、ビジネスに必要な各種サービスを提供する店舗や施設が集積しており、利便性も高いです。また、上智大学の存在は、このエリアにアカデミックな雰囲気をもたらしています。
周辺環境:四谷は、ビジネスパーソンにとって利便性の高い環境が整っています。駅周辺には、各種金融機関や医療機関、公共施設などが揃っています。また、アトレ四谷をはじめとする商業施設では、ランチやカフェ、ショッピングなどを楽しむことができます。近隣には、迎賓館赤坂離宮や聖イグナチオ教会などの歴史的な建造物もあり、散策にも適しています。
こんな企業におすすめ:交通アクセスを重視する企業、落ち着いた環境で業務に集中したい企業、国際的なビジネスを展開する企業、教育関連企業、法律事務所、コンサルティングファーム
業種:IT、コンサルティング、教育、法律、国際関係、出版、広告など
四谷にオフィスを構える主な上場企業:株式会社ベネッセホールディングス、株式会社JALUX株式会社アークランズ
著名オフィスビル:コモレ四谷、アトレ四谷、三栄ビル
グルメ、ランチ、カフェ、イベント散策:四谷には、四ツ谷駅周辺を中心に、老舗の料亭からおしゃれなカフェ、各国料理店まで、多様な飲食店が集まっています。特に、上智大学周辺には、学生向けのリーズナブルな飲食店も多く、ランチタイムには賑わいを見せます。また、アトレ四谷などの商業施設内にもレストランやカフェがあり、気軽に食事を楽しむことができます。四谷地域では、大規模なイベントは少ないですが、地域住民向けの祭りや催しなどが開催されています。新宿御苑や赤坂御用地など、自然豊かな場所も近く、散策を楽しむのもおすすめです。
地域性:四谷は、歴史と国際性が融合した、独特の雰囲気を持つエリアです。落ち着いた環境でありながら、都心へのアクセスも良く、ビジネスを行う上で非常に魅力的な立地と言えるでしょう。
まとめ:四谷は、交通利便性、歴史的な背景、国際的な雰囲気、そして落ち着いたビジネス環境が魅力のエリアです。四谷での賃貸事務所の開設は、企業の品格を高め、ビジネスの発展を力強くサポートするでしょう。




















