西新橋(港区)の賃貸オフィス・貸事務所情報
新橋駅と虎ノ門駅の間に広がる、実務重視の堅実なオフィス街です。官公庁にも近く、弁護士事務所や士業、メーカーの東京支店などが密集する、落ち着いたビジネスエリアです。
検索結果 122 件
並び替え
御成門郵船ビル(港区、西新橋、御成門、神谷町)
- 所在地
- 東京都港区西新橋3-23-5
- 最寄り駅
- 御成門駅徒歩2分、神谷町駅徒歩10分、大門駅徒歩10分
- 竣工
- 2025年
- 規模
- 地上13階・地下1階
- 耐震基準
- 新耐震基準適合
- セキュリティ
- 機械警備(24時間監視)
- 駐車場設備
- 有
- 設備
- 屋上テラス(ルーフトップテラス)
2025年5月竣工、都営三田線「御成門」駅徒歩2分に位置する、日本郵船グループ開発の最新鋭オフィスビルです。地上13階建ての堂々たる外観は、免震構造を採用しており、万が一の災害時にも高い安全性を確保しています。最大の特徴は、2階に設けられた「Social」「Buffer」「Work」という3つの異なるコンセプトを持つテナント専用ラウンジと、4階の緑豊かな屋外ガーデンです。これらはワーカーの創造性を刺激し、多様な働き方を強力にサポートします。基準階は約149坪の整形無柱空間で、レイアウト効率も優秀。環境認証「ZEB Ready」を取得しており、企業のESG経営にも直結する、機能と品格を兼ね備えたハイグレードビルです。
御成門郵船ビル の募集区画 (総募集面積 34.11坪)
※月額費用、坪単価 ともに共益費込・税別の価格です
TWG新橋Ⅱ(港区、西新橋、内幸町、新橋)
- 所在地
- 東京都港区西新橋1-15-9
- 最寄り駅
- 内幸町駅徒歩2分、新橋駅徒歩5分
- 竣工
- 2025年
- 規模
- 地上14階・地下1階
- 耐震基準
- 新耐震基準適合
- セキュリティ
- 機械警備(24時間監視)
- 駐車場設備
- 要確認
港区西新橋エリアに誕生した2025年3月竣工の新築貸事務所です。内幸町駅徒歩2分を筆頭に、新橋駅や霞ヶ関駅など複数駅が利用可能な交通利便性が最大の強みです。新耐震基準に適合した地上14階建ての建物は、1フロア約19坪の使い勝手が良い規模感で、店舗利用も相談可能です。ビジネスの拠点として優れた機能を備え、新築ならではの清潔感と機能的な設備が企業の生産性を支援します。
TWG新橋Ⅱ の募集区画 (総募集面積 37.74坪)
※月額費用、坪単価 ともに共益費込・税別の価格です
桔梗備前(キキョウビゼン)ビル(港区、西新橋、内幸町、新橋)
- 所在地
- 東京都港区西新橋1-19-6
- 最寄り駅
- 内幸町駅徒歩3分、新橋駅徒歩7分
- 竣工
- 1982年
- 規模
- 地上9階
- セキュリティ
- 機械警備・有人管理(24時間体制)
- 駐車場設備
- 要確認
桔梗備前(キキョウビゼン)ビル の募集区画 (総募集面積 20.62坪)
※月額費用、坪単価 ともに共益費込・税別の価格です
御成門コープ(港区、西新橋、御成門、神谷町)
- 所在地
- 東京都港区西新橋3-24-1
- 最寄り駅
- 御成門駅徒歩1分、神谷町駅徒歩9分、新橋駅徒歩13分
- 竣工
- 1970年
- 規模
- 地上5階
- 駐車場設備
- 要確認
御成門コープ の募集区画 (総募集面積 45.00坪)
※月額費用、坪単価 ともに共益費込・税別の価格です
弁護士ビル2号館(港区、西新橋、虎ノ門、内幸町)
- 所在地
- 東京都港区西新橋2-18-1
- 最寄り駅
- 虎ノ門駅徒歩7分、内幸町駅徒歩9分、新橋駅徒歩10分
- 竣工
- 1971年
- 規模
- 地上9階
- 駐車場設備
- 要確認
弁護士ビル2号館 の募集区画 (総募集面積 12.42坪)
※月額費用、坪単価 ともに共益費込・税別の価格です
SVAX西新橋ビル(港区、西新橋、新橋、内幸町)
- 所在地
- 東京都港区西新橋2-39-3
- 最寄り駅
- 新橋駅徒歩8分、内幸町駅徒歩4分、御成門駅徒歩6分
- 竣工
- 1978年
- 規模
- 地上8階・地下1階
- セキュリティ
- 機械警備(24時間監視)
- 駐車場設備
- 要確認
SVAX西新橋ビル の募集区画 (総募集面積 217.97坪)
| 図面 | 階数 | 坪数 | 月額費用 | 坪単価 | 入居可能日 | |
|---|---|---|---|---|---|---|
![]() | 3階 | 135.61坪 | お問い合わせください | 即時 | 検討リスト お問い合わせ | |
![]() | 4階 | 30.27坪 | お問い合わせください | 即時 | 検討リスト お問い合わせ | |
![]() | 4階 | 26.55坪 | お問い合わせください | 即時 | 検討リスト お問い合わせ | |
![]() | 4階 | 25.54坪 | お問い合わせください | 即時 | 検討リスト お問い合わせ |
※月額費用、坪単価 ともに共益費込・税別の価格です
ワカサビル(港区、西新橋、内幸町、新橋)
- 所在地
- 東京都港区西新橋2-8-1
- 最寄り駅
- 内幸町駅徒歩4分、新橋駅徒歩5分、虎ノ門駅徒歩8分
- 竣工
- 1994年
- 規模
- 地上5階
- 耐震基準
- 新耐震基準適合
- 駐車場設備
- 要確認
ワカサビル の募集区画 (総募集面積 15.45坪)
※月額費用、坪単価 ともに共益費込・税別の価格です
クロスオフィス内幸町(港区、西新橋、内幸町、虎ノ門)
- 所在地
- 東京都港区西新橋1-18-6
- 最寄り駅
- 内幸町駅徒歩2分、虎ノ門駅徒歩5分、新橋駅徒歩6分
- 竣工
- 2013年
- 規模
- 地上14階・地下1階
- 耐震基準
- 新耐震基準適合
- セキュリティ
- 機械警備(24時間監視)
- 駐車場設備
- 要確認
クロスオフィス内幸町 の募集区画 (総募集面積 65.35坪)
| 図面 | 階数 | 坪数 | 月額費用 | 坪単価 | 入居可能日 | |
|---|---|---|---|---|---|---|
![]() | 14階 | 17.55坪 | 1,050,000円 | 59,829円 | 2026/1/中 | 検討リスト お問い合わせ |
![]() | 13階 | 15.68坪 | 970,000円 | 61,862円 | 2026/5/上 | 検討リスト お問い合わせ |
![]() | 11階 | 6.73坪 | 360,000円 | 53,492円 | 2026/3/上 | 検討リスト お問い合わせ |
![]() | 8階 | 25.39坪 | 1,360,000円 | 53,564円 | 2026/1/上 | 検討リスト お問い合わせ |
※月額費用、坪単価 ともに共益費込・税別の価格です
MSB西新橋ビル(港区、西新橋、内幸町、虎ノ門)
- 所在地
- 東京都港区西新橋1-19-13
- 最寄り駅
- 内幸町駅徒歩4分、虎ノ門駅徒歩3分、新橋駅徒歩8分
- 竣工
- 1973年
- 規模
- 地上4階
- 駐車場設備
- 無
虎ノ門駅と内幸町駅のほぼ中間に位置し、さらに新橋駅も徒歩圏内という、港区内でも屈指の「足回りの良い」エリアに建つオフィスビルです。外観は落ち着いたタイル貼りで、派手さこそありませんが、周囲のオフィス街に馴染む堅実な佇まいです。実務面での最大の魅力は、やはり「移動のしやすさ」と「ランチ環境」でしょう。銀座線、三田線、JR線、さらには霞ケ関駅(千代田線・日比谷線・丸ノ内線)も利用可能なため、都内どこへ行くにも困りません。また、西新橋エリアは安くて美味しいランチの名店がひしめき合っており、毎日の食事が楽しみになる環境です。1フロア1テナント仕様の区画が多く、プライバシーを確保しやすいのも特徴。「ビルそのもののグレード」よりも「立地と実用性」を最優先する企業にとって、非常に理にかなった選択肢となります。
MSB西新橋ビル の募集区画 (総募集面積 19.84坪)
※月額費用、坪単価 ともに共益費込・税別の価格です
3東洋海事ビル(港区、西新橋、内幸町、新橋)
- 所在地
- 東京都港区西新橋2-23-1
- 最寄り駅
- 内幸町駅徒歩5分、新橋駅徒歩7分、虎ノ門駅徒歩7分
- 竣工
- 1967年
- 規模
- 地上9階・地下1階
- 耐震基準
- 新耐震基準適合
- セキュリティ
- 機械警備・有人管理(24時間体制)
- 駐車場設備
- 有
- 設備
- トイレ男女別
都営三田線御成門駅から徒歩4分、JR新橋駅からも徒歩9分と、多方面からのアクセスが可能な港区西新橋エリアに立地しています。建物は1967年竣工ですが、耐震ブレースによる補強工事が完了しており、新耐震基準と同等の安全性を確保しています。エントランスには管理人が常駐する有人警備を採用し、セキュリティ面も配慮されています。室内はOAフロアやLED照明へリニューアル済みで、実用性の高い執務環境です。
3東洋海事ビル の募集区画 (総募集面積 175.00坪)
※月額費用、坪単価 ともに共益費込・税別の価格です
アイオス虎ノ門(港区、西新橋、内幸町、虎ノ門)
- 所在地
- 東京都港区西新橋1-6-12
- 最寄り駅
- 内幸町駅徒歩2分、虎ノ門駅徒歩3分、霞ケ関駅徒歩7分
- 竣工
- 2009年
- 規模
- 地上12階
- 耐震基準
- 新耐震基準適合
- セキュリティ
- 機械警備(24時間監視)
- 駐車場設備
- 要確認
アイオス虎ノ門 の募集区画 (総募集面積 9.61坪)
※月額費用、坪単価 ともに共益費込・税別の価格です
物産ビル(港区、西新橋、内幸町、虎ノ門)
- 所在地
- 東京都港区西新橋1-4-14
- 最寄り駅
- 内幸町駅徒歩1分、虎ノ門駅徒歩5分、霞ケ関駅徒歩6分
- 竣工
- 1982年
- 規模
- 地上7階・地下1階
- セキュリティ
- 機械警備(24時間監視)
- 駐車場設備
- 要確認
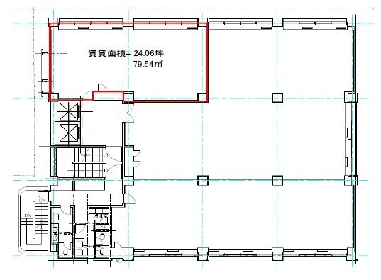
物産ビル の募集区画 (総募集面積 24.06坪)
※月額費用、坪単価 ともに共益費込・税別の価格です
一景ビル(港区、西新橋、内幸町、新橋)
- 所在地
- 東京都港区西新橋1-12-10
- 最寄り駅
- 内幸町駅徒歩2分、新橋駅徒歩6分、虎ノ門駅徒歩6分
- 竣工
- 1994年
- 規模
- 地上8階・地下2階
- 耐震基準
- 新耐震基準適合
- セキュリティ
- 機械警備(24時間監視)
- 駐車場設備
- 要確認
一景ビル の募集区画 (総募集面積 32.82坪)
※月額費用、坪単価 ともに共益費込・税別の価格です
新橋駅の日比谷口(SL広場側)から虎ノ門方面へ向かうエリアです。内幸町駅や虎ノ門ヒルズ駅も徒歩圏内で利用できます。大通り沿いは大型ビルが多いですが、一本入ると中規模の整ったオフィス街が広がります。霞が関の官庁街に隣接しているため、公的機関と取引のある企業にとって非常に利便性の高い立地です。





























































































































































