馬車道駅の賃貸オフィス・貸事務所情報
検索結果 29 件
並び替え
横浜相生町ビル(横浜市中区、相生町、桜木町、馬車道)
- 所在地
- 神奈川県横浜市中区相生町6-104-2
- 最寄り駅
- 桜木町駅徒歩3分、馬車道駅徒歩3分、関内駅徒歩10分
- 竣工
- 1993年
- 規模
- 地上10階・地下1階
- 耐震基準
- 新耐震基準適合
- セキュリティ
- 機械警備(24時間監視)
- 駐車場設備
- 要確認
横浜相生町ビル の募集区画 (総募集面積 39.17坪)
※月額費用、坪単価 ともに共益費込・税別の価格です
横浜馬車道ビル(横浜市中区、太田町、馬車道、関内)
- 所在地
- 神奈川県横浜市中区太田町4-55-2
- 最寄り駅
- 馬車道駅徒歩3分、関内駅徒歩3分、日本大通り駅徒歩8分
- 竣工
- 1988年
- 規模
- 地上9階・地下1階
- 耐震基準
- 新耐震基準適合
- セキュリティ
- 機械警備・有人管理(24時間体制)
- 駐車場設備
- 有(32台)
横浜馬車道ビルは、みなとみらい線馬車道駅徒歩3分、市営地下鉄ブルーライン関内駅徒歩3分に位置する地上9階・地下1階建てのオフィスビルです。1988年竣工のRC造物件で、基準階802.39㎡(242坪)のフロアを誇ります。天井高2,480mm、OAフロア40mm、床荷重300kg/㎡と充実した仕様を備え、個別空調システムを完備。駐車場32台、24時間有人管理で安心の運営体制を整えています。
横浜馬車道ビル の募集区画 (総募集面積 71.60坪)
※月額費用、坪単価 ともに共益費込・税別の価格です
アブソルート横浜馬車道ビル(横浜市中区、太田町、馬車道、関内)
- 所在地
- 神奈川県横浜市中区太田町6-79
- 最寄り駅
- 馬車道駅徒歩2分、関内駅徒歩6分、桜木町駅徒歩8分
- 竣工
- 1985年
- 規模
- 地上8階・地下1階
- 耐震基準
- 新耐震基準適合
- セキュリティ
- 機械警備(24時間監視)
- 駐車場設備
- 要確認
アブソルート横浜馬車道ビル の募集区画 (総募集面積 25.68坪)
※月額費用、坪単価 ともに共益費込・税別の価格です
横浜尾上町ビルディング(横浜市中区、尾上町、関内、馬車道)
- 所在地
- 神奈川県横浜市中区尾上町4-57
- 最寄り駅
- 関内駅徒歩5分、馬車道駅徒歩8分
- 竣工
- 1971年
- 規模
- 地上11階・地下2階
- セキュリティ
- 機械警備(24時間監視)
- 駐車場設備
- 要確認
横浜尾上町ビルディング の募集区画 (総募集面積 63.50坪)
※月額費用、坪単価 ともに共益費込・税別の価格です
LIST EAST BLD.(横浜市中区、尾上町、関内、馬車道)
- 所在地
- 神奈川県横浜市中区尾上町3-35
- 最寄り駅
- 関内駅徒歩2分、馬車道駅徒歩8分、日本大通り駅徒歩10分
- 竣工
- 1963年
- 規模
- 地上8階・地下2階
- セキュリティ
- 有人管理(警備員常駐)
- 駐車場設備
- 要確認
LIST EAST BLD. の募集区画 (総募集面積 38.51坪)
※月額費用、坪単価 ともに共益費込・税別の価格です
日本生命横浜尾上町ビル(横浜市中区、尾上町、関内、馬車道)
- 所在地
- 神奈川県横浜市中区尾上町6-81
- 最寄り駅
- 関内駅徒歩4分、馬車道駅徒歩5分
- 竣工
- 1981年
- 規模
- 地上8階・地下1階
- セキュリティ
- 機械警備(24時間監視)
- 駐車場設備
- 有(平置き3台、機械式36台)
- 設備
- 喫煙室
日本生命横浜尾上町ビル の募集区画 (総募集面積 168.40坪)
※月額費用、坪単価 ともに共益費込・税別の価格です
関内董友ビル(横浜市中区、尾上町、馬車道、関内)
- 所在地
- 神奈川県横浜市中区尾上町6-86-1
- 最寄り駅
- 馬車道駅徒歩5分、関内駅徒歩5分、桜木町駅徒歩8分
- 竣工
- 1990年
- 規模
- 地上9階・地下1階
- 耐震基準
- 新耐震基準適合
- セキュリティ
- 機械警備(24時間監視)
- 駐車場設備
- 要確認
関内董友ビル の募集区画 (総募集面積 30.01坪)
※月額費用、坪単価 ともに共益費込・税別の価格です
オーク関内ビル(横浜市中区、尾上町、関内、馬車道)
- 所在地
- 神奈川県横浜市中区尾上町5-78
- 最寄り駅
- 関内駅徒歩4分、馬車道駅徒歩7分
- 竣工
- 1992年
- 規模
- 地上9階・地下1階
- 耐震基準
- 新耐震基準適合
- セキュリティ
- 機械警備(24時間監視)
- 駐車場設備
- 要確認
オーク関内ビル の募集区画 (総募集面積 135.27坪)
※月額費用、坪単価 ともに共益費込・税別の価格です
ファインズビルみなとみらい(横浜市中区、海岸通、馬車道)
- 所在地
- 神奈川県横浜市中区海岸通4-20-1
- 最寄り駅
- 馬車道駅徒歩4分
- 竣工
- 1994年
- 規模
- 地上10階
- 耐震基準
- 新耐震基準適合
- セキュリティ
- 機械警備(24時間監視)
- 駐車場設備
- 要確認
ファインズビルみなとみらい の募集区画 (総募集面積 14.04坪)
※月額費用、坪単価 ともに共益費込・税別の価格です
(仮称)横浜市中区海岸通計画(A-1地区)(横浜市中区、海岸通、馬車道)
- 所在地
- 神奈川県横浜市中区海岸通3-9-4
- 最寄り駅
- 馬車道駅徒歩5分
- 竣工
- 2027年
- 規模
- 地上21階・地下1階
- 耐震基準
- 新耐震基準適合
- セキュリティ
- 機械警備(24時間監視)
- 駐車場設備
- 要確認
(仮称)横浜市中区海岸通計画(A-1地区) の募集区画 (総募集面積 923.95坪)
| 図面 | 階数 | 坪数 | 月額費用 | 坪単価 | 入居可能日 | |
|---|---|---|---|---|---|---|
準備中 | 8階 | 589.21坪 | お問い合わせください | 2027/2/1 | 検討リスト お問い合わせ | |
準備中 | 7階 | 334.74坪 | お問い合わせください | 2027/2/1 | 検討リスト お問い合わせ |
※月額費用、坪単価 ともに共益費込・税別の価格です
NSTビルディングⅥ(横浜市中区、北仲通、馬車道)
- 所在地
- 神奈川県横浜市中区北仲通4-44
- 最寄り駅
- 馬車道駅徒歩1分
- 竣工
- 2023年
- 規模
- 地上9階
- 耐震基準
- 新耐震基準適合
- セキュリティ
- 機械警備(24時間監視)
- 駐車場設備
- 要確認
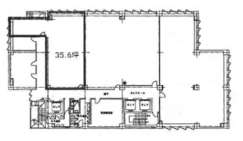
NSTビルディングⅥ の募集区画 (総募集面積 35.65坪)
※月額費用、坪単価 ともに共益費込・税別の価格です
関内トーセイビルⅡ(横浜市中区、住吉町、関内、馬車道)
- 所在地
- 神奈川県横浜市中区住吉町4-45-1
- 最寄り駅
- 関内駅徒歩2分、馬車道駅徒歩5分
- 竣工
- 1984年
- 規模
- 地上12階・地下1階
- 耐震基準
- 新耐震基準適合
- セキュリティ
- 有人管理(警備員常駐)
- 駐車場設備
- 有(機械式58台)
関内トーセイビルⅡは、JR線・市営地下鉄「関内」駅から徒歩1〜2分に位置する利便性の高いオフィスビルです。1984年竣工、地下1階地上12階建てで、基準階118㎡(35.69坪)の使いやすい整形フロアを確保しています。天井高2,500mm、個別空調、男女別トイレ、光ケーブルMDF引込済で日常業務に必要な設備が整っています。EV2基に加え人荷用1基、管理人常駐の安心感の高い管理体制も魅力です。
関内トーセイビルⅡ の募集区画 (総募集面積 35.69坪)
※月額費用、坪単価 ともに共益費込・税別の価格です
みなとビル(横浜市中区、住吉町、関内、馬車道)
- 所在地
- 神奈川県横浜市中区住吉町4-49
- 最寄り駅
- 関内駅徒歩1分、馬車道駅徒歩4分、日本大通り駅徒歩12分
- 竣工
- 2024年
- 規模
- 地上6階
- 耐震基準
- 新耐震基準適合
- セキュリティ
- 機械警備(24時間監視)
- 駐車場設備
- 要確認
みなとビル の募集区画 (総募集面積 27.74坪)
※月額費用、坪単価 ともに共益費込・税別の価格です
IM桜木町ビル(横浜市中区、福富町西通、関内、馬車道)
- 所在地
- 神奈川県横浜市中区福富町西通1-8
- 最寄り駅
- 関内駅徒歩8分、馬車道駅徒歩12分
- 竣工
- 2001年
- 規模
- 地上13階・地下1階
- 耐震基準
- 新耐震基準適合
- セキュリティ
- 機械警備(24時間監視)
- 駐車場設備
- 要確認
IM桜木町ビル の募集区画 (総募集面積 56.12坪)
| 図面 | 階数 | 坪数 | 月額費用 | 坪単価 | 入居可能日 | |
|---|---|---|---|---|---|---|
![]() | 1階 | 24.26坪 | 291,120円 | 12,000円 | 即時 | 検討リスト お問い合わせ |
![]() | 4階 | 31.86坪 | 382,320円 | 12,000円 | 2026/4/13 | 検討リスト お問い合わせ |
※月額費用、坪単価 ともに共益費込・税別の価格です
馬車道スクエアビル(横浜市中区、弁天通、馬車道、関内)
- 所在地
- 神奈川県横浜市中区弁天通4-67-1
- 最寄り駅
- 馬車道駅徒歩1分、関内駅徒歩3分
- 竣工
- 1983年
- 規模
- 地上9階
- 耐震基準
- 新耐震基準適合
- セキュリティ
- 機械警備(24時間監視)
- 駐車場設備
- 要確認
馬車道スクエアビル の募集区画 (総募集面積 172.32坪)
※月額費用、坪単価 ともに共益費込・税別の価格です
横浜弁天通第一生命ビル(横浜市中区、弁天通、馬車道、関内)
- 所在地
- 神奈川県横浜市中区弁天通4-59
- 最寄り駅
- 馬車道駅徒歩3分、関内駅徒歩4分、桜木町駅徒歩9分
- 竣工
- 1986年
- 規模
- 地上9階・地下1階
- 耐震基準
- 新耐震基準適合
- セキュリティ
- 機械警備(24時間監視)
- 駐車場設備
- 要確認
横浜弁天通第一生命ビル の募集区画 (総募集面積 72.55坪)
※月額費用、坪単価 ともに共益費込・税別の価格です
宇徳ビル(横浜市中区、弁天通、馬車道、桜木町)
- 所在地
- 神奈川県横浜市中区弁天通6-85
- 最寄り駅
- 馬車道駅徒歩2分、桜木町駅徒歩6分、関内駅徒歩8分
- 竣工
- 1973年
- 規模
- 地上9階・地下3階
- セキュリティ
- 有人管理(警備員常駐)
- 駐車場設備
- 要確認
宇徳ビル の募集区画 (総募集面積 420.24坪)
| 図面 | 階数 | 坪数 | 月額費用 | 坪単価 | 入居可能日 | |
|---|---|---|---|---|---|---|
![]() | 9階 | 234.03坪 | 2,925,375円 | 12,500円 | 即時 | 検討リスト お問い合わせ |
![]() | 7階 | 45.88坪 | 527,620円 | 11,500円 | 即時 | 検討リスト お問い合わせ |
![]() | 5階 | 23.05坪 | 288,125円 | 12,500円 | 2026/2 | 検討リスト お問い合わせ |
![]() | 4階 | 117.28坪 | 1,348,720円 | 11,500円 | 即時 | 検討リスト お問い合わせ |
※月額費用、坪単価 ともに共益費込・税別の価格です
TIMECROSS YOKOHAMA(横浜市中区、本町、馬車道、関内)
- 所在地
- 神奈川県横浜市中区本町3-30-7
- 最寄り駅
- 馬車道駅徒歩2分、関内駅徒歩7分、桜木町駅徒歩10分
- 竣工
- 1986年
- 規模
- 地上9階・地下1階
- 耐震基準
- 新耐震基準適合
- セキュリティ
- 機械警備(24時間監視)
- 駐車場設備
- 有
- 設備
- リフレッシュコーナー、 喫煙室
みなとみらい線「馬車道」駅徒歩2分、本町通り沿いに立地する抜群のアクセス環境のオフィスビルです。2024年4月にエントランス・エレベーターホールのリニューアルを実施し、モダンで洗練された共用空間に生まれ変わりました。1階には郵便局が入居しており、エントランス内からの直線動線で利用可能です。徒歩2分圏内には三菱UFJ銀行・みずほ銀行・三井住友銀行の三大メガバンク横浜支店が揃い、ビジネス利用に最適な環境です。テナント専用リフレッシュコーナーと喫煙室を完備し、快適なオフィスライフをサポートします。基準階面積290.34坪、天井高2,400mm、OAフロア40mm採用で、レイアウトの自由度が高い空間です。
TIMECROSS YOKOHAMA の募集区画 (総募集面積 83.40坪)
※月額費用、坪単価 ともに共益費込・税別の価格です
横浜第一ビル(横浜市中区、本町、馬車道、日本大通り)
- 所在地
- 神奈川県横浜市中区本町4-40-1
- 最寄り駅
- 馬車道駅徒歩1分、日本大通り駅徒歩7分
- 竣工
- 1992年
- 規模
- 地上9階・地下1階
- 耐震基準
- 新耐震基準適合
- セキュリティ
- 機械警備(24時間監視)
- 駐車場設備
- 要確認
横浜第一ビル の募集区画 (総募集面積 107.75坪)
※月額費用、坪単価 ともに共益費込・税別の価格です
横浜アイランドタワー(横浜市中区、本町、馬車道、桜木町)
- 所在地
- 神奈川県横浜市中区本町6-50-1
- 最寄り駅
- 馬車道駅徒歩1分、桜木町駅徒歩8分、関内駅徒歩9分
- 竣工
- 2003年
- 規模
- 地上27階・地下3階
- 耐震基準
- 新耐震基準適合・免震構造
- セキュリティ
- 機械警備・有人管理(24時間体制)
- 駐車場設備
- 有(123台(ハイルーフ用有))
- 設備
- 防災センター、 BCP(非常用発電・備蓄)
横浜アイランドタワーは、馬車道駅1b出口直結、地上27階建てのハイグレードビルです。低層部に旧第一銀行横浜支店を復元したクラシックな外観と、高層部の現代的なデザインが融合。基準階約302坪のフロアは免震構造により守られ、天井高2,700mmの快適な執務空間を提供します。セキュリティゲートや有人管理、隣接する横浜市役所との連携など、企業のプレステージを高める要素が揃っています。
横浜アイランドタワー の募集区画 (総募集面積 140.36坪)
※月額費用、坪単価 ともに共益費込・税別の価格です
A-PLACE馬車道(横浜市中区、本町、馬車道、桜木町)
- 所在地
- 神奈川県横浜市中区本町4-43
- 最寄り駅
- 馬車道駅徒歩1分、桜木町駅徒歩8分、関内駅徒歩8分
- 竣工
- 1975年
- 規模
- 地上12階・地下2階
- セキュリティ
- 機械警備・有人管理(24時間体制)
- 駐車場設備
- 要確認
A-PLACE馬車道 の募集区画 (総募集面積 26.92坪)
※月額費用、坪単価 ともに共益費込・税別の価格です
みなとファンタジアビル(横浜市中区、南仲通、日本大通り、馬車道)
- 所在地
- 神奈川県横浜市中区南仲通3-32-1
- 最寄り駅
- 日本大通り駅徒歩3分、馬車道駅徒歩3分
- 竣工
- 1987年
- 規模
- 地上7階・地下1階
- 耐震基準
- 新耐震基準適合
- セキュリティ
- 機械警備(24時間監視)
- 駐車場設備
- 要確認
みなとファンタジアビル の募集区画 (総募集面積 59.73坪)
※月額費用、坪単価 ともに共益費込・税別の価格です
プロスタイル横浜馬車道(横浜市中区、元浜町、馬車道)
編集中
- 所在地
- 神奈川県横浜市中区元浜町3-23
- 最寄り駅
- 馬車道駅徒歩2分
- 竣工
- 2015年
- 規模
- 地上12階
- 耐震基準
- 新耐震基準適合
- セキュリティ
- 機械警備(24時間監視)
- 駐車場設備
- 要確認
プロスタイル横浜馬車道 の募集区画 (総募集面積 28.06坪)
※月額費用、坪単価 ともに共益費込・税別の価格です







































































































































































































































