代々木フォレストビル 1階 17.93坪(渋谷区、千駄ヶ谷、代々木、国立競技場)
賃料 | - 最新の募集条件を問い合わせる |
---|---|
所在地 | 東京都渋谷区千駄ヶ谷 |
入居可能日 | - |
最寄り駅 | 代々木駅徒歩4分、国立競技場駅徒歩13分 |

募集終了
種別(用途) | 事務所 |
---|---|
階数 | 1階 |
部屋番号 | 1F |
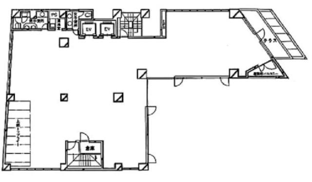
面積 | 17.93坪 |
契約形態・期間 | 普通借家 |
空調方式 | 要確認 |
床仕様 | 要確認 |
天井高 | 要確認 |
フロア特徴 | 基準階100坪以上の分割区画 |
※月額費用、坪単価ともに税別の価格です
代々木フォレストビル 1階 は現在募集がありません。
この物件の最新状況のご確認は、下記の問合せフォームをご利用ください。
この物件の最新状況のご確認は、下記の問合せフォームをご利用ください。
代々木フォレストビル の情報
- 所在地
- 東京都渋谷区千駄ヶ谷5-18-20
- 最寄り駅
- 代々木駅徒歩4分、国立競技場駅徒歩13分、北参道駅徒歩7分
- 竣工
- 1987年
- 規模
- 地上10階・地下1階
- 構造
- SRC
- 耐震基準
- 新耐震基準
- セキュリティ
- 機械警備
- エントランス
- 平日・土曜日開放(8:00-20:00)
- エレベーター総数
- 2基
- 駐車場設備
- 要確認
- 基準階坪数
- 90.72坪
代々木フォレストビル の募集区画 (総募集面積 84.36坪)
※月額費用、坪単価 ともに共益費込・税別の価格です
代々木フォレストビル の内装イメージ
代々木フォレストビルは2階以上は1フロア1テナント仕様で、プライバシーや使い勝手の良さが魅力です。室内は大きな窓から自然光がたっぷり入り、明るく開放的。間取りは三角形を活かしたユニークな形状で、レイアウトの自由度が高い点も特長です。新耐震基準に適合し、安心して利用できるほか、機械警備や男女別トイレなど、オフィス機能に必要な設備も整っています。快適なビジネス環境を求める企業に優れた選択肢となります。
代々木フォレストビル の募集終了区画
近くの物件紹介
渋谷区のエリア
近くの駅
取扱態様 | 仲介 |
---|---|
取扱会社 | 株式会社アドマイアー 東京都中央区日本橋3-2-3ユニバース第1ビル2F TEL. 03-5204-1031 宅地建物取引業免許 東京都知事(3)第94663号 マンション管理業免許 国土交通大臣(2)第034224号 賃貸住宅管理業免許 国土交通大臣(01)第005938号 |