第2工業ビル(渋谷区神南・原宿・表参道) の賃貸オフィス情報

- 所在地
- 東京都渋谷区神南1-10-7
- 最寄り駅
- 渋谷駅徒歩8分、原宿駅徒歩11分、表参道駅徒歩16分
- 竣工
- 1970年
- 規模
- 地上9階
- 構造
- SRC造(鉄骨鉄筋コンクリート造)
- セキュリティ
- 機械警備(24時間監視)
- エントランス
- 平日開放
- エレベーター総数
- 1基
- 駐車場設備
- 無
- 設備
- トイレ男女別
第2工業ビル の物件特徴・おすすめポイント
■視認性・採光抜群。広い窓面から光が差し込み、明るく開放的な室内。
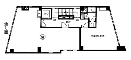
■スペース効率重視。トイレを室外に配置し、26坪の執務面積をフルに活用可能。
■利便施設が至近。郵便局が目の前、コンビニ・カフェも徒歩1分圏内に集結。
■土日祝日エントランス開放。週末も稼働するクリエイティブ職やサービス業にも対応。
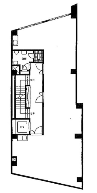
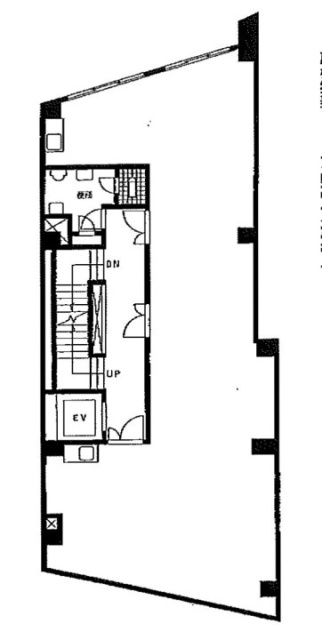
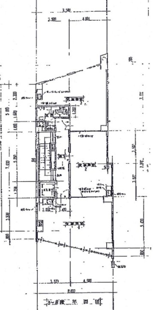
第2工業ビル の募集区画 (総募集面積 26.00坪)
※月額費用、坪単価 ともに共益費込・税別の価格です
建物に関するよくある質問と回答
A1. 各線「渋谷駅」のハチ公口から明治通りを原宿方面へ進み、神南一丁目交差点を左折してファイヤー通りに入ります。そのまま直進して徒歩8分、通り沿い右手に位置しています。
Q2. 室内の設備や間取りの特徴は?
A2. ほぼ長方形のシンプルな間取りで、個別空調(カセット式)を完備しています。最大の特徴は窓面の広さで、ファイヤー通り側に大きく開いているため、日当たりと眺望が非常に良好です。
Q3. セキュリティや入退館の制限はありますか?
A3. 機械警備を導入しており、安全面にも配慮されています。また、エントランスは土日・祝日も開放されているため、週末に稼働が必要な業種の方でもスムーズに入退館が可能です。
Q4. 周辺のランチやビジネスサポート環境はどうですか?
A4. ファイヤー通り沿いには飲食店が非常に多く、隣の中華料理「天宝」をはじめランチには困りません。目の前の通りを渡れば渋谷神南郵便局があり、セブンイレブンやドトールもすぐ近くにあるため、事務作業も捗る環境です。
Q5. 1階にはどのようなテナントが入っていますか?
A5. 現在、1階にはスポーツショップが入居しており、ビルの目印としても分かりやすくなっています。上層階にも脱毛サロンやスクールなどが入居しており、一般の来客も多い活気あるビルです。
地図
東京都渋谷区神南1-10-7 地図をクリックして拡大できます
第2工業ビル の外観イメージ
第2工業ビルは、渋谷・神南エリアの歴史を見守ってきた地上9階建てのSRC造ビルです。ファイヤー通りに堂々と面した外観は、1階の店舗区画と相まって高い視認性を誇ります。堅実な造りの中に、大きく取られた窓ガラスがモダンな印象を添えており、神南というファッショナブルな街の景観に馴染む、落ち着きと活気が共存したデザインです。









第2工業ビル の周辺イメージ
渋谷公園通りや宮下公園、代々木公園も徒歩圏内という、都内屈指の魅力的なロケーションです。ファイヤー通り沿いはアパレルやカフェの激戦区であり、常に最新のカルチャーに触れることができます。また、郵便局や銀行などの公共・金融施設も至近に揃っており、日々のビジネスオペレーションを強力にバックアップする、神南ならではのアメニティ環境が整っています。


第2工業ビル のアクセス・ロケーション
■ 駅徒歩分数
・各線 「渋谷」駅 徒歩8分
■ 主要エリアへのアクセス
ハブターミナルである渋谷駅からは、JR山手線で「新宿」へ7分、「品川」へ13分、東京メトロ半蔵門線で「大手町」へ16分と、都内どこへ行くにも抜群のアクセスを誇ります。2026年現在は渋谷駅周辺の再開発がさらに進行し、駅からの歩行者デッキも整備され、徒歩8分という距離以上に快適なアプローチが可能です。
■ エリア特性
「神南1丁目」は、渋谷のカルチャーを牽引する中心地です。ファイヤー通りは原宿・代々木方面へ抜ける主要動線であり、多くのブランドが旗艦店を構えるエリアです。ビジネスにおいては、この場所にオフィスを構えること自体が、企業のトレンド感やアクティブな姿勢を象徴する強力なブランディングとなります。
第2工業ビル の募集終了区画
| 図面 | 階数 | 坪数 | 月額費用 | 坪単価 | 入居可能日 | |
|---|---|---|---|---|---|---|
![]() | 1階 | 35.00坪 | - | 募集終了 | 検討リスト | |
![]() | 1階 | 17.00坪 | - | 募集終了 | 検討リスト | |
![]() | 2階 | 21.00坪 | - | 募集終了 | 検討リスト | |
![]() | 2階 | 17.00坪 | - | 募集終了 | 検討リスト | |
![]() | 3階 | 40.00坪 | - | 募集終了 | 検討リスト | |
![]() | 3階 | 17.00坪 | - | 募集終了 | 検討リスト | |
![]() | 4階 | 14.00坪 | - | 募集終了 | 検討リスト | |
![]() | 5階 | 20.00坪 | - | 募集終了 | 検討リスト | |
![]() | 5階 | 17.00坪 | - | 募集終了 | 検討リスト | |
![]() | 5階 | 20.00坪 | - | 募集終了 | 検討リスト | |
![]() | 5階 | 40.00坪 | - | 募集終了 | 検討リスト | |
![]() | 6階 | 26.00坪 | - | 募集終了 | 検討リスト | |
![]() | 6階 | 14.00坪 | - | 募集終了 | 検討リスト | |
![]() | 6階 | 17.00坪 | - | 募集終了 | 検討リスト | |
![]() | 7階 | 40.00坪 | - | 募集終了 | 検討リスト | |
![]() | 7階 | 17.00坪 | - | 募集終了 | 検討リスト | |
![]() | 8階 | 40.00坪 | - | 募集終了 | 検討リスト | |
![]() | 8階 | 17.00坪 | - | 募集終了 | 検討リスト | |
![]() | 9階 | 15.00坪 | - | 募集終了 | 検討リスト |
第2工業ビル が選ばれる理由
■ 神南のメインストリートに拠点を置く「ステータス」
「ファイヤー通り沿い」という分かりやすい立地は、来客への案内がスムーズなだけでなく、企業の認知度向上に寄与します。アパレルやIT、広告系など、感度の高い業種が集まるこのエリアに身を置くことで、自然と質の高いネットワークや情報が手に入ります。
■ 20坪台で実現する「圧倒的な開放感と採光」
小規模オフィスでは閉鎖的になりがちな空間も、第2工業ビルなら解消されます。壁一面に広がる大きな窓からは、神南のダイナミックな街並みが飛び込み、スタッフのモチベーション向上やリフレッシュに繋がります。
■ ビジネスを停滞させない「インフラの充実」
目の前の郵便局、徒歩1分のコンビニ、そして土日祝日のエントランス開放。これらの条件が揃っているビルは、実は神南エリアでも希少です。ルーチンワークの効率を下げず、かつ週末の急な対応やイベントにも柔軟に対応できる、実戦的なオフィス環境が選ばれる理由です。
近くの物件紹介
渋谷区のエリア
近くの駅
| 取扱態様 | 仲介 |
|---|---|
| 取扱会社 | 株式会社アドマイアー 東京都中央区日本橋3-2-3ユニバース第1ビル2F TEL. 03-5204-1031 宅地建物取引業免許 東京都知事(3)第94663号 マンション管理業免許 国土交通大臣(2)第034224号 賃貸住宅管理業免許 国土交通大臣(01)第005938号 |



































