高輪小野ビル 3階 140.65坪(港区、高輪、品川、泉岳寺)
賃料 | - 最新の募集条件を問い合わせる |
---|---|
所在地 | 東京都港区高輪 |
入居可能日 | - |
最寄り駅 | 品川駅徒歩13分、泉岳寺駅徒歩3分 |

募集終了
種別(用途) | 事務所 |
---|---|
階数 | 3階 |
部屋番号 | 3F |
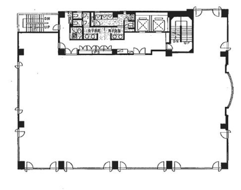
面積 | 140.65坪 |
契約形態・期間 | 普通借家 2年 |
空調方式 | 個別空調 |
床仕様 | OAフロア タイルカーペット |
天井高 | 2,700mm |
フロア特徴 | トイレ男女別、 基準階100坪以上の分割区画 |
※月額費用、坪単価ともに税別の価格です
高輪小野ビル 3階 は現在募集がありません。
この物件の最新状況のご確認は、下記の問合せフォームをご利用ください。
この物件の最新状況のご確認は、下記の問合せフォームをご利用ください。
高輪小野ビル の情報
- 所在地
- 東京都港区高輪2-15-21
- 最寄り駅
- 品川駅徒歩13分、泉岳寺駅徒歩3分
- 竣工
- 1999年
- 規模
- 地上7階・地下1階
- 構造
- S
- 耐震基準
- 新耐震基準
- セキュリティ
- 機械警備
- エントランス
- 平日開放
- エレベーター総数
- 2基
- 駐車場設備
- 要確認
- 基準階坪数
- 140.65坪
高輪小野ビル の募集区画 (総募集面積 0.00坪)
現在募集はありません。
高輪小野ビル の募集終了区画
近くの物件紹介
港区のエリア
近くの駅
取扱態様 | 仲介 |
---|---|
取扱会社 | 株式会社アドマイアー 東京都中央区日本橋3-2-3ユニバース第1ビル2F TEL. 03-5204-1031 宅地建物取引業免許 東京都知事(3)第94663号 マンション管理業免許 国土交通大臣(2)第034224号 賃貸住宅管理業免許 国土交通大臣(01)第005938号 |