加藤ビル 2階 12.70坪(渋谷区、神南、渋谷、原宿)
募集終了
| 種別(用途) | 事務所 |
|---|---|
| 階数 | 2階 |
| 部屋番号 | 2F |
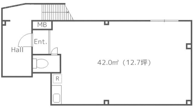
| 面積 | 12.70坪 |
| 契約形態・期間 | 普通借家 2年 |
| 空調方式 | 要確認 |
| 床仕様 | OAフロア タイルカーペット |
| 天井高 | 要確認 |
※月額費用、坪単価ともに税別の価格です
加藤ビル 2階 は現在募集がありません。
この物件の最新状況のご確認は、下記の問合せフォームをご利用ください。
この物件の最新状況のご確認は、下記の問合せフォームをご利用ください。
加藤ビル の情報
- 所在地
- 東京都渋谷区神南1-13-10
- 最寄り駅
- 渋谷駅徒歩10分、原宿駅徒歩12分、明治神宮前〈原宿〉駅徒歩13分
- 竣工
- 1982年
- 規模
- 地上3階
- 構造
- S造(鉄骨造)
- エントランス
- 平日開放
- エレベーター総数
- 0基
- 駐車場設備
- 要確認
加藤ビル の募集区画 (総募集面積 0.00坪)
現在募集はありません。
加藤ビル の内装イメージ





加藤ビル の募集終了区画
| 図面 | 階数 | 坪数 | 月額費用 | 坪単価 | 入居可能日 | |
|---|---|---|---|---|---|---|
![]() | 2階 | 12.70坪 | お問い合わせください | 募集終了 | 検討リスト |
近くの物件紹介
渋谷区のエリア
近くの駅
| 取扱態様 | 仲介 |
|---|---|
| 取扱会社 | 株式会社アドマイアー 東京都中央区日本橋3-2-3ユニバース第1ビル2F TEL. 03-5204-1031 宅地建物取引業免許 東京都知事(3)第94663号 マンション管理業免許 国土交通大臣(2)第034224号 賃貸住宅管理業免許 国土交通大臣(01)第005938号 |






























