KIビル 9階 40.68坪(中野区中央・新中野・中野新橋)
KIビルは、中野区中央のメインストリートである青梅街道に面した、地上10階建ての賃貸オフィスビルです。東京メトロ丸ノ内線「新中野駅」からわずか徒歩2分、鍋屋横丁交差点近くという活気あるロケーションに位置します。1992年竣工の建物は新耐震基準を満たしており、24時間機械警備システムによりセキュリティ面も安心です。貸室内は天井高2,480mmを確保し、空間に柱がないため、約42坪の面積を最大限に活かした効率的なレイアウトが可能です。水回りは共用部に集約されており、男女別トイレを完備している点も従業員満足度に繋がるポイント。ビルの隣にはセブンイレブン、斜め向かいには銀行ATMや飲食店が立ち並び、ランチや日常の事務作業に困ることはありません。駅近の機動力と、視認性の高い青梅街道沿いの立地を求める企業様に、自信を持っておすすめできる優良物件です。
募集終了
| 種別(用途) | 事務所 |
|---|---|
| 階数 | 9階 |
| 部屋番号 | 9F |
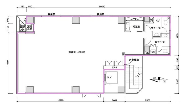
| 面積 | 40.68坪 |
| 契約形態・期間 | 普通借家 3年 |
| 空調方式 | 個別空調 |
| 床仕様 | 要確認 |
| 天井高 | 2,480mm |
| フロア特徴 | デザイナーズ |
※月額費用、坪単価ともに税別の価格です
KIビル 9階 は現在募集がありません。
この物件の最新状況のご確認は、下記の問合せフォームをご利用ください。
この物件の最新状況のご確認は、下記の問合せフォームをご利用ください。
KIビル の情報
- 所在地
- 東京都中野区中央4-1-2
- 最寄り駅
- 新中野駅徒歩2分、中野駅徒歩13分、中野新橋駅徒歩15分
- 竣工
- 1992年
- 規模
- 地上10階
- 構造
- S造(鉄骨造)
- 耐震基準
- 新耐震基準適合
- セキュリティ
- 機械警備(24時間監視)
- エントランス
- 平日開放
- エレベーター総数
- 1基
- 駐車場設備
- 無
賃料相場
28件のデータ
KIビル の募集区画 (総募集面積 42.09坪)
※月額費用、坪単価 ともに共益費込・税別の価格です
KIビル の内装イメージ
貸室内は、約42坪の基準階坪数を持ち、天井高2,480mmの開放的な空間が広がります。個別空調によりテナントごとに快適な温度設定が可能。L字型に近い形状ながら柱が壁側に寄せられているため、ワークスペースと会議室の切り分けも容易です。男女別トイレや清潔感のある給湯スペースなど、新耐震基準に適合したビルならではの質の高いスペックが、日々の業務を快適に支えます。


KIビル の募集終了区画
近くの物件紹介
中野区のエリア
近くの駅
| 取扱態様 | 仲介 |
|---|---|
| 取扱会社 | 株式会社アドマイアー 東京都中央区日本橋3-2-3ユニバース第1ビル2F TEL. 03-5204-1031 宅地建物取引業免許 東京都知事(3)第94663号 マンション管理業免許 国土交通大臣(2)第034224号 賃貸住宅管理業免許 国土交通大臣(01)第005938号 |



























