原宿神宮の森ビル 3階 45.37坪(渋谷区、神宮前、原宿、明治神宮前〈原宿〉)
賃料 | - 最新の募集条件を問い合わせる |
---|---|
所在地 | 東京都渋谷区神宮前 |
入居可能日 | - |
最寄り駅 | 原宿駅徒歩1分、明治神宮前〈原宿〉駅徒歩6分 |

募集終了
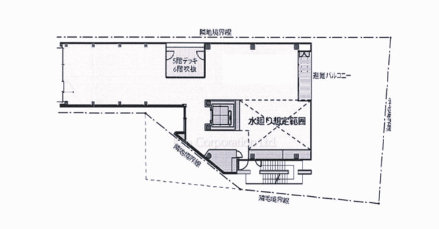
種別(用途) | 事務所 |
---|---|
階数 | 3階 |
部屋番号 | 3F |
面積 | 45.37坪 |
契約形態・期間 | 普通借家 3年 |
空調方式 | 要確認 |
床仕様 | スケルトン |
天井高 | 要確認 |
フロア特徴 | 病院・クリニック |
※月額費用、坪単価ともに税別の価格です
原宿神宮の森ビル 3階 は現在募集がありません。
この物件の最新状況のご確認は、下記の問合せフォームをご利用ください。
この物件の最新状況のご確認は、下記の問合せフォームをご利用ください。
原宿神宮の森ビル の情報
- 所在地
- 東京都渋谷区神宮前1-14-34
- 最寄り駅
- 原宿駅徒歩1分、明治神宮前〈原宿〉駅徒歩6分
- 竣工
- 2012年
- 規模
- 地上7階
- 構造
- S
- 耐震基準
- 新耐震基準
- セキュリティ
- 機械警備
- エントランス
- 平日開放
- エレベーター総数
- 1基
- 駐車場設備
- 要確認
- 基準階坪数
- 55.66坪
原宿神宮の森ビル の募集区画 (総募集面積 103.44坪)
※月額費用、坪単価 ともに共益費込・税別の価格です
原宿神宮の森ビル の内装イメージ
天井高3,000mm・OAフロアで開放感と機能を両立。全区画スケルトン仕様で、ショールームやアパレル店舗、美容室、オフィスなど多数彩な用途に柔軟に対応。個別空調・光ファイバー導入済みで、機械警備によるセキュリティも万全。共用部もウッド調や植物のアクセントが実施され、クリエイターやIT・デザイン・医療系企業の多様な要望に応えられる充実設備です。
原宿神宮の森ビル の募集終了区画
近くの物件紹介
渋谷区のエリア
近くの駅
取扱態様 | 仲介 |
---|---|
取扱会社 | 株式会社アドマイアー 東京都中央区日本橋3-2-3ユニバース第1ビル2F TEL. 03-5204-1031 宅地建物取引業免許 東京都知事(3)第94663号 マンション管理業免許 国土交通大臣(2)第034224号 賃貸住宅管理業免許 国土交通大臣(01)第005938号 |