青山アイビスビル 1階 12.80坪(渋谷区、渋谷、表参道、明治神宮前〈原宿〉)
募集終了
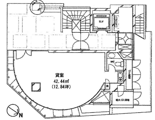
| 種別(用途) | 店舗 |
|---|---|
| 階数 | 1階 |
| 部屋番号 | 1F |
| 面積 | 12.80坪 |
| 契約形態・期間 | 普通借家 2年 |
| 空調方式 | 個別空調 |
| 床仕様 | タイルカーペット |
| 天井高 | 2,280mm |
※月額費用、坪単価ともに税別の価格です
青山アイビスビル 1階 は現在募集がありません。
この物件の最新状況のご確認は、下記の問合せフォームをご利用ください。
この物件の最新状況のご確認は、下記の問合せフォームをご利用ください。
青山アイビスビル の情報
- 所在地
- 東京都渋谷区渋谷2-7-3
- 最寄り駅
- 渋谷駅徒歩7分、表参道駅徒歩7分、明治神宮前〈原宿〉駅徒歩16分
- 竣工
- 1990年
- 規模
- 地上6階・地下1階
- 構造
- SRC造(鉄骨鉄筋コンクリート造)
- 耐震基準
- 新耐震基準適合
- セキュリティ
- 機械警備(24時間監視)
- エントランス
- 平日開放
- エレベーター総数
- 1基
- 駐車場設備
- 要確認
青山アイビスビル の募集区画 (総募集面積 25.86坪)
※月額費用、坪単価 ともに共益費込・税別の価格です
青山アイビスビル の募集終了区画
近くの物件紹介
渋谷区のエリア
近くの駅
| 取扱態様 | 仲介 |
|---|---|
| 取扱会社 | 株式会社アドマイアー 東京都中央区日本橋3-2-3ユニバース第1ビル2F TEL. 03-5204-1031 宅地建物取引業免許 東京都知事(3)第94663号 マンション管理業免許 国土交通大臣(2)第034224号 賃貸住宅管理業免許 国土交通大臣(01)第005938号 |







































