西新橋エクセルビル 5階 50.28坪(港区、西新橋、虎ノ門、内幸町)
募集終了
| 種別(用途) | 事務所 |
|---|---|
| 階数 | 5階 |
| 部屋番号 | 5F |
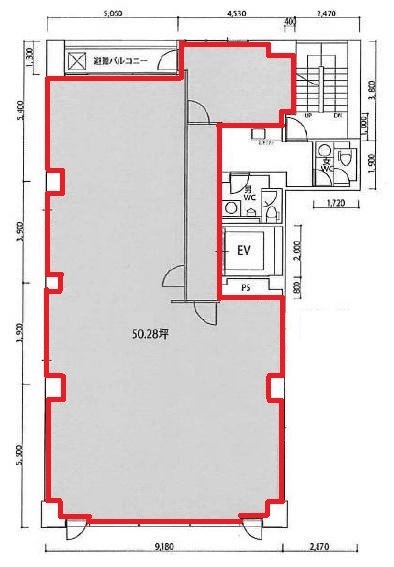
| 面積 | 50.28坪 |
| 契約形態・期間 | 定期借家 10年 |
| 空調方式 | 個別空調 |
| 床仕様 | OAフロア タイルカーペット |
| 天井高 | 2,450mm |
| フロア特徴 | トイレ男女別 |
※月額費用、坪単価ともに税別の価格です
西新橋エクセルビル 5階 は現在募集がありません。 (最終確認日: 2024年2月6日)
この物件の最新状況のご確認は、下記の問合せフォームをご利用ください。
この物件の最新状況のご確認は、下記の問合せフォームをご利用ください。
西新橋エクセルビル の情報
- 所在地
- 東京都港区西新橋1-20-10
- 最寄り駅
- 虎ノ門駅徒歩4分、内幸町駅徒歩4分、霞ケ関駅徒歩6分
- 竣工
- 1991年
- 規模
- 地上9階・地下1階
- 構造
- S造(鉄骨造)
- 耐震基準
- 新耐震基準適合
- セキュリティ
- 機械警備(24時間監視)
- エントランス
- 平日開放
- エレベーター総数
- 1基
- 駐車場設備
- 要確認
- 設備
- 24時間(要ICカード)
西新橋エクセルビル の募集区画 (総募集面積 0.00坪)
現在募集はありません。
西新橋エクセルビル の内装イメージ
西新橋エクセルビル(港区西新橋)の室内へは、エレベーターからダイレクトインで入室できるようになっています。 お部屋の形は、ほぼ綺麗な長方形で、柱が壁際に集約されているので開放感があります。 レイアウトにも自由が利きそうです。 トイレは男女別で室内に設置されています。 OAフロア採用のため、執務スペースをすっきり使用できるのがポイント。 フロアによってバルコニーが併設されており、リフレッシュスペースとして活用できます。
西新橋エクセルビル の募集終了区画
近くの物件紹介
港区のエリア
近くの駅
| 取扱態様 | 仲介 |
|---|---|
| 取扱会社 | 株式会社アドマイアー 東京都中央区日本橋3-2-3ユニバース第1ビル2F TEL. 03-5204-1031 宅地建物取引業免許 東京都知事(3)第94663号 マンション管理業免許 国土交通大臣(2)第034224号 賃貸住宅管理業免許 国土交通大臣(01)第005938号 |









































