三田ステーションアミタビル(港区、芝、田町、三田) の賃貸オフィス情報

- 所在地
- 東京都港区芝5-31-7
- 最寄り駅
- 田町駅徒歩1分、三田駅徒歩3分
- 竣工
- 1997年
- 規模
- 地上12階・地下2階
- 構造
- SRC造(鉄骨鉄筋コンクリート造)
- 耐震基準
- 新耐震基準適合
- セキュリティ
- 有人管理(警備員常駐)
- エントランス
- 平日開放
- エレベーター総数
- 1基
- 駐車場設備
- 要確認
三田ステーションアミタビル の物件特徴・おすすめポイント
■ JR田町駅よりペデストリアンデッキ経由で徒歩1分
■ 第一京浜沿いの角地で大型看板の掲出相談にも対応
■ 建物内にコンビニや飲食店があり館内の利便性が高い
■ 羽田空港まで直通約26分で広域移動にも好適な立地
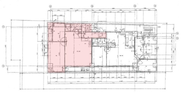
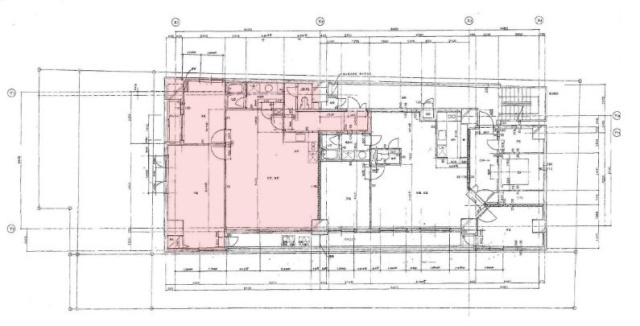
三田ステーションアミタビル の募集区画 (総募集面積 86.41坪)
| 図面 | 階数 | 坪数 | 月額費用 | 坪単価 | 入居可能日 | |
|---|---|---|---|---|---|---|
![]() | 7階 | 25.17坪 | お問い合わせください | 2026/5/1 | 検討リスト お問い合わせ | |
![]() | 7階 | 30.62坪 | お問い合わせください | 2026/5/1 | 検討リスト お問い合わせ | |
![]() | 8階 | 30.62坪 | お問い合わせください | 即時 | 検討リスト お問い合わせ |
※月額費用、坪単価 ともに共益費込・税別の価格です
建物に関するよくある質問と回答
A1. 都営三田線三田駅に直結しており、改札を出てから地上へ上がることなくスムーズにアクセスできます。また、JR田町駅からは三田口を出て、ペデストリアンデッキを通り徒歩1分で到着する、非常に利便性の高いルートが確保されています。
Q2. 三田ステーションビルアミタの耐震性能・構造はどうなっていますか?
A2. 1997年3月竣工の建物であり、新耐震基準に適合しています。構造は鉄骨鉄筋コンクリート(SRC)造および鉄骨(S)造を組み合わせた地上12階、地下2階建ての堅牢な造りです。
Q3. 三田ステーションビルアミタの室内スペック(天井高・床仕様・空調など)について教えてください。
A3. 本物件は各階で個別空調を採用しており、細やかな温度設定が可能です。室内はレイアウトの自由度が高い空間となっており、窓面からの採光も十分に確保されています。
Q4. 三田ステーションビルアミタに駐車場はありますか?
A4. 敷地内には合計2台分の駐車スペースが確保されています。利用を希望される場合は、空き状況の確認が必要ですので、事前にお問い合わせください。
Q5. 三田ステーションビルアミタの周辺施設は充実していますか?
A5. 当ビル内にはコンビニエンスストアや飲食店、ATMが入居しており、日常的な利便性が確保されています。また、近隣には慶応中通り商店街があり、昼食時や就業後の環境も良好です。
地図
東京都港区芝5-31-7 地図をクリックして拡大できます
三田ステーションアミタビル の外観イメージ
三田ステーションビルアミタは、地上12階建ての重厚感あるSRC造のオフィスビルです。駅前の第一京浜(国道15号線)沿いの角地に立地しているため、周囲からの視認性は非常に高く、ビジネス拠点としての存在感を示します。落ち着いた色調の外装デザインは、来客に対して誠実でモダンな印象を与えます。また、大型の壁面看板の掲出相談が可能な点は、通りを歩く人々や走行する車両からの認知度を高める大きな強みとなります。







三田ステーションアミタビル の周辺イメージ
物件周辺は活気あるビジネス街として知られ、利便施設が充実しています。建物内にはセブンイレブンなどのコンビニや飲食店が入り、三菱UFJ銀行のATMも利用可能です。至近には活気溢れる慶応中通り商店街があり、多種多様な飲食店が集積しているため、ランチタイムや仕事終わりのコミュニケーションにも適しています。港区芝エリアの中心に位置し、金融機関や郵便局といったビジネスサポート施設も徒歩圏内に揃っています。


三田ステーションアミタビル のアクセス・ロケーション
■ 駅徒歩分数
・都営三田線 「三田駅」 直結 徒歩3分
・都営浅草線 「三田駅」 直結 徒歩3分
・JR山手線 「田町駅」 三田口より徒歩1分
・JR京浜東北線 「田町駅」 三田口より徒歩1分
■ 主要エリアへのアクセス
都営浅草線を利用することで、羽田空港第1・第2ターミナル駅まで直通約26分で移動でき、国内外への出張にも高い利便性を発揮します。また、JR山手線を利用して東京駅や品川駅といった主要ターミナル駅へも10分圏内でアクセス可能であり、都内全域の営業活動や移動の効率を最大化できる立地です。
■ エリア特性
第一京浜と日比谷通りが交差する三田・田町エリアの要所に位置しています。多くの教育機関や大企業の本社が集まる文化とビジネスが融合した街であり、金融機関や公的機関も多いため、士業や各種サービス業の拠点としても高いポテンシャルを持っています。
三田ステーションアミタビル の募集終了区画
| 図面 | 階数 | 坪数 | 月額費用 | 坪単価 | 入居可能日 | |
|---|---|---|---|---|---|---|
![]() | 6階 | 54.36坪 | お問い合わせください | 募集終了 | 検討リスト | |
![]() | 9階 | 30.62坪 | お問い合わせください | 募集終了 | 検討リスト | |
![]() | 10階 | 19.16坪 | お問い合わせください | 募集終了 | 検討リスト |
三田ステーションアミタビル が選ばれる理由
■ 駅直結とペデストリアンデッキ利用による採用競争力の強化
三田駅直結かつ田町駅から徒歩1分という希少な立地は、雨天や猛暑など天候に左右されない通勤を可能にします。このストレスフリーなアクセス環境は、優秀な人材の確保や社員の定着率向上において、他物件にはない大きな優位性となります。
■ 圧倒的な視認性と壁面看板による企業認知度の向上
第一京浜沿いの角地という好立地を活かし、大型看板の掲出相談が可能です。多くの人々が行き交う駅前エリアで社名を掲示できることは、広告宣伝費を抑えつつ企業の認知度と信頼性を継続的に高める経営戦略的な価値を提供します。
■ ビル内完結の利便性と周辺商店街による就業環境の充実
館内にコンビニ、飲食店、ATMが完備されており、外出の手間を最小限に抑えた効率的な業務遂行を支えます。また、隣接する商店街の豊かなアメニティは、社員の満足度を高め、クリエイティブなビジネスライフをサポートします。
近くの物件紹介
港区のエリア
近くの駅
| 取扱態様 | 仲介 |
|---|---|
| 取扱会社 | 株式会社アドマイアー 東京都中央区日本橋3-2-3ユニバース第1ビル2F TEL. 03-5204-1031 宅地建物取引業免許 東京都知事(3)第94663号 マンション管理業免許 国土交通大臣(2)第034224号 賃貸住宅管理業免許 国土交通大臣(01)第005938号 |































