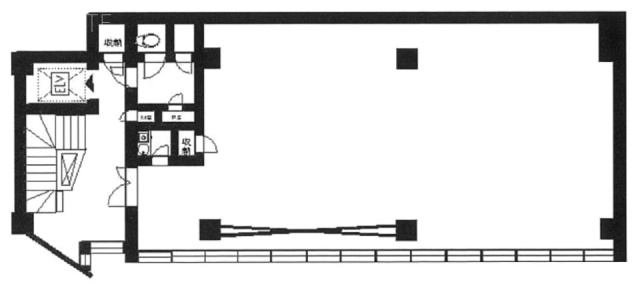
末広ビル 1階 21.32坪(港区、虎ノ門、霞ケ関、溜池山王)
末広ビルは、港区虎ノ門2丁目の主要幹線道路である桜田通りに面した賃貸オフィスビルです。東京メトロ日比谷線「虎ノ門ヒルズ駅」から徒歩2分、銀座線「虎ノ門駅」からも徒歩3分でアクセスできる立地にあります。地上8階建ての建物は1階にカフェが店舗を構えており、来客時の目印として機能します。24時間利用可能な機械警備システムやフロアごとの個別空調を備えており、都心部での機動力と実用性を重視したビジネス拠点としての仕様が整っています。
募集終了
| 種別(用途) | 事務所 |
|---|---|
| 階数 | 1階 |
| 部屋番号 | 1F |
| 面積 | 21.32坪 |
| 契約形態・期間 | 普通借家 |
| 空調方式 | 要確認 |
| 床仕様 | 要確認 |
| 天井高 | 要確認 |
※月額費用、坪単価ともに税別の価格です
末広ビル 1階 は現在募集がありません。
この物件の最新状況のご確認は、下記の問合せフォームをご利用ください。
この物件の最新状況のご確認は、下記の問合せフォームをご利用ください。
末広ビル の情報
- 所在地
- 東京都港区虎ノ門2-5-4
- 最寄り駅
- 虎ノ門駅徒歩3分、霞ケ関駅徒歩8分、溜池山王駅徒歩10分
- 竣工
- 1971年
- 規模
- 地上8階
- 構造
- RC造(鉄筋コンクリート造)
- セキュリティ
- 機械警備(24時間監視)
- エントランス
- 平日開放
- エレベーター総数
- 1基
- 駐車場設備
- 要確認
賃料相場
106件のデータ
末広ビル の募集区画 (総募集面積 86.00坪)
| 図面 | 階数 | 坪数 | 月額費用 | 坪単価 | 入居可能日 | |
|---|---|---|---|---|---|---|
![]() | 5階 | 43.00坪 | 989,000円 | 23,000円 | 2026/4/上 | 検討リスト お問い合わせ |
![]() | 6階 | 43.00坪 | 989,000円 | 23,000円 | 2026/4/上 | 検討リスト お問い合わせ |
※月額費用、坪単価 ともに共益費込・税別の価格です
末広ビル の内装イメージ
基準階は約43坪の面積を持ち、窓面から自然光が入る執務空間です。室内はレイアウトを検討しやすい整形な形状をしており、什器の配置を効率的に進めることができます。個別空調により季節や時間帯に応じた室内環境の調整が可能で、業務に集中できる体制を整えています。貸室外にトイレを配置することで、室内の有効面積を広く確保できる設計です。



末広ビル の募集終了区画
近くの物件紹介
港区のエリア
近くの駅
| 取扱態様 | 仲介 |
|---|---|
| 取扱会社 | 株式会社アドマイアー 東京都中央区日本橋3-2-3ユニバース第1ビル2F TEL. 03-5204-1031 宅地建物取引業免許 東京都知事(3)第94663号 マンション管理業免許 国土交通大臣(2)第034224号 賃貸住宅管理業免許 国土交通大臣(01)第005938号 |


































