自由が丘・学芸大学・祐天寺の賃貸オフィス・貸事務所情報
住みたい街ランキング常連の「自由が丘」、活気ある商店街が魅力の「学芸大学・祐天寺」。都心から少し離れた落ち着きと、洗練された街並みが魅力。店舗兼事務所や、地域密着型のビジネスに最適な環境です。
検索結果 16 件
並び替え
BIOPHILIA PLACE JIYUGAOKA(目黒区自由が丘・奥沢)
- 所在地
- 東京都目黒区自由が丘2-17-6
- 最寄り駅
- 自由が丘駅徒歩4分、奥沢駅徒歩12分
- 竣工
- 1991年
- 規模
- 地上3階・地下1階
- 耐震基準
- 新耐震基準適合
- セキュリティ
- 機械警備(24時間監視)
- 駐車場設備
- 有
- 設備
- トイレ男女別
BIOPHILIA PLACE JIYUGAOKAは、自由が丘のメインストリートの一つである「学園通り」に面した、地上3階・地下1階建てのデザイン賃貸オフィス・店舗ビルです。東急東横線・大井町線「自由が丘駅」から徒歩5分という軽快なアクセスを誇り、都心や横浜方面への高い機動力を発揮します。2023年4月に共用部のリニューアルを実施し、1階ファサードには植栽やベンチが設置されるなど、自由が丘らしい洗練された佇まいへと生まれ変わりました。新耐震基準に適合した堅牢なRC構造に加え、24時間機械警備や防犯カメラを完備し、セキュリティ面も万全。土日・祝日もエントランスが開放されており、店舗利用や来客の多い業種にも適しています。自然光を豊かに取り入れた開放的な室内設計は、クリエイティブな発想を刺激するワークスペースに最適。賑わいのある商業エリアにありながら、質の高いビジネス環境を求める企業様に選ばれている物件です。
BIOPHILIA PLACE JIYUGAOKA の募集区画 (総募集面積 30.12坪)
| 図面 | 階数 | 坪数 | 月額費用 | 坪単価 | 入居可能日 | |
|---|---|---|---|---|---|---|
![]() | 2階 | 30.12坪 | 賃料を確認する (無料・1分) | 即時 | 検討リスト お問い合わせ |
※月額費用、坪単価 ともに共益費込・税別の価格です
パルシードビル(目黒区自由が丘・奥沢)
編集中
- 所在地
- 東京都目黒区自由が丘2-11-10
- 最寄り駅
- 自由が丘駅徒歩3分、奥沢駅徒歩10分
- 竣工
- 1998年
- 規模
- 地上5階
- 耐震基準
- 新耐震基準適合
- セキュリティ
- 機械警備(24時間監視)
- 駐車場設備
- 無
パルシード(パルシィードビル)は、人気エリア「自由が丘」の中心部に位置する地上5階建ての事務所・店舗ビルです。東急東横線・大井町線「自由が丘駅」から徒歩3分という駅近の立地が最大の魅力。1998年竣工の新耐震基準適合物件で、24時間セキュリティシステムを導入した安心の執務環境を提供します。約24坪の室内は、大きな窓からの採光が心地よい明るい空間。事務所仕様での引渡しとなりますが、ガス供給も可能なため、医療クリニックや美容サロンといったサービス店舗としての利用にも強くおすすめできるスペックを誇ります。周辺は洗練された飲食店やショップが建ち並び、来客へのアナウンスもしやすく、看板設置(別途相談)による集客効果も期待できる、自由が丘エリア屈指の機動力を持つ物件です。
パルシードビル の募集区画 (総募集面積 24.39坪)
※月額費用、坪単価 ともに共益費込・税別の価格です
ニューパルビュービル(目黒区自由が丘・奥沢・田園調布)
- 所在地
- 東京都目黒区自由が丘2-11-16
- 最寄り駅
- 自由が丘駅徒歩2分、奥沢駅徒歩10分、田園調布駅徒歩16分
- 竣工
- 2010年
- 規模
- 地上5階・地下1階
- 耐震基準
- 新耐震基準適合
- セキュリティ
- 機械警備(24時間監視)
- 駐車場設備
- 無
- 設備
- トイレ男女別
ニューパルビューは、自由が丘エリア屈指の好立地を誇る、地上5階・地下1階建ての築浅賃貸オフィス・店舗ビルです。東急「自由が丘駅」からわずか徒歩2分、人通りの絶えない「しらかば通り」と「広小路街」が交差する角地に位置し、その全面ガラス張りのスタイリッシュなファサードはエリア内でも一際目を引く視認性を誇ります。2010年竣工の本物件は、新耐震基準に適合した高い安全性を備え、現代的なビジネスニーズに応える充実のスペックを凝縮。1階店舗部分はスケルトン渡しで飲食利用も相談可能、上層階のオフィスフロアは約47坪の使いやすいワンフロア形状で、男女別トイレなどの水回りを共用部に配置した効率的なレイアウトを実現しています。周囲には成城石井や郵便局、お洒落なカフェが密集し、利便性は完璧。自由が丘を象徴するロケーションで、ブランド力と機能性を兼ね備えた拠点を構えたい企業様に最適です。
ニューパルビュービル の募集区画 (総募集面積 44.86坪)
※月額費用、坪単価 ともに共益費込・税別の価格です
Le Ciel Blue Ⅲ(目黒区自由が丘)
編集中
- 所在地
- 東京都目黒区自由が丘1-24-6
- 最寄り駅
- 自由が丘駅徒歩4分
- 竣工
- 2026年
- 規模
- 地上3階
- 耐震基準
- 高耐震構造(新耐震基準適合)
- セキュリティ
- 機械警備(24時間監視)
- 駐車場設備
- 無
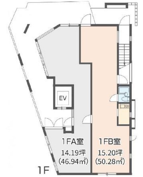
Le Ciel Blue Ⅲ(ル・シエル・ブルー3)は、2026年5月に誕生する自由が丘エリア注目の新築賃貸オフィス・店舗ビルです。東急「自由が丘駅」から徒歩4分という利便性を誇りながら、第1種低層住居専用地域に位置するため、周囲は落ち着いた品格のある街並みが広がっています。地上3階建ての鉄骨造で、新築ならではの最新スペックと洗練された外装デザインが、企業のブランドイメージを大きく向上させます。1階は視認性に優れた路面区画となっており、物販や美容サロン、クリニックなどのサービス店舗にも最適。最大約29坪の一括利用も相談可能です。2階・3階も約31坪の使い勝手の良い空間が広がり、クリエイティブな事務所としても高いポテンシャルを秘めています。流行の発信地でありながら、上質な静寂も手に入る自由が丘1丁目アドレス。新築の清潔感と最新の耐震性能を兼ね備えた、次世代のビジネス拠点として強く推奨される物件です。
Le Ciel Blue Ⅲ の募集区画 (総募集面積 90.00坪)
| 図面 | 階数 | 坪数 | 月額費用 | 坪単価 | 入居可能日 | |
|---|---|---|---|---|---|---|
![]() | 1階 | 14.19坪 | 628,919円 | 44,321円 | 2026/6/上 | 検討リスト お問い合わせ |
![]() | 2階 | 31.22坪 | 1,247,580円 | 39,961円 | 2026/6/上 | 検討リスト お問い合わせ |
![]() | 1階 | 29.39坪 | 1,295,230円 | 44,070円 | 2026/6/上 | 検討リスト お問い合わせ |
![]() | 1階 | 15.20坪 | 666,311円 | 43,836円 | 2026/6/上 | 検討リスト お問い合わせ |
※月額費用、坪単価 ともに共益費込・税別の価格です
マートルコート自由が丘Ⅱ(目黒区自由が丘・都立大学)
- 所在地
- 東京都目黒区自由が丘1-16-12
- 最寄り駅
- 自由が丘駅徒歩7分、都立大学駅徒歩13分
- 竣工
- 1996年
- 規模
- 地上7階
- 耐震基準
- 新耐震基準適合
- 駐車場設備
- 要確認
マートルコート自由が丘Ⅱ の募集区画 (総募集面積 13.55坪)
※月額費用、坪単価 ともに共益費込・税別の価格です
SEEDーM(目黒区自由が丘・奥沢・九品仏)
- 所在地
- 東京都目黒区自由が丘2-10-12
- 最寄り駅
- 自由が丘駅徒歩2分、奥沢駅徒歩10分、九品仏駅徒歩10分
- 竣工
- 1990年
- 規模
- 地上3階・地下1階
- 耐震基準
- 新耐震基準適合
- セキュリティ
- 機械警備(24時間監視)
- 駐車場設備
- 有
SEED-Mビルは、自由が丘エリアのメインストリートの一つである「学園通り」沿いの角地に建つ賃貸オフィスビルです。最大の特長は、東急東横線・大井町線「自由が丘駅」からわずか徒歩2分という、希少性の高いロケーション。1990年竣工の地上3階建てで、白と黒のモノトーンを基調としたモダンかつシンプルな外観が、洗練された街並みに調和しています。室内はワンフロア約40坪の整形な間取りで、柱を気にせず効率的なレイアウトが可能。二面が道路に面した角地立地のため、採光性も良好です。個別空調を完備し、快適な執務環境を提供します。目の前には横浜銀行、すぐ並びには郵便局があるほか、スターバックスやローソンなどの利便施設も徒歩1分圏内に集結。ランチや来客時の対応にも困らない、賑わいと利便性を兼ね備えた環境です。駅近の機動力を活かしたスタートアップや、イメージを重視するクリエイティブな拠点、来店型の事務所など、幅広い業種に推奨される一押し物件です。
SEEDーM の募集区画 (総募集面積 40.05坪)
※月額費用、坪単価 ともに共益費込・税別の価格です
Mduex(エムデュー)ビル(目黒区自由が丘)
- 所在地
- 東京都目黒区自由が丘2-11-20
- 最寄り駅
- 自由が丘駅徒歩2分
- 竣工
- 2023年
- 規模
- 地上5階・地下1階
- 耐震基準
- 高耐震構造(新耐震基準適合)
- セキュリティ
- 機械警備(24時間監視)
- 駐車場設備
- 無
M deux(エムデュー)は、自由が丘エリアの最旬スポットに誕生した、2023年築の築浅事務所・店舗ビルです。東急東横線・大井町線「自由が丘駅」から徒歩2分という、代えがたいロケーションが最大の魅力。今回募集の4階フロアは、約140m²の面積内に約34m²もの広々としたプライベートテラスを含んでおり、都心では珍しい圧倒的な開放感を享受できます。室内はスケルトン状態での引渡しとなるため、企業のカラーに合わせた自由なオフィスレイアウトや、洗練された内装の美容サロン・ショールーム等の構築に最適です。全面ガラス張りのスタイリッシュな外観は視認性も高く、ブランドイメージの向上を約束します。自由が丘の利便性と最新のビルスペックが融合した、感度の高いテナント様に相応しいプレミアムな一室です。
Mduex(エムデュー)ビル の募集区画 (総募集面積 42.58坪)
※月額費用、坪単価 ともに共益費込・税別の価格です
ダイアンクレスト(目黒区自由が丘・奥沢・緑が丘)
編集中
- 所在地
- 東京都目黒区自由が丘1-9-5
- 最寄り駅
- 自由が丘駅徒歩1分、奥沢駅徒歩7分、緑が丘駅徒歩14分
- 竣工
- 1989年
- 規模
- 地上4階・地下1階
- 耐震基準
- 新耐震基準適合
- セキュリティ
- 機械警備(24時間監視)
- 駐車場設備
- 無
- 設備
- トイレ男女別
ダイアンクレストビルは、自由が丘エリアの玄関口とも言える「自由が丘駅」から徒歩1分という圧倒的なロケーションを誇る賃貸オフィス・店舗ビルです。東急東横線・大井町線が交差する交通の要衝において、これ以上の利便性は他にありません。1989年竣工の本物件は新耐震基準に適合しており、堅牢な構造がビジネスの安全を支えます。地上4階・地下1階建ての構成で、過去には一棟貸しや複数フロアを組み合わせた大規模な利用実績もあり、企業の成長段階に合わせた柔軟な展開が可能です。エントランスは土日・祝日も開放されており、サービス業やショールーム、来客頻度の高いオフィスにも最適。周囲には商業施設「フレル・ウィズ」や銀行、多彩な飲食店が密集しており、利便性と賑わいが共存しています。自由が丘駅前の活気をビジネスのエネルギーに変えられる、希少価値の高い拠点です。
ダイアンクレスト の募集区画 (総募集面積 47.99坪)
| 図面 | 階数 | 坪数 | 月額費用 | 坪単価 | 入居可能日 | |
|---|---|---|---|---|---|---|
![]() | 4階 | 8.27坪 | 賃料を確認する (無料・1分) | 相談 | 検討リスト お問い合わせ | |
![]() | B1階 | 39.72坪 | 賃料を確認する (無料・1分) | 相談 | 検討リスト お問い合わせ |
※月額費用、坪単価 ともに共益費込・税別の価格です
フラットフォービル(目黒区鷹番・学芸大学)
編集中
- 所在地
- 東京都目黒区鷹番1-1-5
- 最寄り駅
- 学芸大学駅徒歩10分
- 竣工
- 2001年
- 規模
- 地上5階・地下1階
- 耐震基準
- 新耐震基準適合
- セキュリティ
- 機械警備(24時間監視)
- 駐車場設備
- 無
- 設備
- トイレ男女別
フラットフォービルは、目黒エリアの主要幹線道路である「目黒通り」に面して建つ、地上6階建ての賃貸オフィスビルです。2001年竣工の鉄筋コンクリート造で、現在の新耐震基準に適合した信頼性の高い構造となっています。募集中の5階区画(約45.13坪)は、効率的なレイアウトを実現する整形な空間。現代のオフィスニーズに欠かせないOAフロアや、快適な執務環境を支える室内男女別トイレを完備しています。幹線道路沿いならではの視認性の高さは、企業のプレゼンス向上や来客時の案内にも大きく寄与します。周辺にはセブンイレブンや目黒郵便局といった利便施設が充実しており、日々の事務作業や買い出しもスムーズ。東急東横線「学芸大学駅」からも徒歩10分でアクセスでき、都心と横浜方面を繋ぐ機動力も備えています。さらに、敷金3ヶ月という条件は、移転時の初期コストを抑えたい成長企業様やスタートアップ企業様にとって大きなメリット。利便性、機能性、コストパフォーマンスが三位一体となった、目黒通り沿いの注目物件です。
フラットフォービル の募集区画 (総募集面積 45.13坪)
※月額費用、坪単価 ともに共益費込・税別の価格です
三井住友銀行都立大学駅前ビル(目黒区中根・都立大学)
- 所在地
- 東京都目黒区中根1-3-1
- 最寄り駅
- 都立大学駅徒歩2分
- 竣工
- 1987年
- 規模
- 地上6階・地下1階
- 耐震基準
- 新耐震基準適合
- セキュリティ
- 機械警備(24時間監視)
- 駐車場設備
- 有
- 設備
- トイレ男女別
三井住友銀行都立大学駅前ビルは、東急東横線「都立大学駅」から徒歩2分という、駅至近の好立地に佇む地上6階建ての賃貸オフィスビルです。目黒通り沿いの角地という象徴的なロケーションに加え、1階には三井住友銀行が入居しており、圧倒的な視認性と対外的な信頼性を兼ね備えています。1987年竣工の本物件は新耐震基準に適合。貸室内は長方形の無柱空間となっており、OAフロアや天井高2,500mm、個別空調など、快適なワークプレイス構築に必要なスペックを網羅しています。エレベーター2基完備で縦の移動もスムーズ。周辺には東急ストアや飲食店、郵便局が揃い、日々の業務や従業員のランチ環境も非常に充実しています。高い利便性と確かなビルグレードを求める企業様に最適な、目黒・都立大学エリアを代表するオフィス物件です。
三井住友銀行都立大学駅前ビル の募集区画 (総募集面積 41.00坪)
| 図面 | 階数 | 坪数 | 月額費用 | 坪単価 | 入居可能日 | |
|---|---|---|---|---|---|---|
準備中 | 2階 | 41.00坪 | 賃料を確認する (無料・1分) | 2026/10 | 検討リスト お問い合わせ |
※月額費用、坪単価 ともに共益費込・税別の価格です
NCビル(目黒区碑文谷・都立大学・大岡山)
- 所在地
- 東京都目黒区碑文谷3-19-8
- 最寄り駅
- 都立大学駅徒歩9分、大岡山駅徒歩12分
- 竣工
- 1992年
- 規模
- 地上7階
- 耐震基準
- 新耐震基準適合
- セキュリティ
- 機械警備(24時間監視)
- 駐車場設備
- 有
NCビルは、目黒区碑文谷の「環七通り」沿いにそびえ立つ、地上7階建ての賃貸オフィスビルです。都立大学駅から徒歩9分、幹線道路の角地という立地は、車・公共交通機関の両面で高い機動力を発揮します。1992年竣工の本物件は、エレベーターを2基設置しており、スムーズなフロア移動が可能。募集中の7階区画(71.51坪)は、最上階ならではの大きな窓面から明るい自然光が差し込み、周囲に高い建物が少ないため碑文谷の街並みを一望できる開放的な眺望が魅力です。男女別トイレは共用部に配置されており、執務スペースを最大限に活用できる効率的な間取り。機械警備による安心のセキュリティと、土日・祝日も開放されるエントランスがビジネスの柔軟性を支えます。さらに、敷金2ヶ月という条件は、同規模のオフィスビルと比較しても初期コストを大幅に抑えられる大きなメリット。クリニックやスクールが入居する落ち着いた雰囲気のビルで、快適かつ戦略的な拠点構築を実現できます。
NCビル の募集区画 (総募集面積 71.51坪)
※月額費用、坪単価 ともに共益費込・税別の価格です
イソラ中目黒(目黒区祐天寺・中目黒)
- 所在地
- 東京都目黒区祐天寺1-14-3
- 最寄り駅
- 祐天寺駅徒歩9分、中目黒駅徒歩10分
- 竣工
- 2010年
- 規模
- 地上4階・地下1階
- 耐震基準
- 新耐震基準適合
- セキュリティ
- 機械警備(24時間監視)
- 駐車場設備
- 有
- 設備
- トイレ男女別
イソラ中目黒は、目黒区祐天寺の閑静な住宅街に溶け込む、地上4階建ての洗練されたデザイナーズ賃貸オフィスです。東急「祐天寺駅」から徒歩9分、駒沢通り至近の利便性と静粛性を兼ね備えたロケーションが魅力。2010年竣工の本物件最大の特徴は、室内に螺旋階段を配したスタイリッシュなメゾネット構造です。白を基調とした内装にフローリングの床、さらには開放的なテラスやバルコニーを設けており、一般的なオフィスビルにはない「住まうように働く」居心地の良さを提供します。各フロアにトイレが設置されているため、来客用と執務用、あるいは部署ごとの使い分けもスムーズ。セキュリティ面ではオートロックシステムを採用しており、プライバシーを重視する企業様やクリエイティブチームの拠点として最適です。中目黒エリアの感性と、祐天寺の穏やかな空気が交差する、唯一無二のワークプレイスです。
イソラ中目黒 の募集区画 (総募集面積 20.89坪)
※月額費用、坪単価 ともに共益費込・税別の価格です
【エリアのオフィス市況】
「自由が丘」はスイーツや雑貨の街としてブランド力があり、女性向けのサービスやサロン、設計事務所などに人気です。「学芸大学」は商店街が充実しており、アットホームな雰囲気。大規模ビルは少ないですが、低層のデザイナーズ物件や戸建てオフィスが多く見つかります。
【交通アクセス】
東急東横線がメイン。渋谷駅へ10分圏内でアクセスでき、副都心線直通で新宿・池袋・横浜方面へも乗り換えなしで移動可能です。









































































