築地駅、新富町駅、100坪~200坪の賃貸オフィス・貸事務所情報
検索結果 12 件
並び替え
ニチレイ明石町ビル(中央区、明石町、新富町、月島)
- 所在地
- 東京都中央区明石町6-4
- 最寄り駅
- 新富町駅徒歩5分、月島駅徒歩6分、築地駅徒歩10分
- 竣工
- 1988年
- 規模
- 地上18階・地下2階
- 耐震基準
- 新耐震基準適合
- セキュリティ
- 機械警備・有人管理(24時間体制)
- 駐車場設備
- 有(駐車場(34台))
ニチレイ明石町ビルは、中央区明石町の隅田川リバーサイドに立地する地上18階建てのオフィスビルです。新富町・月島・築地の3駅が利用でき、都心各所へのアクセスが良好です。新耐震基準に適合した安心の建物構造に加え、1階管理センターに24時間警備が常駐し、高いセキュリティレベルを維持しています。基準階245坪のフロアは使い勝手が良く、天井高2,540mm・個別空調完備で快適なオフィス環境をご提供いたします。
ニチレイ明石町ビル の募集区画 (総募集面積 243.45坪)
※月額費用、坪単価 ともに共益費込・税別の価格です
KR GINZAⅡ(中央区、銀座、新富町、東銀座)
- 所在地
- 東京都中央区銀座2-15-2
- 最寄り駅
- 新富町駅徒歩2分、東銀座駅徒歩5分、銀座駅徒歩8分
- 竣工
- 2008年
- 規模
- 地上8階・地下1階
- 耐震基準
- 新耐震基準適合
- セキュリティ
- 機械警備(24時間監視)
- 駐車場設備
- 要確認
KR GINZAⅡ の募集区画 (総募集面積 157.44坪)
※月額費用、坪単価 ともに共益費込・税別の価格です
RBM築地スクエアビル(中央区、新富、新富町、八丁堀)
- 所在地
- 東京都中央区新富1-18-8
- 最寄り駅
- 新富町駅徒歩2分、八丁堀駅徒歩4分、宝町駅徒歩8分
- 竣工
- 2003年
- 規模
- 地上9階・地下1階
- 耐震基準
- 新耐震基準適合
- セキュリティ
- 機械警備(24時間監視)
- 駐車場設備
- 要確認
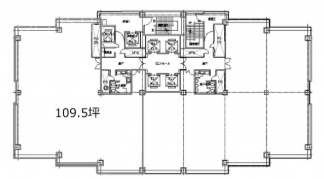
RBM築地スクエアビル の募集区画 (総募集面積 337.55坪)
| 図面 | 階数 | 坪数 | 月額費用 | 坪単価 | 入居可能日 | |
|---|---|---|---|---|---|---|
![]() | 2階 | 112.11坪 | お問い合わせください | 2026/3 | 検討リスト お問い合わせ | |
![]() | 4階 | 112.72坪 | お問い合わせください | 2026/3 | 検討リスト お問い合わせ | |
![]() | 5階 | 112.72坪 | お問い合わせください | 2026/3 | 検討リスト お問い合わせ |
※月額費用、坪単価 ともに共益費込・税別の価格です
THE TERRACE TSUKIJI(中央区、築地、新富町、東銀座)
- 所在地
- 東京都中央区築地7-2-1
- 最寄り駅
- 築地駅徒歩4分、新富町駅徒歩7分、東銀座駅徒歩12分
- 竣工
- 2008年
- 規模
- 地上7階
- 耐震基準
- 新耐震基準適合
- セキュリティ
- 機械警備(24時間監視)
- 駐車場設備
- 要確認
THE TERRACE TSUKIJI の募集区画 (総募集面積 105.13坪)
※月額費用、坪単価 ともに共益費込・税別の価格です
銀座PREX East(中央区、築地、新富町、東銀座)
- 所在地
- 東京都中央区築地2-1-4
- 最寄り駅
- 築地駅徒歩3分、新富町駅徒歩2分、東銀座駅徒歩9分
- 竣工
- 2024年
- 規模
- 地上10階
- 耐震基準
- 新耐震基準適合
- セキュリティ
- 機械警備(24時間監視)
- 駐車場設備
- 有
- 設備
- 非接触ICカード、 屋上テラス(ルーフトップテラス)、 喫煙室
■ 新耐震構造による安心設計
■ 新富町駅徒歩2分・築地駅徒歩3分の利便性
■ Half Setup対応と屋上庭園の快適空間
■ 新富町駅徒歩2分・築地駅徒歩3分の利便性
■ Half Setup対応と屋上庭園の快適空間
銀座PREX East の募集区画 (総募集面積 150.04坪)
※月額費用、坪単価 ともに共益費込・税別の価格です
コンワビル(中央区、築地、東銀座、新富町)
- 所在地
- 東京都中央区築地1-12-22
- 最寄り駅
- 東銀座駅徒歩4分、新富町駅徒歩5分、八丁堀駅徒歩8分
- 竣工
- 1971年
- 規模
- 地上13階・地下3階
- セキュリティ
- 有人管理(警備員常駐)
- 駐車場設備
- 要確認
コンワビル の募集区画 (総募集面積 270.04坪)
| 図面 | 階数 | 坪数 | 月額費用 | 坪単価 | 入居可能日 | |
|---|---|---|---|---|---|---|
![]() | 10階 | 135.02坪 | 3,402,504円 | 25,200円 | 即時 | 検討リスト お問い合わせ |
![]() | 10階 | 135.02坪 | 3,402,504円 | 25,200円 | 即時 | 検討リスト お問い合わせ |
※月額費用、坪単価 ともに共益費込・税別の価格です
前田セントラルビル(中央区、湊、新富町、八丁堀)
- 所在地
- 東京都中央区湊3-3-2
- 最寄り駅
- 新富町駅徒歩4分、八丁堀駅徒歩6分、築地駅徒歩6分
- 竣工
- 1988年
- 規模
- 地上6階
- 耐震基準
- 新耐震基準適合
- セキュリティ
- 機械警備(24時間監視)
- 駐車場設備
- 有(4台(自走式))
■ 新耐震構造による堅牢設計
■ 新富町駅徒歩4分・八丁堀駅徒歩6分の好アクセス
■ 基準階143坪・個別空調の快適空間
■ 新富町駅徒歩4分・八丁堀駅徒歩6分の好アクセス
■ 基準階143坪・個別空調の快適空間
前田セントラルビル の募集区画 (総募集面積 286.86坪)
※月額費用、坪単価 ともに共益費込・税別の価格です





























































































