学芸大学駅の賃貸オフィス・貸事務所情報
東急東横線「学芸大学駅」。急行停車駅として渋谷まで約7分、駅を中心に東西に広がる活気ある商店街が象徴的なエリアです。感度の高いショップと昔ながらの商店が混在する独自のカルチャーがあり、都心への軽快なアクセスと親しみやすい住環境が融合した、非常に高い人気を誇るビジネス拠点です。
検索結果 3 件
並び替え
エス・ケイリビングビル(目黒区、鷹番、学芸大学)
編集中
- 所在地
- 東京都目黒区鷹番2-16-12
- 最寄り駅
- 学芸大学駅徒歩3分
- 竣工
- 2002年
- 規模
- 地上3階・地下1階
- 耐震基準
- 新耐震基準適合
- 駐車場設備
- 要確認
エス・ケイリビングビル の募集区画 (総募集面積 23.51坪)
※月額費用、坪単価 ともに共益費込・税別の価格です
目黒ドリーム(旧:LEREVE目黒中町)(目黒区、中町、祐天寺、学芸大学)
- 所在地
- 東京都目黒区中町1-8-11
- 最寄り駅
- 祐天寺駅徒歩19分、学芸大学駅徒歩18分、武蔵小山駅徒歩20分
- 竣工
- 1991年
- 規模
- 地上4階
- 耐震基準
- 新耐震基準適合
- 駐車場設備
- 要確認
目黒ドリーム(旧:LEREVE目黒中町) の募集区画 (総募集面積 113.76坪)
※月額費用、坪単価 ともに共益費込・税別の価格です
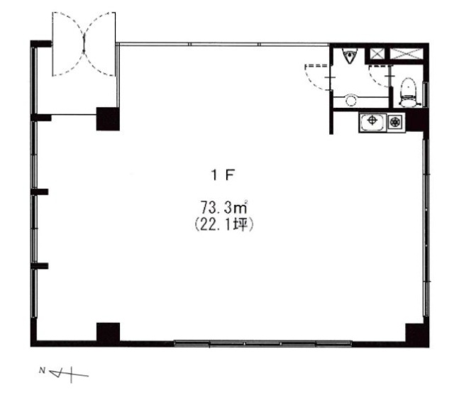
サンライフビル(世田谷区、上馬、三軒茶屋、駒沢大学)
- 所在地
- 東京都世田谷区上馬2-27-3
- 最寄り駅
- 三軒茶屋駅徒歩7分、駒沢大学駅徒歩13分、学芸大学駅徒歩30分
- 竣工
- 1991年
- 規模
- 地上3階
- 耐震基準
- 新耐震基準適合
- 駐車場設備
- 要確認
サンライフビル の募集区画 (総募集面積 22.10坪)
※月額費用、坪単価 ともに共益費込・税別の価格です
【エリアのオフィス市況】
駅周辺の活気ある商業エリアには、視認性の高い中小型オフィスや店舗併用事務所が豊富に揃います。賃料は相応のステータスがありますが、渋谷への近さと街のブランド力を考慮すれば非常に実利的なマーケットです。クリエイティブな小規模チームや、地域に密着した士業、ITスタートアップなど、街の活気をエネルギーに変えたい法人に最適な環境が整っています。
【交通アクセスと採用メリット】
急行利用で渋谷まで約7分、横浜方面へもスムーズにアプローチ可能です。駅周辺の商店街には無数の飲食店や惣菜店が並び、ランチや仕事帰りの買い物環境は極めて良好。従業員の日常的な満足度を大きく高めます。また「住みたい街」として若年層に支持されているため、近隣に住む優秀な人材の確保においても強力なアドバンテージを発揮し、高い定着率を実現します。




