さいたま市北区の賃貸オフィス・貸事務所情報
さいたま市北区は、さいたま市の北部に位置し、東は大宮区、西は上尾市、南は中央区、北は蓮田市に隣接するエリアです。JR高崎線、宇都宮線、湘南新宿ライン、埼京線が乗り入れる大宮駅に近接し、ニューシャトルの鉄道博物館(大成)駅、加茂宮駅、東大宮駅なども区内にあります。鉄道博物館や大宮公園などの著名施設があり、交通利便性の高さが魅力です。
検索結果 4 件
並び替え
CROTH Omiyaビル(さいたま市北区植竹町・北大宮・鉄道博物館)
- 所在地
- 埼玉県さいたま市北区植竹町1-17-1
- 最寄り駅
- 北大宮駅徒歩7分、鉄道博物館駅徒歩10分
- 竣工
- 1992年
- 規模
- 地上6階
- 耐震基準
- 新耐震基準適合
- セキュリティ
- 機械警備(24時間監視)
- 駐車場設備
- 有
- 設備
- トイレ男女別
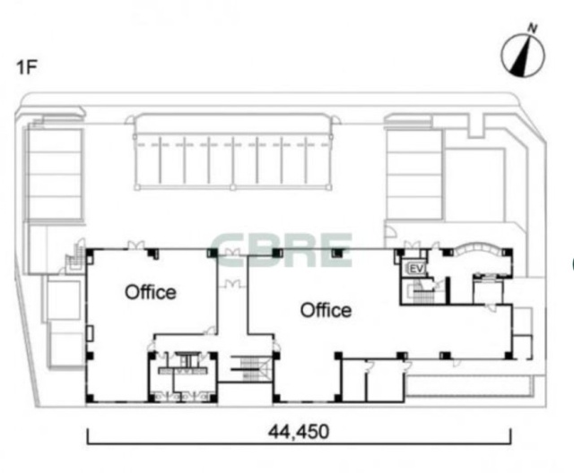
CROTH Omiya(クロース大宮)は、さいたま市北区植竹町に位置する、地上6階建ての洗練されたリノベーション物件です。東武アーバンパークライン「北大宮駅」から徒歩7分、さらにニューシャトル「鉄道博物館駅」も徒歩圏内という2駅利用可能な好立地にあります。1992年竣工の建物ですが、2024年12月に大規模なリノベーションを実施。清潔感あふれる外観とモダンなエントランス、刷新された共用部が、入居企業のイメージをより一層高めます。1階と2階が事務所フロアとなっており、個別空調や男女別トイレ、カードキー対応の機械警備など、ビジネスを支える設備が充実。特筆すべきは最大32台収容可能な大型駐車場で、車移動が中心の営業拠点としても極めて優秀です。大宮駅からのバスアクセスも良く、落ち着いた環境と機能性を両立させた、成長企業にふさわしいビジネス拠点です。
CROTH Omiyaビル の募集区画 (総募集面積 62.56坪)
| 図面 | 階数 | 坪数 | 月額費用 | 坪単価 | 入居可能日 | |
|---|---|---|---|---|---|---|
![]() | 1階 | 62.56坪 | 賃料を確認する (無料・1分) | 即時 | 検討リスト お問い合わせ |
※月額費用、坪単価 ともに共益費込・税別の価格です
第6松ビル(さいたま市北区東大成町・北大宮・鉄道博物館・大宮)
- 所在地
- 埼玉県さいたま市北区東大成町1-460
- 最寄り駅
- 北大宮駅徒歩5分、鉄道博物館駅徒歩11分、大宮駅徒歩15分
- 竣工
- 1987年
- 規模
- 地上7階
- 耐震基準
- 新耐震基準適合
- セキュリティ
- 機械警備(24時間監視)
- 駐車場設備
- 有
第6松ビルは、さいたま市北区東大成町の旧中山道エリアに位置する、視認性と利便性に優れた賃貸オフィスビルです。東武アーバンパークライン「北大宮駅」から徒歩5分という駅近ロケーションに加え、新幹線も停車する巨大ターミナル「大宮駅」からも徒歩圏内と、広域へのアクセスもスムーズです。1987年竣工の建物は、地震に強い鉄骨鉄筋コンクリート(SRC)造を採用した新耐震基準適合物件。24時間セキュリティを導入しており、夜間や休日も安心して執務に取り組めます。最大の特徴は、都心近郊のオフィスとしては希少な平面駐車場を敷地内に備えている点。営業車両を多用する企業様や、お車での来客が多い事業主様にとって大きなアドバンテージとなります。周辺には郵便局や税務署などの公共機関が揃い、事務手続きも効率的に行える環境。コストを抑えつつ、大宮エリアの利便性をフルに享受したい企業様の拠点として自信を持っておすすめいたします。
第6松ビル の募集区画 (総募集面積 146.56坪)
| 図面 | 階数 | 坪数 | 月額費用 | 坪単価 | 入居可能日 | |
|---|---|---|---|---|---|---|
![]() | 2階 | 75.27坪 | 860,000円 | 11,426円 | 2026/5/1 | 検討リスト お問い合わせ |
![]() | 1階 | 71.29坪 | 860,000円 | 12,063円 | 2026/7/1 | 検討リスト お問い合わせ |
※月額費用、坪単価 ともに共益費込・税別の価格です
ウェルネスキューブ大宮(さいたま市北区宮原町・加茂宮・土呂・東宮原)
- 所在地
- 埼玉県さいたま市北区宮原町1-853-8
- 最寄り駅
- 加茂宮駅徒歩9分、土呂駅徒歩13分、東宮原駅徒歩15分
- 竣工
- 2008年
- 規模
- 地上6階
- 耐震基準
- 新耐震基準適合
- セキュリティ
- 機械警備(24時間監視)
- 駐車場設備
- 有(敷地内平置き駐車場確保可能)
- 設備
- 24時間(要ICカード)、 駐輪場、 複合施設、 土日祝エントランス開放
さいたま市北区の行政・商業の中枢エリアに位置する、2008年竣工の高品質オフィスビルです。加茂宮駅から徒歩9分、さらにJR土呂駅も徒歩圏内にあり、多方面へのアクセスに優れたロケーションです。最大の特徴は、大型ショッピングモール「ステラタウン」に隣接し、北区役所や北部医療センターといった公共・医療施設が至近に集結している点にあります。室内はオフィス化工事が施されており、50mmのOAフロアや個別空調、清潔なタイルカーペットを完備。給排水設備の引き込みも相談可能なため、クリニックや水回りを必要とするサービス拠点としても柔軟に活用いただけます。敷地内には入出庫の待ち時間がない平面駐車場を確保可能で、外回りや配送業務が多いビジネスにも高い実用性を発揮。2基の大型EVを備え、機能性と利便性が融合した拠点をお探しの企業に推奨される賃貸事務所です。
ウェルネスキューブ大宮 の募集区画 (総募集面積 26.80坪)
| 図面 | 階数 | 坪数 | 月額費用 | 坪単価 | 入居可能日 | |
|---|---|---|---|---|---|---|
準備中 | 1階 | 26.80坪 | 賃料を確認する (無料・1分) | 2027/2/8 | 検討リスト お問い合わせ |
※月額費用、坪単価 ともに共益費込・税別の価格です



























