田端・王子の賃貸オフィス・貸事務所情報
田端・王子エリアは東京都北区に位置し、JR山手線「田端駅」やJR京浜東北線・東京メトロ南北線「王子駅」を中心に広がる地域です。主要施設には「飛鳥山公園」「名主の滝公園」「田端銀座商店街」「北とぴあ」があり、自然や歴史的スポットが充実しています。王子エリアは商業施設や行政施設が整い利便性が高く、田端エリアは閑静な住宅街で落ち着いた環境が特徴です。賃貸オフィスを探す企業にとっても快適で魅力的なエリアです。
検索結果 11 件
並び替え
日本生命王子ビル(北区、王子、王子駅前、王子神谷)
- 所在地
- 東京都北区王子2-30-3
- 最寄り駅
- 王子駅徒歩5分、王子駅前駅徒歩6分、王子神谷駅徒歩14分
- 竣工
- 1993年
- 規模
- 地上8階
- 耐震基準
- 新耐震基準適合
- セキュリティ
- 機械警備(24時間監視)
- 駐車場設備
- 要確認
日本生命王子ビル の募集区画 (総募集面積 44.00坪)
※月額費用、坪単価 ともに共益費込・税別の価格です
ピュセル王子神谷(北区、王子、王子神谷、東十条)
編集中
- 所在地
- 東京都北区王子5-18-13
- 最寄り駅
- 王子神谷駅徒歩1分、東十条駅徒歩18分
- 竣工
- 2025年
- 規模
- 地上5階
- 耐震基準
- 新耐震基準適合
- 駐車場設備
- 要確認
ピュセル王子神谷 の募集区画 (総募集面積 20.84坪)
※月額費用、坪単価 ともに共益費込・税別の価格です
王子新扇屋ビル(北区、岸町、王子、王子駅前)
- 所在地
- 東京都北区岸町1-1-7
- 最寄り駅
- 王子駅徒歩1分、王子駅前駅徒歩4分、飛鳥山駅徒歩7分
- 竣工
- 1987年
- 規模
- 地上5階
- 耐震基準
- 新耐震基準適合
- セキュリティ
- 機械警備(24時間監視)
- 駐車場設備
- 要確認
王子新扇屋ビル の募集区画 (総募集面積 84.43坪)
※月額費用、坪単価 ともに共益費込・税別の価格です
SIDEPLACE JUJO(北区、十条仲原、十条、東十条)
編集中
- 所在地
- 東京都北区十条仲原1-1-3
- 最寄り駅
- 十条駅徒歩2分、東十条駅徒歩10分
- 竣工
- 2024年
- 規模
- 地上7階
- 耐震基準
- 新耐震基準適合
- 駐車場設備
- 要確認
SIDEPLACE JUJO の募集区画 (総募集面積 65.12坪)
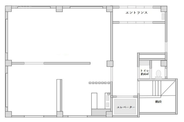
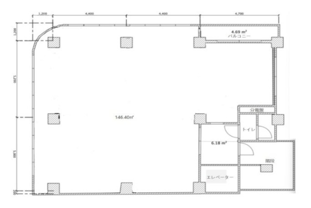
| 図面 | 階数 | 坪数 | 月額費用 | 坪単価 | 入居可能日 | |
|---|---|---|---|---|---|---|
準備中 | 1階 | 17.26坪 | 409,000円 | 23,696円 | 相談 | 検討リスト お問い合わせ |
![]() | 2階 | 22.12坪 | 585,000円 | 26,447円 | 相談 | 検討リスト お問い合わせ |
![]() | 3階 | 25.74坪 | 640,000円 | 24,864円 | 相談 | 検討リスト お問い合わせ |
※月額費用、坪単価 ともに共益費込・税別の価格です
鳥芳ビル(北区、十条仲原、十条、東十条)
編集中
- 所在地
- 東京都北区十条仲原1-26-5
- 最寄り駅
- 十条駅徒歩5分、東十条駅徒歩7分、王子神谷駅徒歩20分
- 竣工
- 1983年
- 規模
- 地上5階
- 耐震基準
- 新耐震基準適合
- 駐車場設備
- 要確認
鳥芳ビル の募集区画 (総募集面積 30.51坪)
※月額費用、坪単価 ともに共益費込・税別の価格です
銀座プロセスビル(北区、中里、駒込)
編集中
- 所在地
- 東京都北区中里2-19-8
- 最寄り駅
- 駒込駅徒歩5分
- 竣工
- 1991年
- 規模
- 地上5階
- 耐震基準
- 新耐震基準適合
- 駐車場設備
- 要確認
銀座プロセスビル の募集区画 (総募集面積 72.00坪)
※月額費用、坪単価 ともに共益費込・税別の価格です
サンハイツ東十条(北区、東十条、王子神谷、十条)
編集中
- 所在地
- 東京都北区東十条4-12-2
- 最寄り駅
- 東十条駅徒歩5分、王子神谷駅徒歩13分、十条駅徒歩16分
- 竣工
- 1980年
- 規模
- 地上11階
- 駐車場設備
- 要確認
サンハイツ東十条 の募集区画 (総募集面積 34.60坪)
※月額費用、坪単価 ともに共益費込・税別の価格です
マンションニュー田端(北区、東田端、田端、赤土小学校前)
- 所在地
- 東京都北区東田端2-8-15
- 最寄り駅
- 田端駅徒歩6分、赤土小学校前駅徒歩11分、尾久駅徒歩14分
- 竣工
- 1975年
- 規模
- 地上8階
- 駐車場設備
- 要確認
マンションニュー田端 の募集区画 (総募集面積 12.84坪)
※月額費用、坪単価 ともに共益費込・税別の価格です
田端・王子エリアは、JR京浜東北線と山手線が利用でき、都心へのアクセスも良好なエリアです。田端駅周辺は、駅直結の商業施設やオフィスビルがあり、利便性が高いです。王子駅周辺は、王子駅前公園などの緑豊かな公園があり、落ち着いた雰囲気です。オフィス環境としては、中小規模のオフィスや、SOHO向けの物件が多く、クリエイターや個人事業主に人気です。交通アクセスは、JR京浜東北線、山手線、東京メトロ南北線などが利用でき、都内各地へのアクセスも便利です。























