渋谷TR 2階 59.68坪(渋谷区渋谷)
| 賃料 | - 渋谷区の平均坪単価: 28,760円(参考) 賃料を確認する(無料・1分) |
|---|---|
| 所在地 | 東京都渋谷区渋谷 |
| 入居可能日 | 応相談 |
| 最寄り駅 | 渋谷駅徒歩2分 |
| 最終更新 | 2026年3月2日 |
募集終了
| 種別(用途) | 事務所 |
|---|---|
| 階数 | 2階 |
| 部屋番号 | 2F |
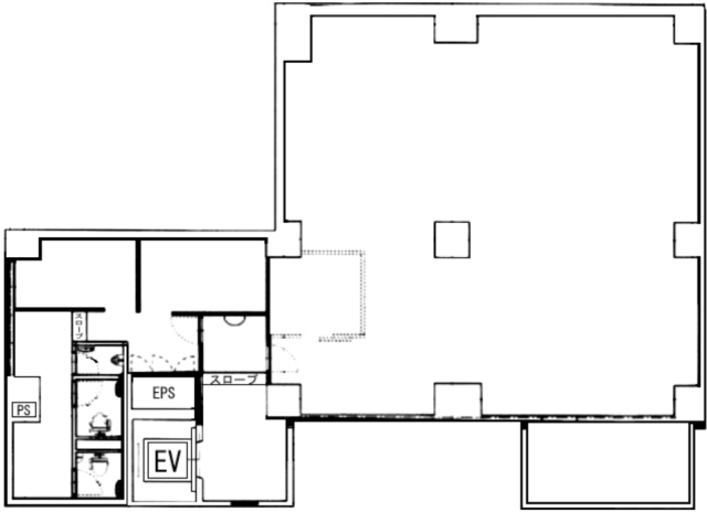
| 面積 | 59.68坪 |
| 契約形態・期間 | 定期借家 2027年09月迄 |
| 空調方式 | 個別空調 |
| 床仕様 | 要確認 |
| 天井高 | 2,500mm |
| フロア特徴 | トイレ男女別 |
※月額費用、坪単価ともに税別の価格です
渋谷TR 2階 は現在募集がありません。 (最終確認日: 2026年3月2日)
この物件の最新状況のご確認は、下記の問合せフォームをご利用ください。
この物件の最新状況のご確認は、下記の問合せフォームをご利用ください。
渋谷TR の情報
- 所在地
- 東京都渋谷区渋谷2-22-16
- 最寄り駅
- 渋谷駅徒歩2分
- 竣工
- 1990年
- 規模
- 地上7階・地下1階
- 構造
- SRC造(鉄骨鉄筋コンクリート造)
- 耐震基準
- 新耐震基準適合
- セキュリティ
- 機械警備(24時間監視)
- エントランス
- 平日開放
- エレベーター総数
- 1基
- 駐車場設備
- 要確認
賃料相場
176件のデータ
渋谷TR の募集区画 (総募集面積 0.00坪)
現在募集はありません。
渋谷TR の内装イメージ
基準階は約57~60坪で、天井高は2,400~2,700mm、梁下2,600mmの開放感ある空間設計。OAフロアや光ファイバーを完備し、ITインフラの整備も容易です。個別空調、男女別トイレ、給湯室、バルコニーを備え、エレベーター(9人乗り・不停止キー付き)1基で各階への移動もスムーズ。24時間利用可能な機械警備システムを導入し、セキュリティ面も良好。









渋谷TR の募集終了区画
近くの物件紹介
渋谷区のエリア
近くの駅
| 取扱態様 | 仲介 |
|---|---|
| 取扱会社 | 株式会社アドマイアー 東京都中央区日本橋3-2-3ユニバース第1ビル2F TEL. 03-5204-1031 宅地建物取引業免許 東京都知事(3)第94663号 マンション管理業免許 国土交通大臣(2)第034224号 賃貸住宅管理業免許 国土交通大臣(01)第005938号 |








































