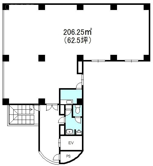
アイザック東麻布 3階 62.50坪(港区、東麻布、麻布十番、赤羽橋)
| 賃料 | - 最新の募集条件を問い合わせる |
|---|---|
| 所在地 | 東京都港区東麻布 |
| 入居可能日 | - |
| 最寄り駅 | 麻布十番駅徒歩3分、赤羽橋駅徒歩8分 |
募集終了
| 種別(用途) | 事務所 |
|---|---|
| 階数 | 3階 |
| 部屋番号 | 3F |
| 面積 | 62.50坪 |
| 契約形態・期間 | 普通借家 2年 |
| 空調方式 | 個別空調 |
| 床仕様 | 要確認 |
| 天井高 | 要確認 |
| フロア特徴 | トイレ男女別 |
※月額費用、坪単価ともに税別の価格です
アイザック東麻布 3階 は現在募集がありません。 (最終確認日: 2023年7月14日)
この物件の最新状況のご確認は、下記の問合せフォームをご利用ください。
この物件の最新状況のご確認は、下記の問合せフォームをご利用ください。
アイザック東麻布 の情報
- 所在地
- 東京都港区東麻布3-3-1
- 最寄り駅
- 麻布十番駅徒歩3分、赤羽橋駅徒歩8分、六本木駅徒歩15分
- 竣工
- 1992年
- 規模
- 地上4階・地下1階
- 構造
- SRC造(鉄骨鉄筋コンクリート造)
- 耐震基準
- 新耐震基準適合
- セキュリティ
- 機械警備(24時間監視)
- エントランス
- 平日開放
- エレベーター総数
- 1基
- 駐車場設備
- 要確認
アイザック東麻布 の募集区画 (総募集面積 0.00坪)
現在募集はありません。
アイザック東麻布 の募集終了区画
近くの物件紹介
港区のエリア
近くの駅
| 取扱態様 | 仲介 |
|---|---|
| 取扱会社 | 株式会社アドマイアー 東京都中央区日本橋3-2-3ユニバース第1ビル2F TEL. 03-5204-1031 宅地建物取引業免許 東京都知事(3)第94663号 マンション管理業免許 国土交通大臣(2)第034224号 賃貸住宅管理業免許 国土交通大臣(01)第005938号 |








































