M Crest(品川区西五反田) の賃貸オフィス情報

- 所在地
- 東京都品川区西五反田2-7-11
- 最寄り駅
- 五反田駅徒歩1分
- 竣工
- 2025年
- 規模
- 地上11階・地下1階
- 構造
- RC造(鉄筋コンクリート造)
- 耐震基準
- 新耐震基準適合
- セキュリティ
- 機械警備(24時間監視)
- エントランス
- 平日開放
- エレベーター総数
- 2基
- 駐車場設備
- 有(平置き駐車場1台(1階テナント専用))
- 設備
- 24時間(要ICカード)、 トイレ男女別
M Crest の物件特徴・おすすめポイント
■ 2025年7月竣工の新築で清潔感のある環境です
■ 南側ガラス面からの豊かな採光で室内は明るいです
■ 3路線利用可能で品川や渋谷へも直通10分圏内です
■ 女性専用パウダーコーナーなど共用部も充実しています
M Crest の募集区画 (総募集面積 518.57坪)
| 図面 | 階数 | 坪数 | 月額費用 | 坪単価 | 入居可能日 | |
|---|---|---|---|---|---|---|
![]() | B1階 | 79.00坪 | 賃料を確認する (無料・1分) | 即時 | 検討リスト お問い合わせ | |
![]() | 2階 | 74.56坪 | 賃料を確認する (無料・1分) | 即時 | 検討リスト お問い合わせ | |
![]() | 3階 | 75.97坪 | 賃料を確認する (無料・1分) | 即時 | 検討リスト お問い合わせ | |
![]() | 4階 | 72.26坪 | 賃料を確認する (無料・1分) | 即時 | 検討リスト お問い合わせ | |
![]() | 5階 | 72.26坪 | 賃料を確認する (無料・1分) | 即時 | 検討リスト お問い合わせ | |
![]() | 6階 | 72.26坪 | 賃料を確認する (無料・1分) | 即時 | 検討リスト お問い合わせ | |
![]() | 8階 | 72.26坪 | 賃料を確認する (無料・1分) | 即時 | 検討リスト お問い合わせ |
※月額費用、坪単価 ともに共益費込・税別の価格です
地図
東京都品川区西五反田2-7-11 地図をクリックして拡大できます
M Crest の外観イメージ
地上11階建てのスタイリッシュなフォルムが特徴の2025年竣工ビルです。南側には全面ガラスカーテンウォールを採用しており、洗練されたモダンな意匠が周囲のビジネス街でも一際存在感を放ちます。駅徒歩1分の立地と相まって視認性が極めて高く、企業の社会的信頼性や来客への印象を大きく高める重厚かつ清潔感のあるデザインです。隣接する建物との調和を保ちつつも、新築物件ならではの現代的な意匠性が際立っています。








M Crest の周辺イメージ
駅至近の立地ゆえ、ビル周辺にはアトレ五反田や東急ストアなどの商業施設が充実しています。セブンイレブンやナチュラルローソンといったコンビニ、ドン・キホーテやマツモトキヨシなどの物販店も徒歩圏内に揃い、日常の買い物に事欠きません。また、三井ガーデンホテル五反田や多くの飲食店が周辺に集積しているため、来客時の宿泊やランチ、夜の会食場所にも困らないビジネスに最適な環境が整っています。



M Crest のアクセス・ロケーション
■ 駅徒歩分数
・JR山手線 「五反田駅」 西口より徒歩1分
・都営浅草線 「五反田駅」 A2出口より徒歩1分
・東急池上線 「五反田駅」 徒歩1分
■ 主要エリアへのアクセス
品川駅まで直通5分、渋谷駅まで直通7分と、都内の主要ターミナルへ10分圏内で移動できる抜群のフットワークを誇ります。新橋駅や東京駅へも15分前後でアクセス可能なため、取引先への訪問や新幹線を利用した遠方への出張が多い企業にとって、移動時間を大幅に短縮できるメリットがあります。
■ エリア特性
物件が位置する西五反田エリアは、近年「五反田バレー」としてITスタートアップが集積する活気あるビジネス街です。国道1号線(桜田通り)に近い交通の要所であり、周辺には金融機関や郵便局、大規模なオフィスビルが立ち並ぶ、利便性と賑わいが融合したエリアです。
M Crest の募集終了区画
M Crest が選ばれる理由
■ 採用力と社員満足度を最大化する駅徒歩1分の立地
五反田駅のホームから視認できるほどの至近距離は、求職者にとって大きな魅力となります。通勤時間の短縮は、現代のワークライフバランスを重視する優秀な人材を確保する上で、他物件にはない圧倒的な競争優位性をもたらします。
■ 最新ビルが提供する企業のブランディング効果
2025年竣工の新築物件である事実は、企業の成長性や安定性を対外的にアピールする強力なツールとなります。ガラスカーテンウォールの意匠性の高い外観は、訪れるクライアントに対してポジティブな第一印象を与え、商談を有利に進める一助となります。
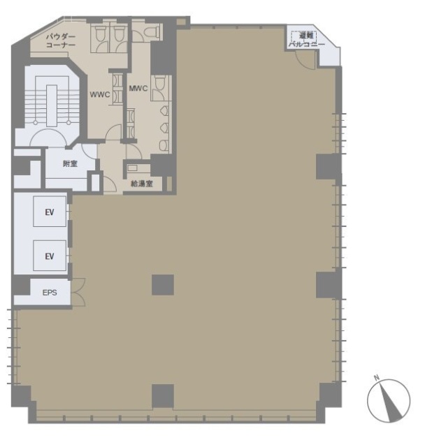
■ 業務効率を追求した整形空間と充実の設備
約72坪の整形フロアはデッドスペースが少なく、組織変更に伴うレイアウト変更にも柔軟に対応可能です。女性専用のパウダーコーナーなど、細部まで配慮された共用設備は社員のエンゲージメントを高め、生産性の向上に寄与します。
近くの物件紹介
品川区のエリア
近くの駅
| 取扱態様 | 仲介 |
|---|---|
| 取扱会社 | 株式会社アドマイアー 東京都中央区日本橋3-2-3ユニバース第1ビル2F TEL. 03-5204-1031 宅地建物取引業免許 東京都知事(3)第94663号 マンション管理業免許 国土交通大臣(2)第034224号 賃貸住宅管理業免許 国土交通大臣(01)第005938号 |

























