msb Tamachi 田町ステーションタワーS 10階 168.96坪(港区芝浦・田町・三田・芝浦ふ頭)
JR田町駅から歩行者デッキで徒歩1分、駅直結の利便性を誇るmsb Tamachi 田町ステーションタワーSは、地上31階建ての次世代型大規模ミクストユースビルです。1フロア約930坪に及ぶ無柱の賃貸オフィス空間は、天井高2,800mmと100mmのOAフロアを備え、国内最高水準の開放感とレイアウト効率を実現しています。スマートエネルギーセンターとの連携により、災害時には専有部へも72時間の電力供給が可能な卓越したBCP機能を完備。館内には多彩な飲食店やスーパー、ホテル「プルマン東京田町」が併設されており、就業者の利便性と企業の社会的ステータスを同時に高める最高峰のビジネス環境が整っています。
| 賃料 | - 港区の平均坪単価: 20,937円(参考) 賃料を確認する(無料・1分) |
|---|---|
| 所在地 | 東京都港区芝浦 |
| 入居可能日 | 応相談 |
| 最寄り駅 | 田町駅徒歩1分、三田駅徒歩3分 |
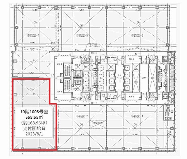
募集終了
| 種別(用途) | 事務所 |
|---|---|
| 階数 | 10階 |
| 部屋番号 | 1003 |
| 面積 | 168.96坪 |
| 契約形態・期間 | 定期借家 |
| 空調方式 | 個別空調 |
| 床仕様 | OAフロア タイルカーペット |
| 天井高 | 3,000mm |
| フロア特徴 | トイレ男女別 |
※月額費用、坪単価ともに税別の価格です
msb Tamachi 田町ステーションタワーS 10階 は現在募集がありません。 (最終確認日: 2024年9月3日)
この物件の最新状況のご確認は、下記の問合せフォームをご利用ください。
この物件の最新状況のご確認は、下記の問合せフォームをご利用ください。
msb Tamachi 田町ステーションタワーS の情報
- 所在地
- 東京都港区芝浦3-1-21
- 最寄り駅
- 田町駅徒歩1分、三田駅徒歩3分、芝浦ふ頭駅徒歩14分
- 竣工
- 2018年
- 規模
- 地上31階
- 構造
- S造(鉄骨造)
- 耐震基準
- 新耐震基準適合
- セキュリティ
- 機械警備(24時間監視)
- エントランス
- 平日開放
- エレベーター総数
- 29基
- 駐車場設備
- 有(駐車場311台)
- 設備
- 非常用発電機、 省エネ・環境配慮、 トイレ男女別
賃料相場
155件のデータ
msb Tamachi 田町ステーションタワーS の募集区画 (総募集面積 0.00坪)
現在募集はありません。
msb Tamachi 田町ステーションタワーS の内装イメージ
執務空間は1フロア最大約936坪の大規模プレートで、中央のコア部分を除いた広大な無柱空間が広がります。天井高2,800mm、最大60VA/㎡のコンセント容量、各階6分割の個別空調を完備し、快適なワークスタイルを支援します。乗用エレベーターは26基と潤沢に配置され、VIP用エレベーターや車寄せ直結の導線も確保。11階と25階には社員食堂の設置を想定した設備も整えられています。
msb Tamachi 田町ステーションタワーS の募集終了区画
近くの物件紹介
港区のエリア
近くの駅
| 取扱態様 | 仲介 |
|---|---|
| 取扱会社 | 株式会社アドマイアー 東京都中央区日本橋3-2-3ユニバース第1ビル2F TEL. 03-5204-1031 宅地建物取引業免許 東京都知事(3)第94663号 マンション管理業免許 国土交通大臣(2)第034224号 賃貸住宅管理業免許 国土交通大臣(01)第005938号 |







































