協一ビル 999階【1-3F】 62.85坪(墨田区、亀沢、両国)
募集終了
種別(用途) | 事務所 |
---|---|
階数 | 999階 |
部屋番号 | 1-3F |
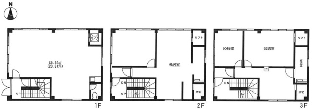
面積 | 62.85坪 |
契約形態・期間 | 普通借家 3年 |
空調方式 | 要確認 |
床仕様 | 要確認 |
天井高 | 要確認 |
フロア特徴 | 1棟貸し、 トイレ男女別 |
※月額費用、坪単価ともに税別の価格です
協一ビル 999階【1-3F】 は現在募集がありません。
この物件の最新状況のご確認は、下記の問合せフォームをご利用ください。
この物件の最新状況のご確認は、下記の問合せフォームをご利用ください。
協一ビル の情報
- 所在地
- 東京都墨田区亀沢2-14-4
- 最寄り駅
- 両国駅徒歩5分
- 竣工
- 1990年
- 規模
- 地上3階
- 構造
- S
- 耐震基準
- 新耐震基準
- エントランス
- 平日開放
- 駐車場設備
- 要確認
- 基準階坪数
- 62.85坪
協一ビル の募集区画 (総募集面積 0.00坪)
現在募集はありません。
協一ビル の募集終了区画
図面 | 階数 | 坪数 | 月額費用 | 坪単価 | 入居可能日 | |
---|---|---|---|---|---|---|
![]() | 999階 | 62.85坪 | - | - | 募集終了 | 検討リスト |
近くの物件紹介
墨田区のエリア
近くの駅
取扱態様 | 仲介 |
---|---|
取扱会社 | 株式会社アドマイアー 東京都中央区日本橋3-2-3ユニバース第1ビル2F TEL. 03-5204-1031 宅地建物取引業免許 東京都知事(3)第94663号 マンション管理業免許 国土交通大臣(2)第034224号 賃貸住宅管理業免許 国土交通大臣(01)第005938号 |