ワコーレ三軒茶屋64ビル 4階 36.40坪(世田谷区三軒茶屋)
ワコーレ三軒茶屋64ビルは、世田谷区の主要ビジネスエリア「三軒茶屋」の象徴的な幹線道路、玉川通り沿いに位置するハイグレードな賃貸オフィスビルです。東急田園都市線・世田谷線の「三軒茶屋駅」から徒歩1分という圧倒的な駅近立地を誇り、渋谷方面への軽快なアクセスを可能にします。1986年竣工ながら、2014年に大規模修繕工事を実施しており、ガラス張りのシャープな外観と白を基調とした清潔感溢れるエントランスは、訪れる人に洗練された企業の印象を与えます。4階の募集区画は約36.4坪。室内は個別空調を完備し、男女別トイレや給湯スペースが室外に配置されているため、執務スペースを最大限に活用できる機能的な設計です。エレベーターも2基設置されており、朝の混雑時もスムーズ。周辺には「セブン-イレブン」や「郵便局」、多彩な飲食店が揃い、従業員の利便性とモチベーションを高める理想的な就業環境が整っています。
募集終了
| 種別(用途) | 事務所 |
|---|---|
| 階数 | 4階 |
| 部屋番号 | BC |
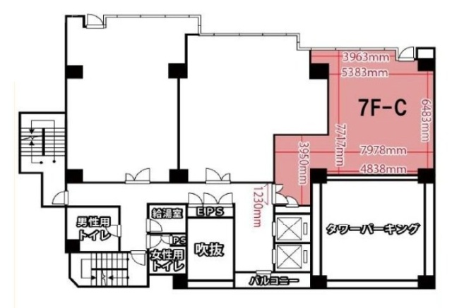
| 面積 | 36.40坪 |
| 契約形態・期間 | 定期借家 3年 |
| 空調方式 | 要確認 |
| 床仕様 | 要確認 |
| 天井高 | 要確認 |
| フロア特徴 | 病院・クリニック |
※月額費用、坪単価ともに税別の価格です
ワコーレ三軒茶屋64ビル 4階 は現在募集がありません。 (最終確認日: 2026年5月11日)
この物件の最新状況のご確認は、下記の問合せフォームをご利用ください。
この物件の最新状況のご確認は、下記の問合せフォームをご利用ください。
ワコーレ三軒茶屋64ビル の情報
- 所在地
- 東京都世田谷区三軒茶屋1-37-8
- 最寄り駅
- 三軒茶屋駅徒歩1分
- 竣工
- 1986年
- リニューアル済み
- 2014年大規模修繕工事完了
- 規模
- 地上10階
- 構造
- SRC造(鉄骨鉄筋コンクリート造)
- 耐震基準
- 新耐震基準適合
- セキュリティ
- 機械警備(24時間監視)
- エントランス
- 平日開放
- エレベーター総数
- 2基
- 駐車場設備
- 有
- 設備
- トイレ男女別
賃料相場
37件のデータ
ワコーレ三軒茶屋64ビル の募集区画 (総募集面積 18.58坪)
※月額費用、坪単価 ともに共益費込・税別の価格です
ワコーレ三軒茶屋64ビル の内装イメージ
募集中の4階区画は約36.4坪。室内は明るく、無駄の少ない空間が広がっています(一部柱があるため、レイアウト検討時にご確認が必要です)。個別空調完備により、テナントごとの細かな環境管理が可能です。最大の特長は男女別トイレや給湯室が室外に集約されている点にあり、騒音や臭いを気にせず、執務スペースの自由度を高められる設計です。光ファイバー対応により、高速な通信環境もスムーズに構築できるビジネススペックを備えています。




ワコーレ三軒茶屋64ビル の募集終了区画
| 図面 | 階数 | 坪数 | 月額費用 | 坪単価 | 入居可能日 | |
|---|---|---|---|---|---|---|
準備中 | 1階 | 29.09坪 | - | 募集終了 | 検討リスト | |
![]() | 2階 | 21.85坪 | - | 募集終了 | 検討リスト | |
準備中 | 2階 | 16.79坪 | - | 募集終了 | 検討リスト | |
![]() | 3階 | 20.61坪 | - | 募集終了 | 検討リスト | |
![]() | 3階 | 34.74坪 | - | 募集終了 | 検討リスト | |
準備中 | 4階 | 69.37坪 | - | 募集終了 | 検討リスト | |
![]() | 4階 | 18.96坪 | - | 募集終了 | 検討リスト | |
![]() | 4階 | 36.40坪 | - | 募集終了 | 検討リスト | |
準備中 | 5階 | 55.36坪 | - | 募集終了 | 検討リスト | |
準備中 | 5階 | 20.61坪 | - | 募集終了 | 検討リスト | |
準備中 | 6階 | 28.79坪 | - | 募集終了 | 検討リスト | |
準備中 | 6階 | 34.74坪 | - | 募集終了 | 検討リスト | |
準備中 | 6階 | 55.35坪 | - | 募集終了 | 検討リスト | |
準備中 | 6階 | 20.61坪 | - | 募集終了 | 検討リスト | |
準備中 | 7階 | 68.79坪 | - | 募集終了 | 検討リスト | |
準備中 | 7階 | 54.89坪 | - | 募集終了 | 検討リスト | |
![]() | 7階 | 15.69坪 | - | 募集終了 | 検討リスト | |
準備中 | 8階 | 68.79坪 | - | 募集終了 | 検討リスト | |
![]() | 8階 | 54.89坪 | - | 募集終了 | 検討リスト | |
![]() | 9階 | 68.77坪 | - | 募集終了 | 検討リスト | |
![]() | 9階 | 20.61坪 | - | 募集終了 | 検討リスト | |
![]() | 9階 | 18.27坪 | - | 募集終了 | 検討リスト | |
準備中 | 9階 | 48.15坪 | - | 募集終了 | 検討リスト | |
![]() | 9階 | 29.88坪 | - | 募集終了 | 検討リスト | |
![]() | 10階 | 20.61坪 | - | 募集終了 | 検討リスト | |
準備中 | 10階 | 30.11坪 | - | 募集終了 | 検討リスト | |
準備中 | 10階 | 29.05坪 | - | 募集終了 | 検討リスト |
近くの物件紹介
世田谷区のエリア
近くの駅
| 取扱態様 | 仲介 |
|---|---|
| 取扱会社 | 株式会社アドマイアー 東京都中央区日本橋3-2-3ユニバース第1ビル2F TEL. 03-5204-1031 宅地建物取引業免許 東京都知事(3)第94663号 マンション管理業免許 国土交通大臣(2)第034224号 賃貸住宅管理業免許 国土交通大臣(01)第005938号 |





































