アビスタ市ヶ谷ビル 2階【D】 12.25坪(千代田区、九段南、市ケ谷、半蔵門)
募集終了
| 種別(用途) | 事務所 |
|---|---|
| 階数 | 2階 |
| 部屋番号 | D |
| 面積 | 12.25坪 |
| 契約形態・期間 | 普通借家 3年 |
| 空調方式 | 要確認 |
| 床仕様 | OAフロア タイルカーペット |
| 天井高 | 2,550mm |
※月額費用、坪単価ともに税別の価格です
アビスタ市ヶ谷ビル 2階【D】 は現在募集がありません。
この物件の最新状況のご確認は、下記の問合せフォームをご利用ください。
この物件の最新状況のご確認は、下記の問合せフォームをご利用ください。
アビスタ市ヶ谷ビル の情報
- 所在地
- 東京都千代田区九段南4-2-11
- 最寄り駅
- 市ケ谷駅徒歩2分、半蔵門駅徒歩9分、麹町駅徒歩14分
- 竣工
- 2008年
- 規模
- 地上9階
- 構造
- S造(鉄骨造)
- 耐震基準
- 新耐震基準適合
- セキュリティ
- 機械警備(24時間監視)
- エントランス
- 平日開放(7:30-21:00)
- エレベーター総数
- 1基
- 駐車場設備
- 要確認(平置き1台)
アビスタ市ヶ谷ビル の募集区画 (総募集面積 63.14坪)
※月額費用、坪単価 ともに共益費込・税別の価格です
アビスタ市ヶ谷ビル の内装イメージ
アビスタ市ヶ谷ビル(千代田区九段南)の室内は、L字型に近い形をしており、柱が壁際に集約されている為、開放感があります。オフィスレイアウトも自由に組みやすいでしょう。ミニキッチンが完備されており、急な来客対応時などにもお茶の準備がスムーズにできそうです。男女別のトイレも清潔に保たれています。バルコニーが設置されているので、様々な用途で便利に活用できるでしょう。
アビスタ市ヶ谷ビル の募集終了区画
| 図面 | 階数 | 坪数 | 月額費用 | 坪単価 | 入居可能日 | |
|---|---|---|---|---|---|---|
![]() | 1階 | 43.38坪 | お問い合わせください | 募集終了 | 検討リスト | |
![]() | 2階 | 34.75坪 | お問い合わせください | 募集終了 | 検討リスト | |
![]() | 2階 | 20.30坪 | お問い合わせください | 募集終了 | 検討リスト | |
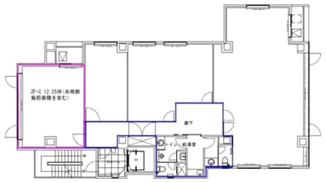
![]() | 2階 | 12.25坪 | お問い合わせください | 募集終了 | 検討リスト | |
![]() | 3階 | 29.10坪 | お問い合わせください | 募集終了 | 検討リスト | |
![]() | 3階 | 34.04坪 | お問い合わせください | 募集終了 | 検討リスト | |
![]() | 4階 | 63.14坪 | お問い合わせください | 募集終了 | 検討リスト | |
![]() | 5階 | 63.14坪 | お問い合わせください | 募集終了 | 検討リスト | |
![]() | 5階 | 19.37坪 | お問い合わせください | 募集終了 | 検討リスト | |
![]() | 7階 | 37.32坪 | お問い合わせください | 募集終了 | 検討リスト | |
![]() | 7階 | 19.36坪 | お問い合わせください | 募集終了 | 検討リスト |
近くの物件紹介
千代田区のエリア
近くの駅
| 取扱態様 | 仲介 |
|---|---|
| 取扱会社 | 株式会社アドマイアー 東京都中央区日本橋3-2-3ユニバース第1ビル2F TEL. 03-5204-1031 宅地建物取引業免許 東京都知事(3)第94663号 マンション管理業免許 国土交通大臣(2)第034224号 賃貸住宅管理業免許 国土交通大臣(01)第005938号 |











































