第3虎ノ門電気ビル(港区、虎ノ門、虎ノ門ヒルズ、霞ケ関) の賃貸オフィス情報

- 所在地
- 東京都港区虎ノ門1-2-20
- 最寄り駅
- 虎ノ門駅徒歩2分、虎ノ門ヒルズ駅徒歩4分、霞ケ関駅徒歩6分
- 竣工
- 2013年
- 規模
- 地上12階・地下1階
- 構造
- SRC造(鉄骨鉄筋コンクリート造)
- 耐震基準
- 新耐震基準適合・制震構造
- セキュリティ
- 機械警備(24時間監視)
- エントランス
- 平日開放
- エレベーター総数
- 2基
- 駐車場設備
- 有
- 設備
- 非常用発電機、 トイレ男女別
第3虎ノ門電気ビル の物件特徴・おすすめポイント
■2013年竣工の築浅。制震構造と非常用発電機を兼ね備えた、エリア屈指の防災・BCPスペック。
■官公庁・霞ケ関エリア至近。弁護士事務所や行政関連、士業の方にも選ばれる戦略的ロケーション。
■エレベーター2基体制。12階建ての規模に対してゆとりある基数構成で、待ち時間のストレスを軽減。
■駐車場完備。車でのアプローチが重要な営業活動や、役員車両の運用にも柔軟に対応可能なインフラ。
第3虎ノ門電気ビル の募集区画 (総募集面積 105.01坪)
※月額費用、坪単価 ともに共益費込・税別の価格です
建物に関するよくある質問と回答
A: 2013年竣工の新耐震基準に加え、制震ダンパーを採用した制震構造です。PML値(地震による予想損失額の割合)は2.1%と極めて低い数値で、高い安全性が確保されています。
Q2: 空調設備の仕様を教えてください
A: 24時間利用可能な個別空調システムを採用しています。さらに屋上には空調増強用の室外機スペースが確保されており、サーバールームの設置など特殊なニーズにも対応可能です。
Q1. 第3虎ノ門電気ビルの最寄り駅・アクセスはどこですか?
A. 東京メトロ銀座線「虎ノ門駅」2番出口より徒歩2分です。また、日比谷線「虎ノ門ヒルズ駅」より徒歩4分、千代田線・丸ノ内線・日比谷線「霞ケ関駅」からも徒歩6分と、複数駅からスムーズにアプローチ可能な好立地を保持しています。
Q2. 第3虎ノ門電気ビルの耐震性能・構造はどうなっていますか?
A. 2013年に竣工した建物であり、新耐震基準に適合しています。さらに「制震構造」を採用しており、地震の揺れを効果的に吸収・抑制する最新の建築技術が、ビル全体の安全性と信頼性を物理的に高めています。
Q3. BCP(事業継続計画)対策はどうなっていますか?
A. 館内に非常用発電機を完備しています。災害や停電時においても、企業の重要業務を継続できるよう配慮された設計となっており、高いリスク管理が求められる現代のビジネスに最適です。
Q4. 第3虎ノ門電気ビルのセキュリティ体制はどうなっていますか?
A. 24時間監視の機械警備システムを導入しています。夜間や休日もセキュリティ認証を利用して安全に入退館できる環境を整えており、都心の中枢に相応しい企業の安全性を確保しています。
Q5. 第3虎ノ門電気ビルは24時間利用が可能ですか?
A. はい、当ビルは24時間入退館が可能です。エントランスは平日開放されており、開放時間外も認証システムにより自由な稼働体制を保持できるため、不規則な業務時間にも柔軟に対応します。
Q6. 第3虎ノ門電気ビルのトイレは男女別ですか?
A. はい、各フロアの共用部に男女別のトイレを完備しています。2013年竣工ならではの清潔で機能的な最新の水回り設備が提供されており、従業員に配慮した高品質な環境が整っています。
Q7. 第3虎ノ門電気ビルに駐車場はありますか?
A. はい、建物内に駐車場を併設しています。虎ノ門・霞ケ関エリアで車両を収容できる設計は利便性が高く、最新の空き状況については都度確認が必要なため、詳細はお問い合わせください。
Q8. 第3虎ノ門電気ビルのエレベーターは何基ありますか?
A. 館内に2基設置されています。12階建ての規模に対して十分な基数構成となっており、通勤時や外出が重なる時間帯の待ち時間を軽減し、ストレスのない移動を実現します。
Q9. 周辺に飲食店やコンビニはありますか?
A. 徒歩1分圏内にコンビニがあるほか、周辺の再開発ビル(虎ノ門ヒルズ等)内に多彩なレストラン、カフェが多数揃っています。ランチ環境や会食にも困らない、非常に充実したアメニティ環境です。
Q10. 第3虎ノ門電気ビルの管理形態はどうなっていますか?
A. 専門の管理会社により高品質なビルマネジメントが実施されています。築浅物件の美しさと最新の設備環境を常に維持しており、虎ノ門の拠点にふさわしいプロフェッショナルな環境を提供しています。
地図
東京都港区虎ノ門1-2-20 地図をクリックして拡大できます
第3虎ノ門電気ビル の外観イメージ
地上12階建の第3虎ノ門電気ビルは、2013年に竣工した、虎ノ門エリアの最新の街並みに調和する洗練された意匠のオフィスビルです。外装は現代的なマテリアルを用いたスタイリッシュでシャープなデザインを採用し、SRC造の重厚感と築浅ならではの清涼感がビジネス拠点としての信頼性を提示しています。外堀通り至近の視認性に優れた佇まいは、来客に対してプロフェッショナルな第一印象を与え、虎ノ門という都内屈指のビジネス拠点に相応しい清潔感を演出。平日に開放されるエントランスは、管理基準に基づき質感の高い空間が維持されており、来訪者を誠実な雰囲気で迎え入れる意匠性を備えています。











第3虎ノ門電気ビル の周辺イメージ
港区虎ノ門1丁目の、再開発により急速に進化を遂げる虎ノ門エリアと、伝統的な官公庁街である霞ケ関が交差する戦略的ロケーションに位置しています。物件周辺にはランチや打ち合わせに適した多種多様な飲食店、カフェ、コンビニが網羅されています。虎ノ門駅から徒歩2分という立地のため、虎ノ門郵便局や主要銀行の支店も至近に揃っており、ビジネスインフラは完璧に整っています。虎ノ門ヒルズの商業施設も至近で、都心の利便性を享受しつつ、リフレッシュ環境にも恵まれた、従業員の満足度と業務効率を同時に高める良好なロケーションです。


第3虎ノ門電気ビル のアクセス・ロケーション
■ 駅徒歩分数
・東京メトロ銀座線 「虎ノ門駅」 出口より徒歩2分
・東京メトロ日比谷線 「虎ノ門ヒルズ駅」 出口より徒歩4分
・東京メトロ千代田線・丸ノ内線・日比谷線 「霞ケ関駅」 出口より徒歩6分
■ 主要エリアへのアクセス
虎ノ門駅から新橋駅まで約2分、銀座駅まで約4分、赤坂見附駅まで約3分。霞ケ関駅を利用すれば、大手町や新宿方面へもダイレクトにアクセス可能です。主要4路線を自在に使い分けられるため、営業活動や従業員の通勤、官公庁へのアプローチにおいて、圧倒的な時間効率とアクセシビリティを保持しています。
■ エリア特性
物件が位置する虎ノ門1丁目エリアは、国際ビジネスの拠点として再開発が加速しており、外資系企業や国内大手企業の本社が集積する戦略的拠点です。霞ケ関エリアにも極めて近く、士業や行政関連企業にとってもブランド価値と実利的な機動力を兼ね備えた、唯一無二のロケーションです。
第3虎ノ門電気ビル の主な入居テナント
第3虎ノ門電気ビル の募集終了区画
| 図面 | 階数 | 坪数 | 月額費用 | 坪単価 | 入居可能日 | |
|---|---|---|---|---|---|---|
![]() | 1階 | 31.10坪 | お問い合わせください | 募集終了 | 検討リスト | |
![]() | 2階 | 37.16坪 | お問い合わせください | 募集終了 | 検討リスト | |
![]() | 3階 | 37.16坪 | お問い合わせください | 募集終了 | 検討リスト | |
![]() | 4階 | 54.33坪 | お問い合わせください | 募集終了 | 検討リスト | |
![]() | 5階 | 85.02坪 | お問い合わせください | 募集終了 | 検討リスト | |
![]() | 7階 | 19.99坪 | お問い合わせください | 募集終了 | 検討リスト | |
![]() | 7階 | 85.02坪 | お問い合わせください | 募集終了 | 検討リスト | |
![]() | 8階 | 85.03坪 | お問い合わせください | 募集終了 | 検討リスト | |
![]() | 8階 | 65.04坪 | お問い合わせください | 募集終了 | 検討リスト | |
![]() | 8階 | 30.70坪 | お問い合わせください | 募集終了 | 検討リスト | |
![]() | 9階 | 85.09坪 | お問い合わせください | 募集終了 | 検討リスト | |
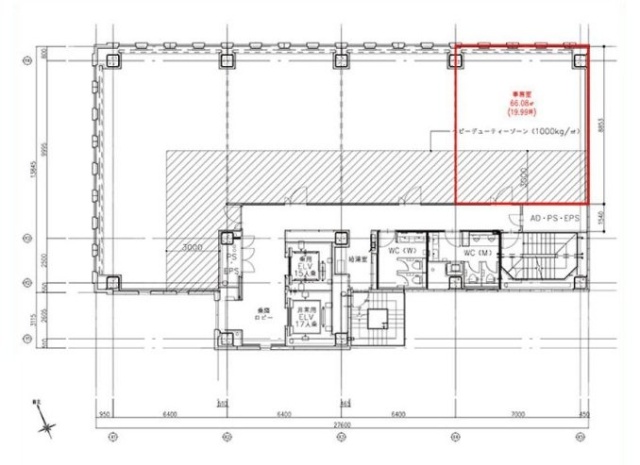
![]() | 11階 | 66.08坪 | お問い合わせください | 募集終了 | 検討リスト | |
![]() | 12階 | 85.03坪 | お問い合わせください | 募集終了 | 検討リスト |
第3虎ノ門電気ビル が選ばれる理由
■ 虎ノ門駅徒歩2分・霞ケ関徒歩圏の圧倒的な機動力
主要駅から至近の立地は、都内の移動効率を飛躍的に高めるだけでなく、官公庁へのスムーズなアクセスも可能にします。従業員の通勤負担を軽減し、急な来客対応においても高い利便性を提供。スピード感と効率を重視する企業にとって、この機動力は選定の決定的な理由となります。
■ 制震構造と非常用発電機による最高水準の安全性
2013年竣工の築浅スペックに加え、制震構造による地震対策、さらには非常用発電機を完備している点は、港区エリアでも高い希少性を誇ります。災害時の事業継続性を物理的に担保しており、長期的な安定運営を志向する企業にとって、社会的信頼を維持するための強力なアドバンテージとなります。
■ 虎ノ門1丁目アドレスの信頼性と充実のスペック
国際ビジネスの中心地である虎ノ門アドレスは、対外的なイメージ向上に大きく寄与します。個別空調、OAフロア、男女別トイレ完備といった実用的な機能に加え、エレベーター2基や駐車場といった充実したインフラが、日々の業務ストレスを物理的に軽減。管理の行き届いた清潔な環境が、企業の成長を支援します。
近くの物件紹介
港区のエリア
近くの駅
| 取扱態様 | 仲介 |
|---|---|
| 取扱会社 | 株式会社アドマイアー 東京都中央区日本橋3-2-3ユニバース第1ビル2F TEL. 03-5204-1031 宅地建物取引業免許 東京都知事(3)第94663号 マンション管理業免許 国土交通大臣(2)第034224号 賃貸住宅管理業免許 国土交通大臣(01)第005938号 |































