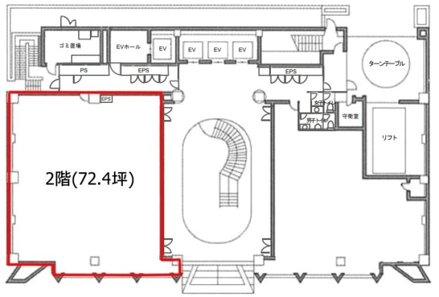
アーバンセンター横浜ウエスト 2階 72.46坪(横浜市神奈川区鶴屋町・みなとみらい)
横浜駅西口の主要ビジネス街、鶴屋町に位置する地上12階建てのハイグレードビルです。前面ガラスカーテンウォールの外観は非常に視認性が高く、入居企業のステータスを象徴します。最大の特徴は、駅近立地ながら「駐車場10台以上相談可能」という卓越した車両対応力。室内は個別空調やOAフロア、LED照明を備え、レイアウト効率の良い広々とした空間を提供します。土日もメインエントランスから入館可能なため、サービス業や来客対応の多い業種にも柔軟に対応。最新の設備と管理体制が、横浜を拠点とする企業の次なる成長を強力にバックアップします。
| 賃料 | - 横浜市神奈川区の平均坪単価: 14,298円(参考) 賃料を確認する(無料・1分) |
|---|---|
| 所在地 | 神奈川県横浜市神奈川区鶴屋町 |
| 入居可能日 | 応相談 |
| 最寄り駅 | みなとみらい駅徒歩6分、横浜駅徒歩6分 |
募集終了
| 種別(用途) | 事務所 |
|---|---|
| 階数 | 2階 |
| 部屋番号 | 2F |
| 面積 | 72.46坪 |
| 契約形態・期間 | 普通借家 |
| 空調方式 | 要確認 |
| 床仕様 | OAフロア タイルカーペット |
| 天井高 | 2,650mm |
| フロア特徴 | トイレ男女別、 基準階100坪以上の分割区画 |
※月額費用、坪単価ともに税別の価格です
アーバンセンター横浜ウエスト 2階 は現在募集がありません。
この物件の最新状況のご確認は、下記の問合せフォームをご利用ください。
この物件の最新状況のご確認は、下記の問合せフォームをご利用ください。
アーバンセンター横浜ウエスト の情報
- 所在地
- 神奈川県横浜市神奈川区鶴屋町3-33-8
- 最寄り駅
- みなとみらい駅徒歩6分、横浜駅徒歩6分、神奈川駅徒歩9分
- 竣工
- 1994年
- 規模
- 地上12階・地下2階
- 構造
- SRC造(鉄骨鉄筋コンクリート造)
- 耐震基準
- 新耐震基準適合
- セキュリティ
- 機械警備・有人管理(24時間体制)
- エントランス
- 毎日開放(平日:7~22時 土日:8~17時)
- エレベーター総数
- 3基
- 駐車場設備
- 有
- 設備
- 24時間(要ICカード)
賃料相場
53件のデータ
アーバンセンター横浜ウエスト の募集区画 (総募集面積 0.00坪)
現在募集はありません。
アーバンセンター横浜ウエスト の内装イメージ
募集区画は80坪から120坪超の整形空間で、効率的なレイアウトが可能です。個別空調により、エリアごとの細かな温度調節ができ、OAフロア完備により配線を床下に集約。室内照明はLED化されており、環境への配慮と快適な明るさを両立しています。前面ガラスの開口部からは横浜駅周辺のパノラマと豊かな自然光が入り、ワーカーのモチベーションを高めるクリエイティブな執務環境を実現します。

アーバンセンター横浜ウエスト の募集終了区画
近くの物件紹介
横浜市のエリア
近くの駅
| 取扱態様 | 仲介 |
|---|---|
| 取扱会社 | 株式会社アドマイアー 東京都中央区日本橋3-2-3ユニバース第1ビル2F TEL. 03-5204-1031 宅地建物取引業免許 東京都知事(3)第94663号 マンション管理業免許 国土交通大臣(2)第034224号 賃貸住宅管理業免許 国土交通大臣(01)第005938号 |








































