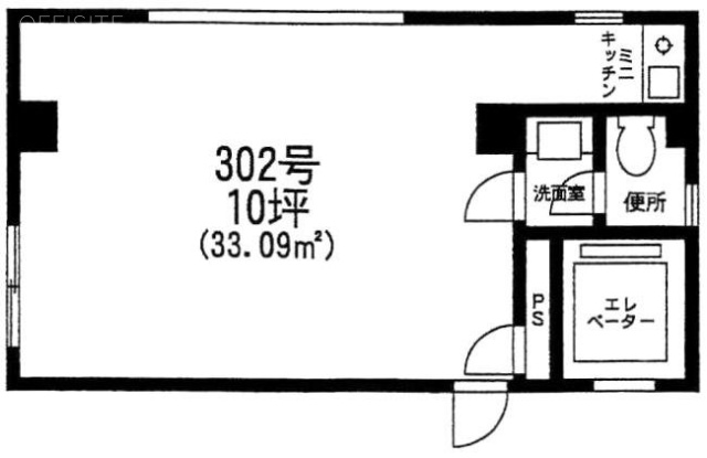
VICビル6 3階【302】 10.00坪(世田谷区、経堂、宮の坂、松原)
募集終了
| 種別(用途) | 事務所 |
|---|---|
| 階数 | 3階 |
| 部屋番号 | 302 |
| 面積 | 10.00坪 |
| 契約形態・期間 | 普通借家 2年 |
| 空調方式 | 要確認 |
| 床仕様 | 要確認 |
| 天井高 | 要確認 |
※月額費用、坪単価ともに税別の価格です
VICビル6 3階【302】 は現在募集がありません。
この物件の最新状況のご確認は、下記の問合せフォームをご利用ください。
この物件の最新状況のご確認は、下記の問合せフォームをご利用ください。
VICビル6 の情報
- 所在地
- 東京都世田谷区経堂1-18-12
- 最寄り駅
- 経堂駅徒歩1分、宮の坂駅徒歩11分、松原駅徒歩17分
- 竣工
- 1993年
- 規模
- 地上4階
- 構造
- RC造(鉄筋コンクリート造)
- 耐震基準
- 新耐震基準適合
- エントランス
- 平日開放
- エレベーター総数
- 1基
- 駐車場設備
- 要確認
賃料相場
9件のデータ
VICビル6 の募集区画 (総募集面積 0.00坪)
現在募集はありません。
VICビル6 の募集終了区画
近くの物件紹介
世田谷区のエリア
近くの駅
| 取扱態様 | 仲介 |
|---|---|
| 取扱会社 | 株式会社アドマイアー 東京都中央区日本橋3-2-3ユニバース第1ビル2F TEL. 03-5204-1031 宅地建物取引業免許 東京都知事(3)第94663号 マンション管理業免許 国土交通大臣(2)第034224号 賃貸住宅管理業免許 国土交通大臣(01)第005938号 |


























