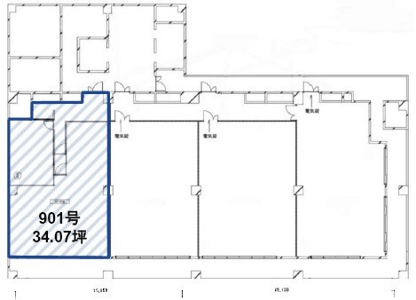
KDX銀座イーストビル 9階 34.07坪(中央区、入船、新富町、築地)
| 賃料 | - 最新の募集条件を問い合わせる |
|---|---|
| 所在地 | 東京都中央区入船 |
| 入居可能日 | - |
| 最寄り駅 | 新富町駅徒歩3分、築地駅徒歩4分 |
募集終了
| 種別(用途) | 事務所 |
|---|---|
| 階数 | 9階 |
| 部屋番号 | 9F |
| 面積 | 34.07坪 |
| 契約形態・期間 | 普通借家 |
| 空調方式 | 要確認 |
| 床仕様 | 要確認 |
| 天井高 | 要確認 |
| フロア特徴 | トイレ男女別、 基準階100坪以上の分割区画、 デザイナーズ |
※月額費用、坪単価ともに税別の価格です
KDX銀座イーストビル 9階 は現在募集がありません。
この物件の最新状況のご確認は、下記の問合せフォームをご利用ください。
この物件の最新状況のご確認は、下記の問合せフォームをご利用ください。
KDX銀座イーストビル の情報
- 所在地
- 東京都中央区入船3-7-2
- 最寄り駅
- 新富町駅徒歩3分、築地駅徒歩4分、八丁堀駅徒歩5分
- 竣工
- 1991年
- 規模
- 地上9階・地下1階
- 構造
- SRC造(鉄骨鉄筋コンクリート造)
- 耐震基準
- 新耐震基準適合
- セキュリティ
- 機械警備(24時間監視)
- エントランス
- 平日開放
- エレベーター総数
- 3基
- 駐車場設備
- 要確認
KDX銀座イーストビル の募集区画 (総募集面積 0.00坪)
現在募集はありません。
KDX銀座イーストビル の内装イメージ
KDX銀座イーストビル(中央区入船)の室内は、2面からの採光を確保できる為、明るい雰囲気です。また、広々として開放感がありますが、柱が内部に立っている為、オフィスレイアウトには少し工夫が必要かもしれません。給湯室は、ゆったりとした造りで使いやすいでしょう。急な来客時にもお茶の準備などスムーズにできそうです。男女別のトイレは洗面等の水回りも清潔感にあふれ、手入れの行き届いた様子がうかがわれます。
KDX銀座イーストビル の募集終了区画
| 図面 | 階数 | 坪数 | 月額費用 | 坪単価 | 入居可能日 | |
|---|---|---|---|---|---|---|
![]() | 1階 | 102.89坪 | - | - | 募集終了 | 検討リスト |
![]() | 2階 | 156.87坪 | - | - | 募集終了 | 検討リスト |
![]() | 2階 | 32.48坪 | - | - | 募集終了 | 検討リスト |
![]() | 2階 | 37.98坪 | - | - | 募集終了 | 検討リスト |
![]() | 2階 | 49.53坪 | - | - | 募集終了 | 検討リスト |
![]() | 2階 | 119.98坪 | - | - | 募集終了 | 検討リスト |
![]() | 3階 | 156.87坪 | - | - | 募集終了 | 検討リスト |
![]() | 3階 | 194.19坪 | - | - | 募集終了 | 検討リスト |
![]() | 4階 | 39.15坪 | - | - | 募集終了 | 検討リスト |
![]() | 4階 | 68.28坪 | - | - | 募集終了 | 検討リスト |
![]() | 4階 | 117.71坪 | - | - | 募集終了 | 検討リスト |
![]() | 4階 | 156.87坪 | - | - | 募集終了 | 検討リスト |
![]() | 4階 | 49.43坪 | - | - | 募集終了 | 検討リスト |
![]() | 5階 | 156.86坪 | - | - | 募集終了 | 検討リスト |
![]() | 6階 | 156.87坪 | - | - | 募集終了 | 検討リスト |
![]() | 7階 | 156.87坪 | - | - | 募集終了 | 検討リスト |
![]() | 8階 | 156.87坪 | - | - | 募集終了 | 検討リスト |
![]() | 9階 | 29.85坪 | - | - | 募集終了 | 検討リスト |
![]() | 9階 | 29.85坪 | - | - | 募集終了 | 検討リスト |
![]() | 9階 | 34.48坪 | - | - | 募集終了 | 検討リスト |
![]() | 9階 | 33.37坪 | - | - | 募集終了 | 検討リスト |
![]() | 9階 | 34.07坪 | - | - | 募集終了 | 検討リスト |
近くの物件紹介
中央区のエリア
近くの駅
| 取扱態様 | 仲介 |
|---|---|
| 取扱会社 | 株式会社アドマイアー 東京都中央区日本橋3-2-3ユニバース第1ビル2F TEL. 03-5204-1031 宅地建物取引業免許 東京都知事(3)第94663号 マンション管理業免許 国土交通大臣(2)第034224号 賃貸住宅管理業免許 国土交通大臣(01)第005938号 |





















































