京橋YAHATAビル 5階 35.00坪(中央区、八丁堀、宝町、茅場町)
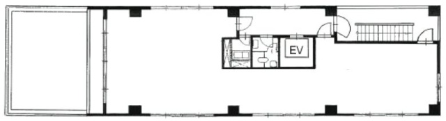
京橋YAHATAビルは、中央区八丁堀の落ち着いたビジネスエリアに佇む地上8階建ての賃貸オフィスビルです。最大の特長は、都営浅草線「宝町駅」から徒歩3分をはじめ、八丁堀、京橋、茅場町など5駅6路線が利用できる抜群の交通利便性。1981年竣工の建物ですが、管理体制が良好でエントランスには清潔感があり、機械警備によるセキュリティも完備されています。募集中の5階(35.0坪)は、この規模では非常に稀少な「四面採光」を実現。4方向に配置された窓から光が差し込み、明るく風通しの良い、健やかなワークスペースを提供します。さらに1フロア1テナントのため、共用部を含めたプライベートな感覚での利用が可能。男女別トイレは室外に配置されており、35坪の専有面積を無駄なく執務に充てられます。入退室口が2箇所あるため、来客動線と社員動線を分けたレイアウトも思いのまま。敷金3ヶ月というリーズナブルな条件も相まって、中央区での事業拡大を検討中の企業様に最適な一台です。
募集終了
| 種別(用途) | 事務所 |
|---|---|
| 階数 | 5階 |
| 部屋番号 | 5F |
| 面積 | 35.00坪 |
| 契約形態・期間 | 普通借家 2年 |
| 空調方式 | 個別空調 |
| 床仕様 | OAフロア タイルカーペット |
| 天井高 | 2,350mm |
※月額費用、坪単価ともに税別の価格です
京橋YAHATAビル 5階 は現在募集がありません。 (最終確認日: 2026年3月2日)
この物件の最新状況のご確認は、下記の問合せフォームをご利用ください。
この物件の最新状況のご確認は、下記の問合せフォームをご利用ください。
京橋YAHATAビル の情報
- 所在地
- 東京都中央区八丁堀3-5-8
- 最寄り駅
- 宝町駅徒歩3分、八丁堀駅徒歩5分、茅場町駅徒歩9分
- 竣工
- 1981年
- 規模
- 地上8階
- 構造
- SRC造(鉄骨鉄筋コンクリート造)
- セキュリティ
- 機械警備(24時間監視)
- エントランス
- 平日開放
- エレベーター総数
- 1基
- 駐車場設備
- 無
- 設備
- トイレ男女別
賃料相場
180件のデータ
京橋YAHATAビル の募集区画 (総募集面積 0.00坪)
現在募集はありません。
京橋YAHATAビル の内装イメージ
募集中の5階(35坪)は、四面採光という贅沢な窓配置により、常に柔らかな自然光に包まれたオフィス空間です。OAフロアにより配線はすっきりと収まり、個別空調で自由な温度管理が可能。2箇所の扉があることで、受付スペースの設置や会議室への動線確保が容易です。共用部にある男女別トイレや給湯スペースも管理が行き届き、快適な日常業務を支えます。



京橋YAHATAビル の募集終了区画
近くの物件紹介
中央区のエリア
近くの駅
| 取扱態様 | 仲介 |
|---|---|
| 取扱会社 | 株式会社アドマイアー 東京都中央区日本橋3-2-3ユニバース第1ビル2F TEL. 03-5204-1031 宅地建物取引業免許 東京都知事(3)第94663号 マンション管理業免許 国土交通大臣(2)第034224号 賃貸住宅管理業免許 国土交通大臣(01)第005938号 |







































