KT-Ⅱビル 4階 17.05坪(千代田区、内神田、大手町、神田)
地下鉄5路線が乗り入れる「大手町」駅から徒歩5分、JR「神田」駅からも徒歩7分という、都内屈指の交通利便性を誇る内神田エリアのオフィスビルです。1990年竣工の新耐震基準適合物件で、外堀通りから一本入った場所に位置しており、ビジネス街の活気と落ち着きが同居する環境です。本物件の魅力は、約26坪というコンパクトな規模ながら「1フロア1テナント」の独立性を確保している点にあります。他社と共用部を共有しないため、セキュリティやプライバシーを重視する士業事務所や、スタートアップ企業の拠点として有力な選択肢です。大手町エリアのビジネスチャンスを享受しつつ、ランニングコストを抑えたい企業に適しています。
募集終了
| 種別(用途) | 事務所 |
|---|---|
| 階数 | 4階 |
| 部屋番号 | 4F |
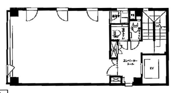
| 面積 | 17.05坪 |
| 契約形態・期間 | 普通借家 2年 |
| 空調方式 | 個別空調 |
| 床仕様 | OAフロア タイルカーペット |
| 天井高 | 要確認 |
※月額費用、坪単価ともに税別の価格です
KT-Ⅱビル 4階 は現在募集がありません。 (最終確認日: 2026年1月7日)
この物件の最新状況のご確認は、下記の問合せフォームをご利用ください。
この物件の最新状況のご確認は、下記の問合せフォームをご利用ください。
KT-Ⅱビル の情報
- 所在地
- 東京都千代田区内神田1-3-9
- 最寄り駅
- 大手町駅徒歩5分、神田駅徒歩7分、淡路町駅徒歩7分
- 竣工
- 2001年
- 規模
- 地上5階・地下1階
- 構造
- RC造(鉄筋コンクリート造)
- 耐震基準
- 新耐震基準適合
- セキュリティ
- 機械警備(24時間監視)
- エントランス
- 平日開放
- エレベーター総数
- 1基
- 駐車場設備
- 無
賃料相場
272件のデータ
KT-Ⅱビル の募集区画 (総募集面積 0.00坪)
現在募集はありません。
KT-Ⅱビル の内装イメージ
基準階は約26坪の1フロア1テナント仕様が基本です。エレベーターから直接、または短い廊下を経て専有部に入る動線で、隣接テナントの音や気配を気にせず業務に集中できます。貸室の形状は長方形に近く、デスクの島を作りやすいレイアウト効率の良い空間です。バルコニーが付いているフロアもあり、ちょっとしたリフレッシュスペースとして活用できます。
KT-Ⅱビル の募集終了区画
近くの物件紹介
千代田区のエリア
近くの駅
| 取扱態様 | 仲介 |
|---|---|
| 取扱会社 | 株式会社アドマイアー 東京都中央区日本橋3-2-3ユニバース第1ビル2F TEL. 03-5204-1031 宅地建物取引業免許 東京都知事(3)第94663号 マンション管理業免許 国土交通大臣(2)第034224号 賃貸住宅管理業免許 国土交通大臣(01)第005938号 |



































