東武ハイライン銀座2丁目 3階【301】 14.91坪(中央区、銀座、東銀座、銀座一丁目)
募集終了
| 種別(用途) | 事務所 |
|---|---|
| 階数 | 3階 |
| 部屋番号 | 301 |
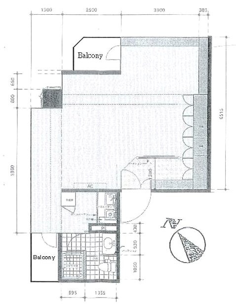
| 面積 | 14.91坪 |
| 契約形態・期間 | 定期借家 2年 |
| 空調方式 | 要確認 |
| 床仕様 | 要確認 |
| 天井高 | 要確認 |
※月額費用、坪単価ともに税別の価格です
東武ハイライン銀座2丁目 3階【301】 は現在募集がありません。
この物件の最新状況のご確認は、下記の問合せフォームをご利用ください。
この物件の最新状況のご確認は、下記の問合せフォームをご利用ください。
東武ハイライン銀座2丁目 の情報
- 所在地
- 東京都中央区銀座2-13-20
- 最寄り駅
- 東銀座駅徒歩3分、銀座一丁目駅徒歩7分、銀座駅徒歩10分
- 竣工
- 1983年
- 規模
- 地上8階
- 構造
- RC造(鉄筋コンクリート造)
- 耐震基準
- 新耐震基準適合
- エントランス
- 平日開放
- エレベーター総数
- 1基
- 駐車場設備
- 要確認
東武ハイライン銀座2丁目 の募集区画 (総募集面積 0.00坪)
現在募集はありません。
東武ハイライン銀座2丁目 の募集終了区画
| 図面 | 階数 | 坪数 | 月額費用 | 坪単価 | 入居可能日 | |
|---|---|---|---|---|---|---|
準備中 | 1階 | 6.35坪 | お問い合わせください | 募集終了 | 検討リスト | |
準備中 | 1階 | 36.00坪 | お問い合わせください | 募集終了 | 検討リスト | |
![]() | 2階 | 8.43坪 | お問い合わせください | 募集終了 | 検討リスト | |
![]() | 3階 | 14.91坪 | お問い合わせください | 募集終了 | 検討リスト | |
準備中 | 3階 | 8.87坪 | お問い合わせください | 募集終了 | 検討リスト | |
![]() | 4階 | 7.68坪 | お問い合わせください | 募集終了 | 検討リスト | |
準備中 | 4階 | 15.73坪 | お問い合わせください | 募集終了 | 検討リスト | |
準備中 | 4階 | 14.58坪 | お問い合わせください | 募集終了 | 検討リスト | |
![]() | 5階 | 7.00坪 | お問い合わせください | 募集終了 | 検討リスト | |
準備中 | 6階 | 38.66坪 | お問い合わせください | 募集終了 | 検討リスト | |
![]() | 7階 | 8.43坪 | お問い合わせください | 募集終了 | 検討リスト |
近くの物件紹介
中央区のエリア
近くの駅
| 取扱態様 | 仲介 |
|---|---|
| 取扱会社 | 株式会社アドマイアー 東京都中央区日本橋3-2-3ユニバース第1ビル2F TEL. 03-5204-1031 宅地建物取引業免許 東京都知事(3)第94663号 マンション管理業免許 国土交通大臣(2)第034224号 賃貸住宅管理業免許 国土交通大臣(01)第005938号 |








































