あいおいニッセイ同和損保浅草ビル 3階 35.80坪(台東区、雷門、浅草、田原町)
賃料 | - 最新の募集条件を問い合わせる |
---|---|
所在地 | 東京都台東区雷門 |
入居可能日 | - |
最寄り駅 | 浅草駅徒歩5分、田原町駅徒歩8分 |

募集終了
種別(用途) | 事務所 |
---|---|
階数 | 3階 |
部屋番号 | 3F |
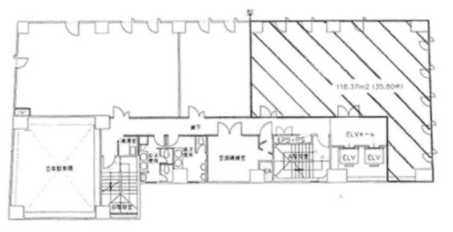
面積 | 35.80坪 |
契約形態・期間 | 普通借家 |
空調方式 | 個別空調 |
床仕様 | タイルカーペット |
天井高 | 2,550mm |
※月額費用、坪単価ともに税別の価格です
あいおいニッセイ同和損保浅草ビル 3階 は現在募集がありません。 (最終確認日: 2024年10月2日)
この物件の最新状況のご確認は、下記の問合せフォームをご利用ください。
この物件の最新状況のご確認は、下記の問合せフォームをご利用ください。
あいおいニッセイ同和損保浅草ビル の情報
- 所在地
- 東京都台東区雷門2-4-8
- 最寄り駅
- 浅草駅徒歩5分、田原町駅徒歩8分、蔵前駅徒歩9分
- 竣工
- 1988年
- 規模
- 地上9階・地下1階
- 構造
- SRC造(鉄骨鉄筋コンクリート造)
- 耐震基準
- 新耐震基準適合
- エントランス
- 平日開放
- エレベーター総数
- 2基
- 駐車場設備
- 要確認
あいおいニッセイ同和損保浅草ビル の募集区画 (総募集面積 0.00坪)
現在募集はありません。
あいおいニッセイ同和損保浅草ビル の募集終了区画
近くの物件紹介
台東区のエリア
近くの駅
取扱態様 | 仲介 |
---|---|
取扱会社 | 株式会社アドマイアー 東京都中央区日本橋3-2-3ユニバース第1ビル2F TEL. 03-5204-1031 宅地建物取引業免許 東京都知事(3)第94663号 マンション管理業免許 国土交通大臣(2)第034224号 賃貸住宅管理業免許 国土交通大臣(01)第005938号 |