クロサワビル 3階 20.00坪(中央区、銀座、東銀座、有楽町)
賃料 | - 最新の募集条件を問い合わせる |
---|---|
所在地 | 東京都中央区銀座 |
入居可能日 | - |
最寄り駅 | 銀座駅徒歩2分、東銀座駅徒歩4分 |

募集終了
種別(用途) | 事務所 |
---|---|
階数 | 3階 |
部屋番号 | 3F |
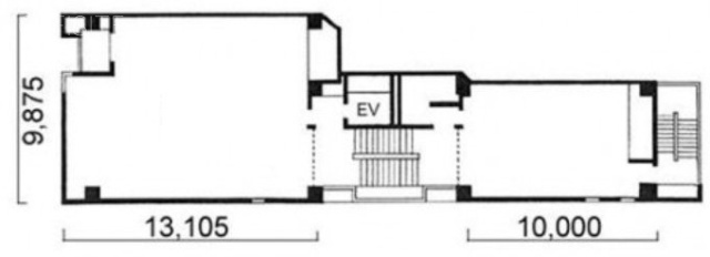
面積 | 20.00坪 |
契約形態・期間 | 普通借家 |
空調方式 | 要確認 |
床仕様 | 要確認 |
天井高 | 要確認 |
※月額費用、坪単価ともに税別の価格です
クロサワビル 3階 は現在募集がありません。
この物件の最新状況のご確認は、下記の問合せフォームをご利用ください。
この物件の最新状況のご確認は、下記の問合せフォームをご利用ください。
クロサワビル の情報
- 所在地
- 東京都中央区銀座6-9-2
- 最寄り駅
- 銀座駅徒歩2分、東銀座駅徒歩4分、有楽町駅徒歩9分
- 竣工
- 1980年
- 規模
- 地上8階・地下2階
- 構造
- SRC
- セキュリティ
- 機械警備
- エントランス
- 平日開放
- エレベーター総数
- 1基
- 駐車場設備
- 要確認
- 基準階坪数
- 64.00坪
クロサワビル の募集区画 (総募集面積 0.00坪)
現在募集はありません。
クロサワビル の募集終了区画
近くの物件紹介
中央区のエリア
近くの駅
取扱態様 | 仲介 |
---|---|
取扱会社 | 株式会社アドマイアー 東京都中央区日本橋3-2-3ユニバース第1ビル2F TEL. 03-5204-1031 宅地建物取引業免許 東京都知事(3)第94663号 マンション管理業免許 国土交通大臣(2)第034224号 賃貸住宅管理業免許 国土交通大臣(01)第005938号 |