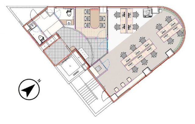
GLOWTHIA東日本橋 (旧 サンブライト東日本橋) 6階 26.73坪(中央区東日本橋・馬喰横山・馬喰町・浅草橋)
GLOWTHIA東日本橋(グロウシア東日本橋)は、東日本橋駅から徒歩1分という驚異的な近さを誇る、地上6階建てのハイグレード・スモールオフィスです。最大の魅力は、現代のワークスタイルを先取りした「フルセットアップ」仕様。2階、5階、6階の各区画には、洗練されたオフィス家具に加え、今や必須となった「テレブース(WEB会議用個室)」や「専用会議室」が既に設置されています。内装構築にかかる莫大なコストと時間を大幅に削減し、入居したその日から最高水準のワークプレイスを享受できます。1990年竣工ながら、グレーのタイル張りの外観は極めて清潔感があり、機械警備による安心のセキュリティも完備。トイレや水回りは共用部に配置されているため、専有部を最大限に執務スペースとして活用可能です。近隣にはドトールやコンビニが至近に揃い、周辺の活気ある飲食店街もランチタイムを彩ります。2026年のスピード感あるビジネス展開を支える、中央区内でも希少な「即戦力」オフィスです。
| 賃料 | 660,000円 中央区の平均坪単価: 16,898円(参考) |
|---|---|
| 所在地 | 東京都中央区東日本橋 |
| 入居可能日 | 即時 |
| 最寄り駅 | 東日本橋駅徒歩1分、馬喰横山駅徒歩3分 |
| 最終更新 | 2026年4月1日 |
募集中
| 種別(用途) | 事務所 |
|---|---|
| 階数 | 6階 |
| 部屋番号 | 6F |
| 面積 | 26.73坪 |
| 賃料 | 660,000円(坪単価24,691円) |
| 共益費 | 0円(坪単価0円) |
| 合計 | 660,000円(坪単価24,691円) |
| 敷金・保証金 | なし |
| 更新料 | なし |
| 償却 | なし |
| 礼金 | なし |
| 契約形態・期間 | 普通借家 3年 |
| 空調方式 | 要確認 |
| 床仕様 | 要確認 |
| 天井高 | 要確認 |
※月額費用、坪単価ともに税別の価格です
GLOWTHIA東日本橋 (旧 サンブライト東日本橋) の情報
- 所在地
- 東京都中央区東日本橋2-2-10
- 最寄り駅
- 東日本橋駅徒歩1分、馬喰横山駅徒歩3分、馬喰町駅徒歩4分
- 竣工
- 1989年
- 規模
- 地上6階・地下1階
- 構造
- RC造(鉄筋コンクリート造)
- 耐震基準
- 新耐震基準適合
- セキュリティ
- 機械警備(24時間監視)
- エントランス
- 平日開放
- エレベーター総数
- 1基
- 駐車場設備
- 無
- 設備
- トイレ男女別
賃料相場
67件のデータ
GLOWTHIA東日本橋 (旧 サンブライト東日本橋) の募集区画 (総募集面積 102.86坪)
| 図面 | 階数 | 坪数 | 月額費用 | 坪単価 | 入居可能日 | |
|---|---|---|---|---|---|---|
![]() | 1階 | 22.81坪 | 580,000円 | 25,427円 | 即時 | 検討リスト お問い合わせ |
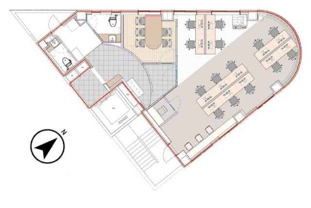
![]() | 2階 | 26.59坪 | 670,000円 | 25,197円 | 即時 | 検討リスト お問い合わせ |
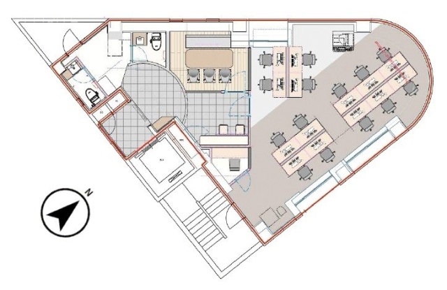
![]() | 5階 | 26.73坪 | 690,000円 | 25,814円 | 即時 | 検討リスト お問い合わせ |
![]() | 6階 | 26.73坪 | 660,000円 | 24,691円 | 即時 | 検討リスト お問い合わせ |
※月額費用、坪単価 ともに共益費込・税別の価格です
GLOWTHIA東日本橋 (旧 サンブライト東日本橋) の内装イメージ
2026年1月現在の募集区画は、床の質感やライティングにまでこだわった最新のオフィスデザイン。特に、設置済みの個室テレブースは防音性に配慮され、集中した作業やWEB会議に最適です。個別空調によりフロアごとの温度設定が可能で、共用部の男女別トイレや給湯スペースもモダンに更新されており、中小型ビルとは思えない快適な執務スペックを誇ります。





GLOWTHIA東日本橋 (旧 サンブライト東日本橋) の募集終了区画
近くの物件紹介
中央区のエリア
近くの駅
| 取扱態様 | 仲介 |
|---|---|
| 取扱会社 | 株式会社アドマイアー 東京都中央区日本橋3-2-3ユニバース第1ビル2F TEL. 03-5204-1031 宅地建物取引業免許 東京都知事(3)第94663号 マンション管理業免許 国土交通大臣(2)第034224号 賃貸住宅管理業免許 国土交通大臣(01)第005938号 |









































