タチバナ日比谷ビル(千代田区有楽町・日比谷・二重橋前) の賃貸オフィス情報

- 所在地
- 東京都千代田区有楽町1-2-15
- 最寄り駅
- 日比谷駅徒歩3分、有楽町駅徒歩7分、二重橋前駅徒歩13分
- 竣工
- 1991年
- 規模
- 地上10階・地下2階
- 構造
- S造(一部RC造)
- 耐震基準
- 新耐震基準適合
- セキュリティ
- 機械警備(24時間監視)
- エントランス
- 平日開放
- エレベーター総数
- 1基
- 駐車場設備
- 無
- 設備
- トイレ男女別
タチバナ日比谷ビル の物件特徴・おすすめポイント
■ワンフロア1テナントの独立性!他テナントを気にせず業務に集中できる環境
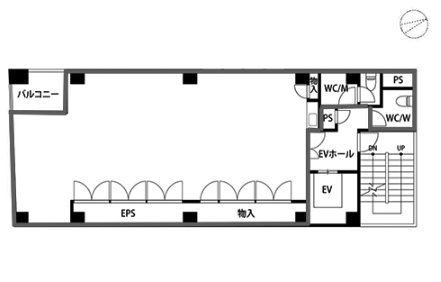
■室外の男女別トイレ&壁面収納により、20坪台とは思えない広々とした執務空間を実現
■オートロック完備でセキュリティ重視。女性スタッフが多い職場でも安心の仕様
■銀座・有楽町・新橋が徒歩圏。複数路線利用で営業効率と通勤利便性が抜群
タチバナ日比谷ビル の募集区画 (総募集面積 61.85坪)
| 図面 | 階数 | 坪数 | 月額費用 | 坪単価 | 入居可能日 | |
|---|---|---|---|---|---|---|
![]() | 1階 | 34.06坪 | 1,873,300円 | 55,000円 | 2026/3 | 検討リスト お問い合わせ |
![]() | 5階 | 27.79坪 | 853,636円 | 30,717円 | 2026/5 | 検討リスト お問い合わせ |
※月額費用、坪単価 ともに共益費込・税別の価格です
建物に関するよくある質問と回答
A1. 都営三田線・東京メトロ日比谷線・千代田線の「日比谷駅」から徒歩約3分という駅近物件です。また、丸ノ内線・銀座線の「銀座駅」から徒歩5分、JR「有楽町駅」からも徒歩7分と、計4駅が徒歩圏内。さらに新橋駅や内幸町駅も徒歩10分程度で、抜群の交通利便性を誇ります。
Q2. 建物のセキュリティや入館制限はどうなっていますか?
A2. エントランスにはオートロックシステムを導入しており、不審者の侵入を防ぐ高い防犯性を備えています。また、1フロア1テナント仕様のため、エレベーターを降りたフロアを独占でき、プライバシーとセキュリティを重視する企業に最適です。
Q3. 室内設備(空調・床・水回り)の仕様を教えてください。
A3. 空調は自由に設定可能な個別空調。床は配線に便利なOAフロア仕様で、光ファイバーにも対応済みです。特に男女別トイレと給湯室が室外の共用部に設置されているため、室内を隅々まで有効活用できるのが大きなメリットです。
Q4. 周辺の利便性や環境はどうですか?
A4. ビルの目前に帝国ホテル、至近に日比谷シャンテや東京宝塚劇場がある一等地です。周辺は高級店からカジュアルなチェーン店まで飲食店が非常に多く、ランチや接客に困ることはありません。銀行や郵便局も徒歩圏内に揃う、ビジネスの心臓部と言える環境です。
Q5. 物件の築年数と耐震基準について教えてください。
A5. 1991年竣工の建物であり、新耐震基準に適合しています。構造もしっかりしており、安心してご入居いただけるオフィスビルです。
地図
東京都千代田区有楽町1-2-15 地図をクリックして拡大できます
タチバナ日比谷ビル の外観イメージ
タチバナ日比谷ビルは、地上10階・地下2階建てのスリムで清潔感のあるオフィスビルです。帝国ホテルや日比谷シャンテといった日本を代表するランドマークが立ち並ぶエリアにおいて、シンプルながらもしっかりとした存在感を放ちます。1991年竣工の落ち着いた佇まいは、来訪者に対しても信頼感を与えます。ビル入り口は洗練されたデザインで、オートロックによる安心感と高級感を兼ね備えたエントランスがワーカーを出迎えます。










タチバナ日比谷ビル の周辺イメージ
都内屈指のプレミアムエリア、有楽町1丁目に立地。目前の「帝国ホテル」を筆頭に、最新の「東京ミッドタウン日比谷」や「日比谷シャンテ」が日常使いできる贅沢な環境です。ランチタイムには多種多様な飲食店が選び放題で、夜の接待や会食にも事欠きません。徒歩圏内の「日比谷公園」は、忙しい業務の合間のリフレッシュに最適。金融・文化・商業が極めて高いレベルで融合した、従業員のモチベーションを最大化させるロケーションです。
199文字(基準:200文字以内)✓


タチバナ日比谷ビル のアクセス・ロケーション
■ 駅徒歩分数
東京メトロ日比谷線・千代田線・都営三田線 「日比谷駅」 徒歩3分
東京メトロ丸ノ内線・銀座線 「銀座駅」 徒歩5分
JR山手線・京浜東北線 「有楽町駅」 徒歩7分
JR・東京メトロ・都営各線 「新橋駅」 徒歩10分
■ 主要エリアへのアクセス
日比谷駅から大手町駅まで約2分、銀座駅から東京駅まで約2分という、まさに東京の心臓部。新宿、渋谷、品川といった主要ターミナルへも20分圏内で移動可能です。複数駅・複数路線を自在に使い分けることで、都内全域をターゲットにしたスピーディなビジネス展開が可能となります。
■ エリア特性
日比谷通りとJR線路の間に位置するこのエリアは、格式高いホテルや劇場、最新の商業施設が共存する特別なゾーンです。官庁街(霞が関)や金融街(丸の内・大手町)にも隣接しており、あらゆる業種の企業にとって戦略的な拠点となるだけでなく、この住所自体が企業の確かなステータスを証明します。
タチバナ日比谷ビル の募集終了区画
| 図面 | 階数 | 坪数 | 月額費用 | 坪単価 | 入居可能日 | |
|---|---|---|---|---|---|---|
![]() | B1階 | 27.89坪 | 賃料を確認する (無料・1分) | 募集終了 | 検討リスト | |
![]() | 1階 | 27.79坪 | 賃料を確認する (無料・1分) | 募集終了 | 検討リスト | |
![]() | 1階 | 36.80坪 | 賃料を確認する (無料・1分) | 募集終了 | 検討リスト | |
![]() | 3階 | 27.65坪 | 賃料を確認する (無料・1分) | 募集終了 | 検討リスト | |
![]() | 4階 | 27.65坪 | 賃料を確認する (無料・1分) | 募集終了 | 検討リスト | |
![]() | 6階 | 27.65坪 | 賃料を確認する (無料・1分) | 募集終了 | 検討リスト | |
![]() | 7階 | 27.79坪 | 賃料を確認する (無料・1分) | 募集終了 | 検討リスト | |
![]() | 8階 | 27.65坪 | 賃料を確認する (無料・1分) | 募集終了 | 検討リスト | |
![]() | 9階 | 24.32坪 | 賃料を確認する (無料・1分) | 募集終了 | 検討リスト | |
![]() | 10階 | 21.66坪 | 賃料を確認する (無料・1分) | 募集終了 | 検討リスト |
タチバナ日比谷ビル が選ばれる理由
■ 帝国ホテル目前という「比類なきステータス」
日比谷・有楽町エリアの中でも、帝国ホテルを目前にする立地は極めて希少です。来客への説明が容易なだけでなく、企業のブランドイメージを強固に押し上げます。少数精鋭ながら、高い信頼性を対外的にアピールしたい企業に最適です。
■ 20坪台で実現する「究極の占有感と効率性」
1フロア1テナント仕様により、エレベーターホールからトイレまで自社専用のような感覚で利用できます。室外に水回りを逃がし、室内に壁面収納を設けた徹底的な効率化設計は、実際の坪数以上のゆとりと機能性を提供します。
■ 鉄壁のセキュリティと快適なスペック
オートロック完備のエントランスに加え、OAフロアや個別空調、男女別トイレといった現代オフィスの必須要件をすべてクリア。日比谷駅徒歩3分の利便性と、24時間利用可能な自由度の高さが、企業の成長スピードを力強くバックアップします。
近くの物件紹介
千代田区のエリア
近くの駅
| 取扱態様 | 仲介 |
|---|---|
| 取扱会社 | 株式会社アドマイアー 東京都中央区日本橋3-2-3ユニバース第1ビル2F TEL. 03-5204-1031 宅地建物取引業免許 東京都知事(3)第94663号 マンション管理業免許 国土交通大臣(2)第034224号 賃貸住宅管理業免許 国土交通大臣(01)第005938号 |

































