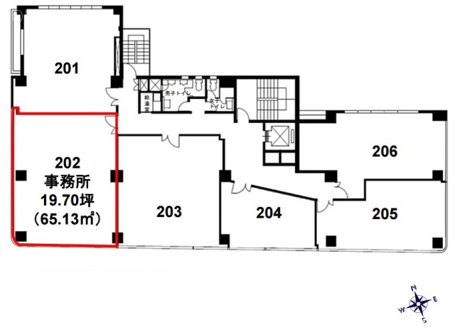
神田オーシャンビル 2階【202】 19.70坪(千代田区、内神田、神田、淡路町)
| 賃料 | - 最新の募集条件を問い合わせる |
|---|---|
| 所在地 | 東京都千代田区内神田 |
| 入居可能日 | 応相談 |
| 最寄り駅 | 神田駅徒歩5分、淡路町駅徒歩5分 |
募集終了
| 種別(用途) | 事務所 |
|---|---|
| 階数 | 2階 |
| 部屋番号 | 202 |
| 面積 | 19.70坪 |
| 契約形態・期間 | 普通借家 2年 |
| 空調方式 | 個別空調 |
| 床仕様 | タイルカーペット |
| 天井高 | 2,500mm |
| フロア特徴 | トイレ男女別、 基準階100坪以上の分割区画 |
※月額費用、坪単価ともに税別の価格です
神田オーシャンビル 2階【202】 は現在募集がありません。
この物件の最新状況のご確認は、下記の問合せフォームをご利用ください。
この物件の最新状況のご確認は、下記の問合せフォームをご利用ください。
神田オーシャンビル の情報
- 所在地
- 東京都千代田区内神田1-15-2
- 最寄り駅
- 神田駅徒歩5分、淡路町駅徒歩5分、小川町駅徒歩5分
- 竣工
- 1990年
- 規模
- 地上6階・地下1階
- 構造
- SRC造(鉄骨鉄筋コンクリート造)
- 耐震基準
- 新耐震基準適合
- セキュリティ
- 機械警備(24時間監視)
- エントランス
- 平日開放(7:00-20:00)
- エレベーター総数
- 1基
- 駐車場設備
- 要確認
賃料相場
264件のデータ
神田オーシャンビル の募集区画 (総募集面積 0.00坪)
現在募集はありません。
神田オーシャンビル の内装イメージ
神田オーシャンビル(千代田区内神田)は、エレベーターを降りると正面と左手に貸室内に通じるドアがあります。
ドアが2つあることはレイアウト効率をアップさせる要因です。
室内に給湯室と男女別値俺が設置されています。
レイアウトを検討する際に室内にある何本かの柱をうまく活用したいですね。
窓面が3面あるため明るい室内です。
神田オーシャンビル の募集終了区画
| 図面 | 階数 | 坪数 | 月額費用 | 坪単価 | 入居可能日 | |
|---|---|---|---|---|---|---|
![]() | B1階 | 92.27坪 | お問い合わせください | 募集終了 | 検討リスト | |
![]() | 1階 | 52.00坪 | お問い合わせください | 募集終了 | 検討リスト | |
![]() | 1階 | 23.66坪 | お問い合わせください | 募集終了 | 検討リスト | |
![]() | 2階 | 14.97坪 | お問い合わせください | 募集終了 | 検討リスト | |
![]() | 2階 | 19.70坪 | お問い合わせください | 募集終了 | 検討リスト | |
![]() | 2階 | 16.66坪 | お問い合わせください | 募集終了 | 検討リスト | |
![]() | 2階 | 11.72坪 | お問い合わせください | 募集終了 | 検討リスト | |
![]() | 2階 | 14.37坪 | お問い合わせください | 募集終了 | 検討リスト | |
![]() | 2階 | 100.82坪 | お問い合わせください | 募集終了 | 検討リスト | |
![]() | 3階 | 10.13坪 | お問い合わせください | 募集終了 | 検討リスト | |
![]() | 3階 | 14.13坪 | お問い合わせください | 募集終了 | 検討リスト | |
![]() | 3階 | 13.57坪 | お問い合わせください | 募集終了 | 検討リスト | |
![]() | 3階 | 6.45坪 | お問い合わせください | 募集終了 | 検討リスト | |
![]() | 3階 | 13.51坪 | お問い合わせください | 募集終了 | 検討リスト | |
![]() | 4階 | 4.93坪 | お問い合わせください | 募集終了 | 検討リスト | |
![]() | 4階 | 7.35坪 | お問い合わせください | 募集終了 | 検討リスト | |
![]() | 4階 | 9.52坪 | お問い合わせください | 募集終了 | 検討リスト | |
![]() | 4階 | 78.72坪 | お問い合わせください | 募集終了 | 検討リスト | |
![]() | 5階 | 43.93坪 | お問い合わせください | 募集終了 | 検討リスト | |
![]() | 6階 | 21.11坪 | お問い合わせください | 募集終了 | 検討リスト |
近くの物件紹介
千代田区のエリア
近くの駅
| 取扱態様 | 仲介 |
|---|---|
| 取扱会社 | 株式会社アドマイアー 東京都中央区日本橋3-2-3ユニバース第1ビル2F TEL. 03-5204-1031 宅地建物取引業免許 東京都知事(3)第94663号 マンション管理業免許 国土交通大臣(2)第034224号 賃貸住宅管理業免許 国土交通大臣(01)第005938号 |














































