Biz Feel Ichigaya(旧 ツボヤビル)(千代田区、九段南、市ケ谷、市ヶ谷) の賃貸オフィス情報

- 所在地
- 東京都千代田区九段南4-7-19
- 最寄り駅
- 市ケ谷駅徒歩4分、市ヶ谷駅徒歩1分、半蔵門駅徒歩9分
- 竣工
- 1985年
- リニューアル済み
- エントランス・共用部リニューアル(2026年2月完了予定)
- 規模
- 地上6階
- 構造
- RC造(鉄筋コンクリート造)
- 耐震基準
- 新耐震基準適合
- セキュリティ
- 機械警備(24時間監視)
- エントランス
- 平日開放
- エレベーター総数
- 1基
- 駐車場設備
- 無
- 設備
- 24時間(要ICカード)、 リニューアル済み、 トイレ男女別
Biz Feel Ichigaya(旧 ツボヤビル) の物件特徴・おすすめポイント
■什器付きフルセットアップ仕様で即日業務開始が可能です
■敷金なし・原状回復義務なしで移転時の初期コストを極小化
■2026年2月にエントランス等共用部も刷新され清潔感抜群
■男女別トイレやテレカンブースなど現代のニーズを完全網羅
Biz Feel Ichigaya(旧 ツボヤビル) の募集区画 (総募集面積 41.66坪)
| 図面 | 階数 | 坪数 | 月額費用 | 坪単価 | 入居可能日 | |
|---|---|---|---|---|---|---|
![]() | 1階 | 9.29坪 | 260,120円 | 28,000円 | 相談 | 検討リスト お問い合わせ |
![]() | 2階 | 32.37坪 | 971,100円 | 30,000円 | 2026/5/上 | 検討リスト お問い合わせ |
※月額費用、坪単価 ともに共益費込・税別の価格です
建物に関するよくある質問と回答
A1. 最寄駅は都営新宿線および東京メトロ有楽町線・南北線の市ヶ谷駅です。A3出口から地上へ出ると、わずか徒歩1分という至近距離に位置しています。JR市ヶ谷駅からも徒歩4分でアクセス可能なため、JRと地下鉄の両方を利用できる非常に便利な交通環境が整っています。
Q2. Biz Feel Ichigayaの耐震性能・構造はどうなっていますか?
A2. 1985年11月竣工の建物ですが、新耐震基準に適合した鉄筋コンクリート造の6階建てビルです。構造的な安全性が確認されていることに加え、2026年にはエントランスや共用部のリニューアル工事も完了予定であり、安心感と新しさを兼ね備えています。
Q3. Biz Feel Ichigayaの室内スペック(天井高・床仕様・空調など)について教えてください。
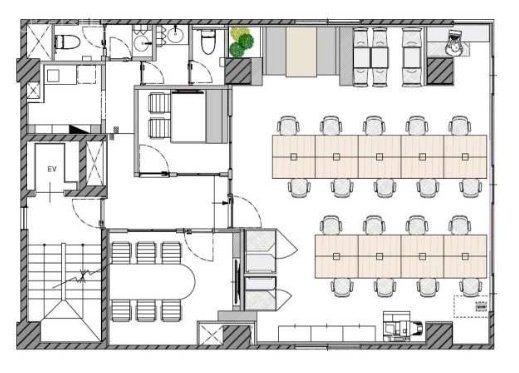
A3. 室内はOAフロア仕様となっており、配線を露出させず整然としたオフィス環境を構築できます。空調はフロアごとに制御可能な個別空調を採用。2階区画は会議室やラウンジ、什器まで設置されるフルセットアップ工事が2026年4月に完了する予定です。
Q4. Biz Feel Ichigayaの契約条件における初期コストのメリットは何ですか?
A4. 本物件は敷金が原則不要で、かつ原状回復義務も免除される契約形態を採用しています(※通常使用の範囲外を除く)。これにより、一般的に高額となるオフィス移転時の預託金や退去時の工事費用を大幅に削減できるため、資金を本業へ有効活用することが可能です。
Q5. Biz Feel Ichigayaには会議室や休憩スペースはありますか?
A5. 当ビル内には専用の会議室2室とテレカンブース、さらにラウンジスペースが設けられる予定です。コンパクトながらも無駄のないレイアウトにより、執務以外のミーティングやウェブ会議、リフレッシュといった多様なシーンに対応できる空間構成となっています。
地図
東京都千代田区九段南4-7-19 地図をクリックして拡大できます
Biz Feel Ichigaya(旧 ツボヤビル) の外観イメージ
地上6階建ての重厚感ある構造に、2026年2月完了予定のリニューアルが加わることで、現代的な意匠へと生まれ変わります。エントランスから共用部に至るまで一新されるデザインは、九段南エリアの落ち着いた街並みの中で高い視認性と清潔感を放ちます。来客を迎える際の第一印象を重視した洗練された佇まいは、企業の信頼性を高めるだけでなく、働くスタッフのモチベーション向上にも寄与するモダンな雰囲気を醸成しています。








Biz Feel Ichigaya(旧 ツボヤビル) の周辺イメージ
市ヶ谷駅至近という環境により、周辺には「三菱UFJ銀行 市ケ谷支店」や「みずほ銀行 市ヶ谷支店」などの金融機関が充実しています。また、「セブン-イレブン 千代田九段南4丁目店」がすぐ近くにあるほか、飲食店も和洋中幅広く揃っており、ランチや会食に困ることはありません。外濠公園の緑も近く、都心でありながらリフレッシュできるスポットにも恵まれた、ビジネスと憩いが調和する利便性の高いロケーションです。

Biz Feel Ichigaya(旧 ツボヤビル) のアクセス・ロケーション
■ 駅徒歩分数
・都営新宿線 「市ヶ谷駅」 A3出口より徒歩1分 ・東京メトロ有楽町線・南北線 「市ヶ谷駅」 徒歩1分 ・JR中央・総武線 「市ヶ谷駅」 徒歩4分 ・東京メトロ半蔵門線 「半蔵門駅」 5番出口より徒歩9分
■ 主要エリアへのアクセス
市ヶ谷駅は地下鉄とJRの結節点であり、新宿駅まで約5分、永田町駅まで約2分、飯田橋駅まで約2分と、都内の主要ビジネスエリアへ極めて短時間でアクセス可能です。取引先への移動や従業員の通勤における時間的ロスを最小限に抑えることができます。
■ エリア特性
九段南から市ヶ谷周辺は、靖国神社や外堀に隣接する文教・ビジネスエリアとして知られ、非常に治安が良く落ち着いた環境です。士業事務所や大手企業の本社も多く、周辺には品格のある街並みが広がっており、落ち着いて業務に取り組める特性を持っています。
Biz Feel Ichigaya(旧 ツボヤビル) の募集終了区画
| 図面 | 階数 | 坪数 | 月額費用 | 坪単価 | 入居可能日 | |
|---|---|---|---|---|---|---|
![]() | 3階 | 32.37坪 | お問い合わせください | 募集終了 | 検討リスト | |
![]() | 4階 | 18.14坪 | お問い合わせください | 募集終了 | 検討リスト | |
![]() | 4階 | 12.50坪 | お問い合わせください | 募集終了 | 検討リスト | |
![]() | 4階 | 32.37坪 | お問い合わせください | 募集終了 | 検討リスト | |
![]() | 6階 | 39.92坪 | お問い合わせください | 募集終了 | 検討リスト |
Biz Feel Ichigaya(旧 ツボヤビル) が選ばれる理由
■ 移転コストを劇的に抑えるファイナンシャルメリット
敷金・保証金が不要で原状回復義務もない独自のプランは、成長企業のキャッシュフローを最大化します。本来移転に充てるべき資金を設備投資や人材採用に回せるため、経営効率を飛躍的に高めることが可能です。
■ プロが設計した「出社したくなる」セットアップオフィス
会議室2室やテレカンブース、什器まで完備された内装は、最新のワークスタイルに最適化されています。遊び心のあるデザインと機能的なラウンジは、社内コミュニケーションを活性化し、採用におけるブランディングにも大きく貢献します。
■ 採用力に直結する「駅徒歩1分」の最強ロケーション
市ヶ谷駅徒歩1分という圧倒的な近さは、人材募集において他社との明確な差別化要因となります。複数路線利用可能な利便性は、スタッフの通勤負担を大幅に軽減し、長期的な定着率の向上と優秀な人材の獲得をサポートします。
近くの物件紹介
千代田区のエリア
近くの駅
| 取扱態様 | 仲介 |
|---|---|
| 取扱会社 | 株式会社アドマイアー 東京都中央区日本橋3-2-3ユニバース第1ビル2F TEL. 03-5204-1031 宅地建物取引業免許 東京都知事(3)第94663号 マンション管理業免許 国土交通大臣(2)第034224号 賃貸住宅管理業免許 国土交通大臣(01)第005938号 |































