宮益ONビル 5階 67.34坪(渋谷区渋谷)
| 賃料 | - 渋谷区の平均坪単価: 29,856円(参考) 賃料を確認する(無料・1分) |
|---|---|
| 所在地 | 東京都渋谷区渋谷 |
| 入居可能日 | 応相談 |
| 最寄り駅 | 渋谷駅徒歩4分 |
募集終了
| 種別(用途) | 事務所 |
|---|---|
| 階数 | 5階 |
| 部屋番号 | 5F |
| 面積 | 67.34坪 |
| 契約形態・期間 | 普通借家 2年 |
| 空調方式 | 個別空調 |
| 床仕様 | OAフロア タイルカーペット |
| 天井高 | 2,450mm |
| フロア特徴 | 基準階100坪以上の分割区画、 トイレ男女別 |
※月額費用、坪単価ともに税別の価格です
宮益ONビル 5階 は現在募集がありません。
この物件の最新状況のご確認は、下記の問合せフォームをご利用ください。
この物件の最新状況のご確認は、下記の問合せフォームをご利用ください。
宮益ONビル の情報
- 所在地
- 東京都渋谷区渋谷1-15-8
- 最寄り駅
- 渋谷駅徒歩3分
- 竣工
- 1992年
- 規模
- 地上6階
- 構造
- SRC造(鉄骨鉄筋コンクリート造)
- 耐震基準
- 新耐震基準適合
- セキュリティ
- 機械警備(24時間監視)
- エントランス
- 平日開放
- エレベーター総数
- 2基
- 駐車場設備
- 要確認
賃料相場
170件のデータ
宮益ONビル の募集区画 (総募集面積 0.00坪)
現在募集はありません。
宮益ONビル の内装イメージ
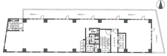
宮益ONビル(渋谷区渋谷)は、ワンフロアが100坪近い大型ビルで、横幅の長い長方形をしています。広いバルコニーが特徴的で、空気の入れ替えやリフレッシュの際にも利用できます。男女別トイレや給湯スペースなどの水回り、OAフロアや個別空調など、設備面も充実しています。
宮益ONビル の募集終了区画
近くの物件紹介
渋谷区のエリア
近くの駅
| 取扱態様 | 仲介 |
|---|---|
| 取扱会社 | 株式会社アドマイアー 東京都中央区日本橋3-2-3ユニバース第1ビル2F TEL. 03-5204-1031 宅地建物取引業免許 東京都知事(3)第94663号 マンション管理業免許 国土交通大臣(2)第034224号 賃貸住宅管理業免許 国土交通大臣(01)第005938号 |





































