渋谷マークシティ 19階【東】 403.07坪(渋谷区、道玄坂、渋谷、神泉)
| 賃料 | - 最新の募集条件を問い合わせる |
|---|---|
| 所在地 | 東京都渋谷区道玄坂 |
| 入居可能日 | - |
| 最寄り駅 | 渋谷駅徒歩1分、神泉駅徒歩8分 |
募集終了
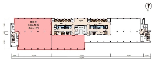
| 種別(用途) | 事務所 |
|---|---|
| 階数 | 19階 |
| 部屋番号 | 東 |
| 面積 | 403.07坪 |
| 契約形態・期間 | 定期借家 3年 |
| 空調方式 | 個別空調 |
| 床仕様 | OAフロア タイルカーペット |
| 天井高 | 2,650mm |
| フロア特徴 | トイレ男女別、 基準階100坪以上の分割区画 |
※月額費用、坪単価ともに税別の価格です
渋谷マークシティ 19階【東】 は現在募集がありません。 (最終確認日: 2025年7月10日)
この物件の最新状況のご確認は、下記の問合せフォームをご利用ください。
この物件の最新状況のご確認は、下記の問合せフォームをご利用ください。
渋谷マークシティ の情報
- 所在地
- 東京都渋谷区道玄坂1-12-1
- 最寄り駅
- 渋谷駅徒歩1分、神泉駅徒歩8分、原宿駅徒歩19分
- 竣工
- 2000年
- 規模
- 地上23階・地下1階
- 構造
- SRC造(鉄骨鉄筋コンクリート造)
- 耐震基準
- 新耐震基準適合
- セキュリティ
- 機械警備・有人管理(24時間体制)
- エントランス
- 平日開放
- エレベーター総数
- 12基(人荷用エレベーター2台)
- 駐車場設備
- 要確認
- 設備
- 非接触ICカード
渋谷マークシティ の募集区画 (総募集面積 0.00坪)
現在募集はありません。
渋谷マークシティ の内装イメージ
ビル(渋谷区道玄坂) の貸室内は、オフィスフロアは基準階面積2,353.95㎡(約712坪)の広々空間で、天井高2.65m・床荷重500kg/㎡の高機能仕様。機械警備システムに加え、男女別トイレ・OAフロア(配線スペース70mm)・個別空調制御を完備。12基のエレベーターと24時間入退館可能な管理体制が業務効率を向上させます。
渋谷マークシティ の募集終了区画
| 図面 | 階数 | 坪数 | 月額費用 | 坪単価 | 入居可能日 | |
|---|---|---|---|---|---|---|
![]() | 6階 | 78.50坪 | - | - | 募集終了 | 検討リスト |
![]() | 11階 | 159.72坪 | - | - | 募集終了 | 検討リスト |
![]() | 11階 | 21.36坪 | - | - | 募集終了 | 検討リスト |
![]() | 11階 | 78.50坪 | - | - | 募集終了 | 検討リスト |
![]() | 11階 | 122.32坪 | - | - | 募集終了 | 検討リスト |
![]() | 11階 | 21.36坪 | - | - | 募集終了 | 検討リスト |
![]() | 12階 | 712.06坪 | - | - | 募集終了 | 検討リスト |
![]() | 13階 | 402.08坪 | - | - | 募集終了 | 検討リスト |
![]() | 13階 | 127.82坪 | - | - | 募集終了 | 検討リスト |
![]() | 13階 | 152.06坪 | - | - | 募集終了 | 検討リスト |
![]() | 13階 | 712.06坪 | - | - | 募集終了 | 検討リスト |
![]() | 13階 | 127.82坪 | - | - | 募集終了 | 検討リスト |
![]() | 13階 | 152.06坪 | - | - | 募集終了 | 検討リスト |
![]() | 14階 | 127.47坪 | - | - | 募集終了 | 検討リスト |
![]() | 14階 | 712.06坪 | - | - | 募集終了 | 検討リスト |
![]() | 15階 | 78.50坪 | - | - | 募集終了 | 検討リスト |
![]() | 15階 | 231.47坪 | - | - | 募集終了 | 検討リスト |
![]() | 15階 | 480.59坪 | - | - | 募集終了 | 検討リスト |
![]() | 15階 | 712.06坪 | - | - | 募集終了 | 検討リスト |
![]() | 16階 | 279.89坪 | - | - | 募集終了 | 検討リスト |
![]() | 16階 | 231.47坪 | - | - | 募集終了 | 検討リスト |
![]() | 16階 | 711.00坪 | - | - | 募集終了 | 検討リスト |
![]() | 17階 | 239.51坪 | - | - | 募集終了 | 検討リスト |
![]() | 17階 | 123.18坪 | - | - | 募集終了 | 検討リスト |
![]() | 17階 | 642.58坪 | - | - | 募集終了 | 検討リスト |
![]() | 17階 | 127.82坪 | - | - | 募集終了 | 検討リスト |
![]() | 18階 | 47.51坪 | - | - | 募集終了 | 検討リスト |
![]() | 18階 | 642.00坪 | - | - | 募集終了 | 検討リスト |
![]() | 18階 | 362.69坪 | - | - | 募集終了 | 検討リスト |
![]() | 18階 | 123.18坪 | - | - | 募集終了 | 検討リスト |
![]() | 19階 | 635.12坪 | - | - | 募集終了 | 検討リスト |
![]() | 19階 | 403.07坪 | - | - | 募集終了 | 検討リスト |
![]() | 20階 | 525.00坪 | - | - | 募集終了 | 検討リスト |
![]() | 20階 | 133.52坪 | - | - | 募集終了 | 検討リスト |
![]() | 20階 | 279.89坪 | - | - | 募集終了 | 検討リスト |
![]() | 20階 | 112.34坪 | - | - | 募集終了 | 検討リスト |
![]() | 20階 | 392.23坪 | - | - | 募集終了 | 検討リスト |
![]() | 21階 | 525.00坪 | - | - | 募集終了 | 検討リスト |
![]() | 22階 | 525.00坪 | - | - | 募集終了 | 検討リスト |
![]() | 23階 | 133.52坪 | - | - | 募集終了 | 検討リスト |
![]() | 23階 | 374.94坪 | - | - | 募集終了 | 検討リスト |
近くの物件紹介
渋谷区のエリア
近くの駅
| 取扱態様 | 仲介 |
|---|---|
| 取扱会社 | 株式会社アドマイアー 東京都中央区日本橋3-2-3ユニバース第1ビル2F TEL. 03-5204-1031 宅地建物取引業免許 東京都知事(3)第94663号 マンション管理業免許 国土交通大臣(2)第034224号 賃貸住宅管理業免許 国土交通大臣(01)第005938号 |











































































