センター北駅、即入居可能の賃貸オフィス・貸事務所情報
検索結果 11 件
並び替え
エキニワ北山田(横浜市都筑区、北山田、センター北)
- 所在地
- 神奈川県横浜市都筑区北山田1-9-3
- 最寄り駅
- 北山田駅徒歩1分、センター北駅徒歩26分
- 竣工
- 2008年
- 規模
- 地上10階・地下2階
- 耐震基準
- 新耐震基準適合
- セキュリティ
- 機械警備(24時間監視)
- 駐車場設備
- 有
横浜市都筑区、港北ニュータウンエリア。「北山田」駅の改札を出てすぐ、駅直結のロケーションにあるのが「EKINIWA KITAYAMATA」です。
2008年竣工。外観はガラスとタイルを組み合わせたモダンな意匠で、駅前ロータリーに面しているため、初めての来訪でも迷いにくい印象です。
低層部にはコンビニや医療モールが入居しており、足元で生活利便機能が完結するのは、実際に働く従業員の方にとってメリットが大きいポイントでしょう。 都心へのアクセスも確保しつつ、落ち着いた環境で業務を行いたい。そんなニーズに対し、有力な選択肢となる物件です。
2008年竣工。外観はガラスとタイルを組み合わせたモダンな意匠で、駅前ロータリーに面しているため、初めての来訪でも迷いにくい印象です。
低層部にはコンビニや医療モールが入居しており、足元で生活利便機能が完結するのは、実際に働く従業員の方にとってメリットが大きいポイントでしょう。 都心へのアクセスも確保しつつ、落ち着いた環境で業務を行いたい。そんなニーズに対し、有力な選択肢となる物件です。
エキニワ北山田 の募集区画 (総募集面積 46.38坪)
※月額費用、坪単価 ともに共益費込・税別の価格です
センター南ビル(横浜市都筑区、茅ケ崎中央、センター南、センター北)
- 所在地
- 神奈川県横浜市都筑区茅ケ崎中央3-1
- 最寄り駅
- センター南駅徒歩1分、センター北駅徒歩16分、都筑ふれあいの丘駅徒歩22分
- 竣工
- 1998年
- 規模
- 地上4階・地下3階
- 耐震基準
- 新耐震基準適合
- セキュリティ
- 機械警備(24時間監視)
- 駐車場設備
- 要確認
センター南ビル の募集区画 (総募集面積 346.28坪)
| 図面 | 階数 | 坪数 | 月額費用 | 坪単価 | 入居可能日 | |
|---|---|---|---|---|---|---|
![]() | B1階 | 180.27坪 | お問い合わせください | 即時 | 検討リスト お問い合わせ | |
![]() | B1階 | 153.40坪 | お問い合わせください | 即時 | 検討リスト お問い合わせ | |
![]() | B2階 | 12.61坪 | お問い合わせください | 即時 | 検討リスト お問い合わせ |
※月額費用、坪単価 ともに共益費込・税別の価格です
プレミアヨコハマ(横浜市都筑区、中川中央、センター北、センター南)
- 所在地
- 神奈川県横浜市都筑区中川中央1-30-1
- 最寄り駅
- センター北駅徒歩1分、センター南駅徒歩16分
- 竣工
- 2013年
- 規模
- 地上7階・地下1階
- 耐震基準
- 新耐震基準適合
- セキュリティ
- 機械警備・有人管理(24時間体制)
- 駐車場設備
- 有(235台(機械式72台、自走式163台))
- 設備
- 複合施設
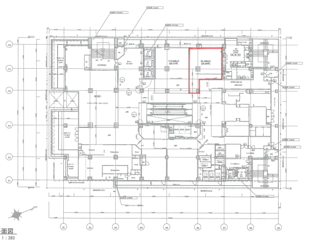
プレミアヨコハマは、横浜市営地下鉄センター北駅近接の神奈川県横浜市都筑区中川中央に位置する地上7階建ての複合施設です。大規模リニューアルにより、オフィス・シェアオフィス・商業施設が融合した新しい形態へ生まれ変わりました。リニューアル後はオフィステナント様の入居により一日平均450名程度の館内人口増加を想定し、集客力を高めています。駐車場235台(機械式72台、自走式163台、24時間営業)完備、グランピングレストラン・イベントホール・美容系サービス・飲食店など充実した施設構成で、利便性の高い環境を整えています。
プレミアヨコハマ の募集区画 (総募集面積 99.24坪)
※月額費用、坪単価 ともに共益費込・税別の価格です
GRC横浜サイエンスキューブ(横浜市都筑区、中川中央、センター北)
- 所在地
- 神奈川県横浜市都筑区中川中央1-1-5
- 最寄り駅
- センター北駅徒歩1分
- 竣工
- 2011年
- 規模
- 地上8階・地下1階
- 耐震基準
- 新耐震基準適合
- セキュリティ
- 機械警備・有人管理(24時間体制)
- 駐車場設備
- 無
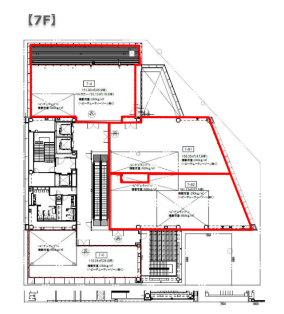
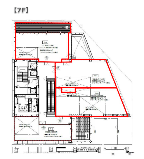
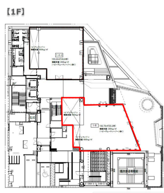
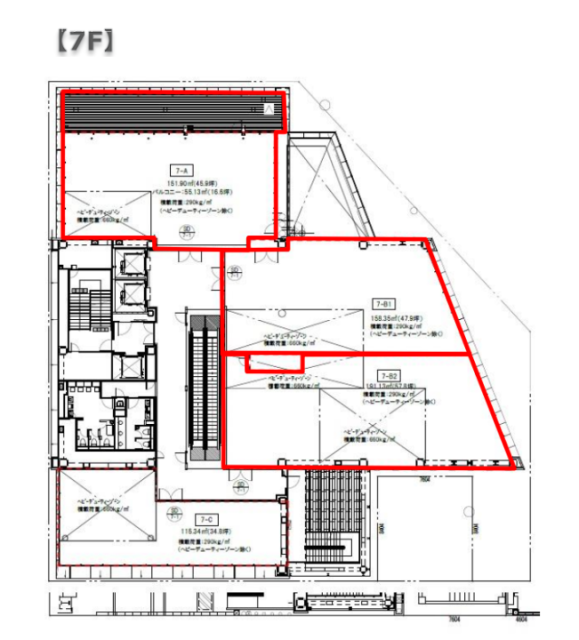
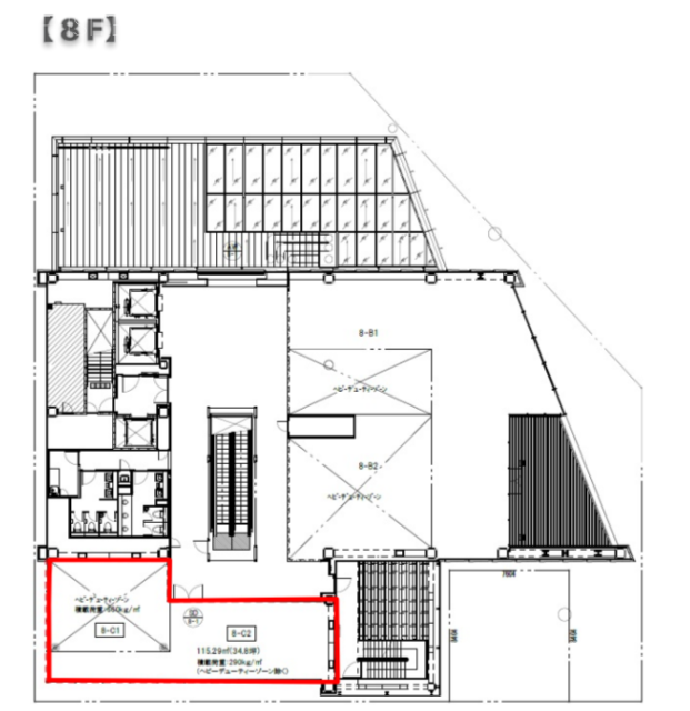
横浜市営地下鉄「センター北」駅2番出口出てすぐ右に位置する、駅直結の研究開発・クリニック向け専門ビルです。2011年10月竣工、新耐震基準適合の鉄骨造一部SRC造・RC造地下1階地上8階建で、延床面積2,220.58坪の中規模施設です。実験室向けの給排気・空調・耐荷重設計が施されており、ドラフトチャンバーやクリーンルームの設置が可能な専門仕様となっています。防振・防音対策により精密機器の使用にも対応可能で、研究内容に応じたレイアウト変更や成長に合わせた柔軟な契約も可能です。天井高2,900mm(1階B区画は2,900mm~6,000mm)、床荷重300kg/㎡(一部660kg/㎡)と、実験設備の設置に十分な仕様を備えています。小規模ラボから拡張可能なスペースまで、多様なニーズに対応できる34.87坪~57.81坪の区画をご用意しています。セキュリティは機械警備(SECOM)と有人警備併用で24時間常駐体制です。1階には共用スペースや給湯スペースも完備し、カフェ・保育施設等のサービス店舗も充実しています。
GRC横浜サイエンスキューブ の募集区画 (総募集面積 241.81坪)
| 図面 | 階数 | 坪数 | 月額費用 | 坪単価 | 入居可能日 | |
|---|---|---|---|---|---|---|
![]() | 7階 | 57.81坪 | お問い合わせください | 即時 | 検討リスト お問い合わせ | |
![]() | 7階 | 45.94坪 | お問い合わせください | 即時 | 検討リスト お問い合わせ | |
![]() | 1階 | 55.29坪 | お問い合わせください | 即時 | 検討リスト お問い合わせ | |
![]() | 7階 | 47.90坪 | お問い合わせください | 即時 | 検討リスト お問い合わせ | |
![]() | 8階 | 34.87坪 | お問い合わせください | 即時 | 検討リスト お問い合わせ |
※月額費用、坪単価 ともに共益費込・税別の価格です

























































